Nous utilisons des témoins et d’autres technologies pour assurer le fonctionnement et la sécurité de nos services en ligne, et pour vous offrir une expérience personnalisée. En continuant à utiliser nos services en ligne, vous acceptez notre Politique de confidentialité et les conditions d’utilisation. Pour obtenir des informations sur la façon de régler vos paramètres de confidentialité, veuillez consulter notre Politique sur les témoins.
Masquer
Accueil ON Grand Chatham-Kent Chatham-Kent Tilbury
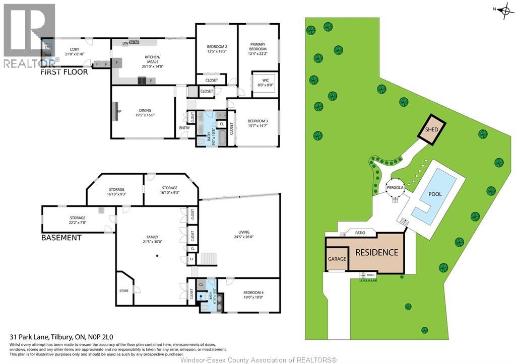
31 PARK LANE
Directions Imprimer
31 PARK LANE 749 900 $
749 900 $
Masquer
Favoris

31 PARK LANE
Tilbury, Ontario N0P2J0

Numéro MLS® : 25021690
3 + 1
Chambres
2
Salles de bain
-
Pieds carrés

Résumé de la propriété

Type de propriété
Unifamiliale
Titre
Tenure franche
Superficie du terrain
126.92 X IRREG / 1.07 AC
Type de stationnement
Garage attenant, Garage, Entrée intérieure
Sur REALTOR.ca depuis
164 jours

Édifice

Chambres
Au-dessus du niveau du sol
3
Au-dessous du niveau du sol
1
Salles de bain
Total
2
Caractéristiques intérieures
Appareils électroménagers inclus
Lave-vaisselle, Sécheuse, Réfrigérateur, Cuisinière, Machine à laver
Couvre-plancher
plancher recouvert de tapis, plancher de bois franc, plancher en stratifié
Caractéristiques du bâtiment
Caractéristiques
Voie d'accès pour deux autos ou plus, Entrée bétonée, Entrée finie
Type de fondation
Blocs de béton
Style
Isolée
Style d'architecture
4 étages
Maison à demi-niveaux
Mi-étages latéraux
Chauffage et refroidissement
Type de chauffage
Fournaise, Sans conduits, (Gaz naturel)
Caractéristiques extérieures
Revêtement extérieur
Aluminium/vinyle, Brique
Piscine
Piscine creusée
Caractéristiques
Matériel de piscine
Stationnement
Type de stationnement
Garage attenant, Garage, Entrée intérieure

Pièces

Niveau principal
Vestibule
Buanderie
Cuisine
Salle à manger
Salon
Deuxième niveau
Salle de bain - 4 éléments
Chambre à coucher
Chambre principale
Chambre à coucher
Sous-sol
Recoin-repas
Local de services
Lieu de rangement
Niveau inférieur
Salle de bain - 3 éléments
Salle familiale
Chambre à coucher

Terrain

Caractéristiques du terrain
Aménagement paysager
Terrain paysager
Souhaitez-vous visiter cette propriété?
Demander une visite

Inscriptions semblables

CASSANDRA DUQUETTE