Nous utilisons des témoins et d’autres technologies pour assurer le fonctionnement et la sécurité de nos services en ligne, et pour vous offrir une expérience personnalisée. En continuant à utiliser nos services en ligne, vous acceptez notre Politique de confidentialité et les conditions d’utilisation. Pour obtenir des informations sur la façon de régler vos paramètres de confidentialité, veuillez consulter notre Politique sur les témoins.
Masquer
Accueil SK Grand Swift Current Division No. 8 Swift Current
2190 South Railway STREET E
Directions Imprimer
2190 South Railway STREET E 939 000 $
939 000 $
Masquer
Favoris

2190 South Railway STREET E
Swift Current, Saskatchewan S9H5P3

Numéro MLS® : SK016451

Résumé de la propriété

Type de propriété
Industriel
Titre
Tenure franche
Superficie du terrain
0.9 a
Date de construction
1977
Impôt foncier annuel
18 305 $
Sur REALTOR.ca depuis
115 jours

Édifice

Caractéristiques du bâtiment
Commodités qu'offre le bâtiment
Devanture de magasin
Chauffage et refroidissement
Type de chauffage
Chaudière, Chauffage par rayonnement
Entreprise
Type d'entreprise
Industriel (Industriel général)

Mesures

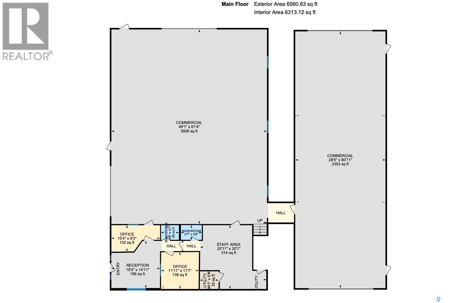
Superficie
6560 pi2
Dimension du bâtiment - extérieur
6560 pi2

Terrain

Caractéristiques du terrain
Clôture
Clôture
Données fournies par : Saskatchewan REALTORS® Association
Souhaitez-vous visiter cette propriété?
Demander une visite

Bobbi Tienkamp