Nous utilisons des témoins et d’autres technologies pour assurer le fonctionnement et la sécurité de nos services en ligne, et pour vous offrir une expérience personnalisée. En continuant à utiliser nos services en ligne, vous acceptez notre Politique de confidentialité et les conditions d’utilisation. Pour obtenir des informations sur la façon de régler vos paramètres de confidentialité, veuillez consulter notre Politique sur les témoins.
Masquer
Accueil NS Grand Halifax Comté de Halifax Halifax West End
6519 Chester Avenue
Directions Imprimer
6519 Chester Avenue 415 000 $
415 000 $
Masquer
Favoris

6519 Chester Avenue
Halifax, Nouvelle-Écosse B3L2P5

Numéro MLS® : 202520939

Résumé de la propriété

Type de propriété
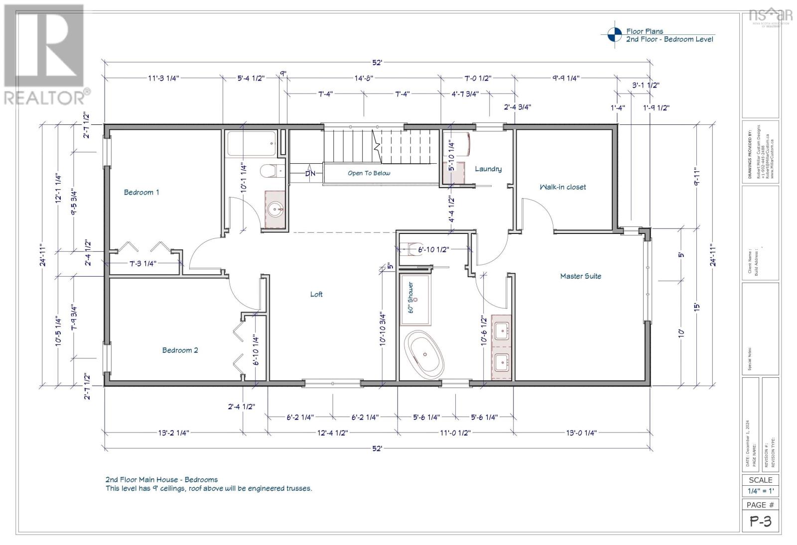
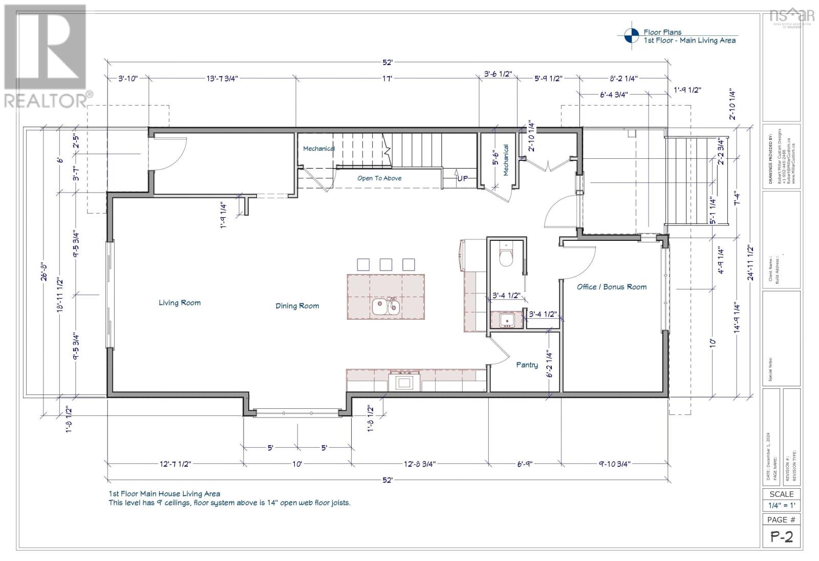
Terrain vacant
Titre
Tenure franche
Superficie du terrain
0.0918 a
Sur REALTOR.ca depuis
116 jours

Prix et historique

Date Statut Prix vendu
31 oct. 2024 Vente conclue 410 850 $

Édifice

Services publics
Égouts
Égout municipal
Eau
Approvisionnement en eau par la municipalité
Données fournies par : Nova Scotia Association of REALTORS®

Évaluation foncière

Année d’imposition Évaluation de la propriété Valeur imposable
2025 457 000 $ 457 000 $
2024 394 400 $ 213 700 $
2023 388 200 $ 207 100 $
2022 303 100 $ 192 300 $
2021 251 500 $ 182 500 $
Contient des informations obtenues en vertu de la licence d’utilisation des données et des informations ouvertes du gouvernement – Property Valuation Services Corporation (PVSC) et municipalités participantes.
902-483-5119
902-468-3702

Inscriptions semblables

Cynthia Hollohan