Nous utilisons des témoins et d’autres technologies pour assurer le fonctionnement et la sécurité de nos services en ligne, et pour vous offrir une expérience personnalisée. En continuant à utiliser nos services en ligne, vous acceptez notre Politique de confidentialité et les conditions d’utilisation. Pour obtenir des informations sur la façon de régler vos paramètres de confidentialité, veuillez consulter notre Politique sur les témoins.
Masquer
Accueil NS Grand Halifax Comté de Halifax Halifax Bedford
SP-03A Stephs Street
Directions Imprimer
SP-03A Stephs Street 744 900 $
744 900 $
Masquer
Favoris

SP-03A Stephs Street
West Bedford, Nouvelle-Écosse B4B0L1

Numéro MLS® : 202519895
3
Chambres
4
Salles de bain
2243
Pieds carrés

Résumé de la propriété

Type de propriété
Unifamiliale
Type de bâtiment
Maison en rangée
Étages
3
Superficie
2243 pi2
Titre
Tenure franche
Superficie du terrain
0.5497 a
Type de stationnement
Garage, Cour revêtue
Sur REALTOR.ca depuis
205 jours

Édifice

Chambres
Au-dessus du niveau du sol
3
Salles de bain
Total
4
Partielle
1
Caractéristiques intérieures
Appareils électroménagers inclus
Aucun
Couvre-plancher
plancher en stratifié, Carrelage
Caractéristiques du bâtiment
Type de fondation
Béton coulé
Style d'architecture
3 étages
Chauffage et refroidissement
Système de refroidissement
Thermopompe
Services publics
Égouts
Égout municipal
Eau
Approvisionnement en eau par la municipalité
Caractéristiques extérieures
Revêtement extérieur
Vinyle, Autre
Stationnement
Type de stationnement
Garage, Cour revêtue
Fonctions d’accessibilité
Entrée et accès
Cadres de porte d'entrée : min. 32 po

Mesures

Superficie
2243 pi2
Source : Autre
Superficie totale aménagée
2243 pi2

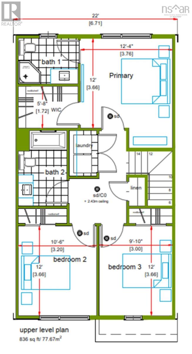
Pièces

MétriqueImpérial
Deuxième niveau
Salon
Cuisine
Salle à manger
Bain (nbre de pièces 1-6)
Coin repos
Troisième niveau
Chambre principale
Ensuite (nbre de pièces 2-6)
Chambre à coucher
Chambre à coucher
Bain (nbre de pièces 1-6)
Buanderie
Niveau inférieur
Salle de jeux, récréative
Bain (nbre de pièces 1-6)

Terrain

Caractéristiques du terrain
Aménagement paysager
Terrain paysager
Données fournies par : Nova Scotia Association of REALTORS®
Souhaitez-vous visiter cette propriété?
Demander une visite

Inscriptions semblables

Lorenzo Gallardo