Nous utilisons des témoins et d’autres technologies pour assurer le fonctionnement et la sécurité de nos services en ligne, et pour vous offrir une expérience personnalisée. En continuant à utiliser nos services en ligne, vous acceptez notre Politique de confidentialité et les conditions d’utilisation. Pour obtenir des informations sur la façon de régler vos paramètres de confidentialité, veuillez consulter notre Politique sur les témoins.
Masquer
Accueil BC Columbia-Shuswap Sicamous
222 Temple Street Unit# 6
Directions Imprimer
222 Temple Street Unit# 6 589 000 $
589 000 $
Masquer
Favoris

222 Temple Street Unit# 6
Sicamous, Colombie-Britannique V0E2V0

Numéro MLS® : 10358273
3
Chambres
3
Salles de bain
1463
Pieds carrés

Résumé de la propriété

Type de propriété
Unifamiliale
Type de bâtiment
Maison en rangée
Étages
3
Superficie
1463 pi2
Titre
Copropriété divise
Superficie du terrain
moins de 1 acre
Date de construction
2025
Impôt foncier annuel
0 $
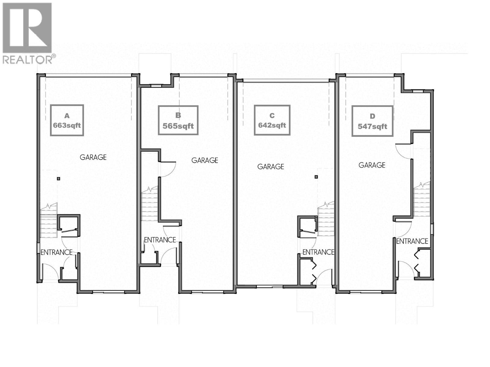
Type de stationnement
Garage attenant (2)
Sur REALTOR.ca depuis
128 jours

Édifice

Salles de bain
Total
3
Partielle
1
Caractéristiques intérieures
Couvre-plancher
Vinyle
Caractéristiques du bâtiment
Caractéristiques
Balcon, Un balcon
Style
En rangée
Style d'architecture
Contemporain
Chauffage et refroidissement
Système de refroidissement
Thermopompe
Foyer
1
Type de foyer
Inconnu (Électricité)
Type de chauffage
(Électrique), Thermopompe
Services publics
Égouts
Égout municipal
Eau
Approvisionnement en eau par la municipalité
Caractéristiques extérieures
Style de toiture
Bardeaux d'asphalte
Revêtement extérieur
Autre
Caractéristiques du quartier
Caractéristiques de la communauté
Conçu pour familles, Animaux admissibles, Locations permises
Commodités à proximité
Parc, Loisirs, Écoles, Centres commerciaux
Infos entretien ou copropriété
Frais d'entretien
356,11 $ mois
Les frais d'entretien comprennent
Contributions au fonds de réserve, Assurance, Entretien du terrain, Gestion immobilière, Autre, voir remarques, Installations de loisirs, systèmes d'égouts et d'alimentation, Eau
Stationnement
Type de stationnement
Garage attenant (2)
Nombre total d'espaces de stationnement
3

Mesures

Superficie
1463 pi2

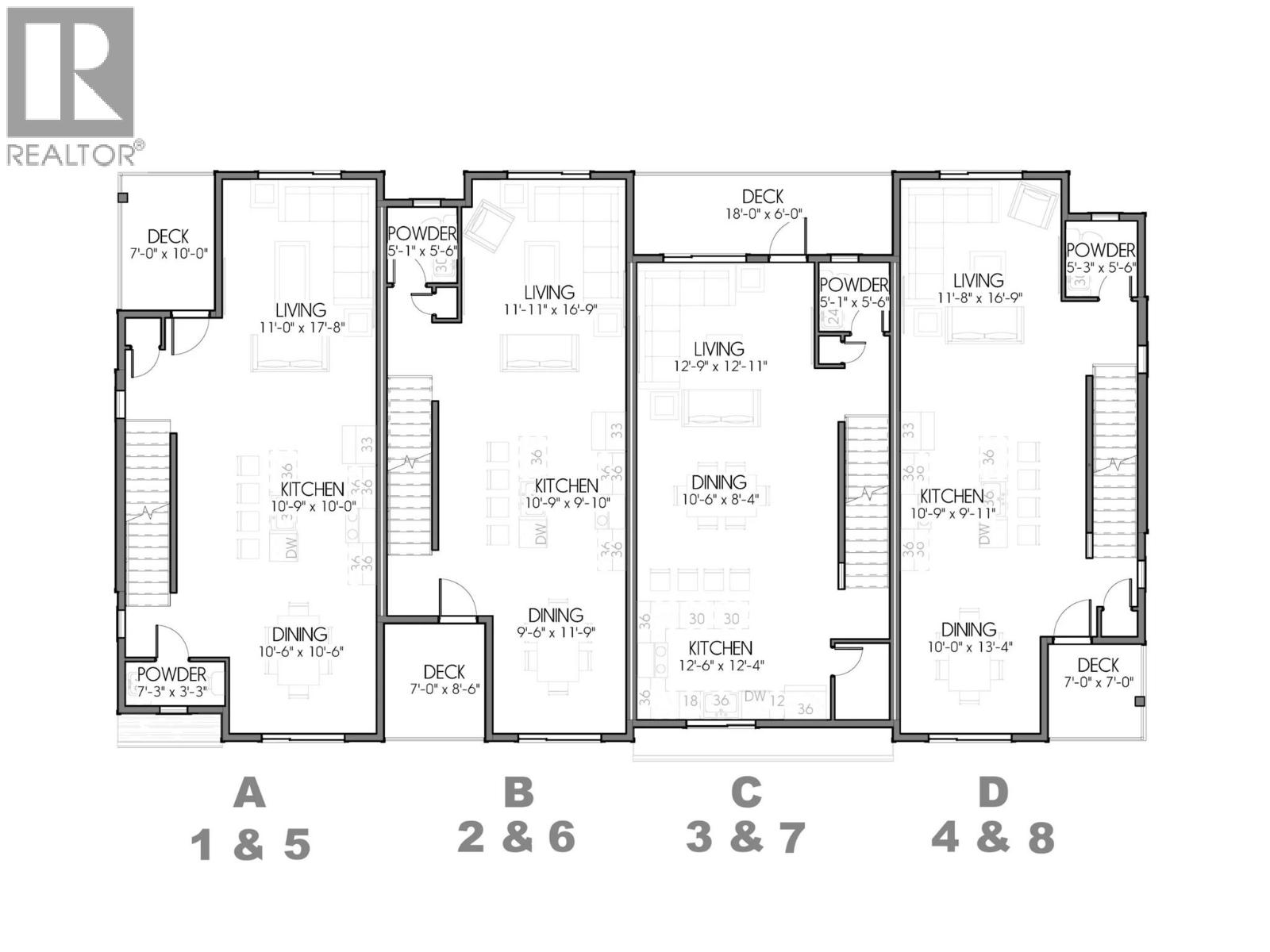
Pièces

MétriqueImpérial
Deuxième niveau
Autre
Salle de bains partielle
Salle à manger
Salon
Cuisine
Troisième niveau
Chambre à coucher
Chambre à coucher
Salle de bains complète
Autre
Salle de bains complète communicante
Chambre principale

Terrain

Caractéristiques du terrain
Clôture
Clôture
Autres informations sur la propriété
Accès
Accès facile
Données fournies par : Association of Interior REALTORS®
Souhaitez-vous visiter cette propriété?
Demander une visite

Inscriptions semblables

Jessica Klikach