Nous utilisons des témoins et d’autres technologies pour assurer le fonctionnement et la sécurité de nos services en ligne, et pour vous offrir une expérience personnalisée. En continuant à utiliser nos services en ligne, vous acceptez notre Politique de confidentialité et les conditions d’utilisation. Pour obtenir des informations sur la façon de régler vos paramètres de confidentialité, veuillez consulter notre Politique sur les témoins.
Masquer
Accueil QC La Haute-Gaspésie Cap-Chat
172-C Rue Notre-Dame E.
Directions Imprimer
172-C Rue Notre-Dame E. 375 000 $ + TPS + TVQ
375 000 $ + TPS + TVQ
Masquer
Favoris

172-C Rue Notre-Dame E.
Cap-Chat, Québec G0J1G0

Numéro MLS® : 24567590
2
Chambres
2
Salles de bain
1170
Pieds carrés

Description de l’inscription

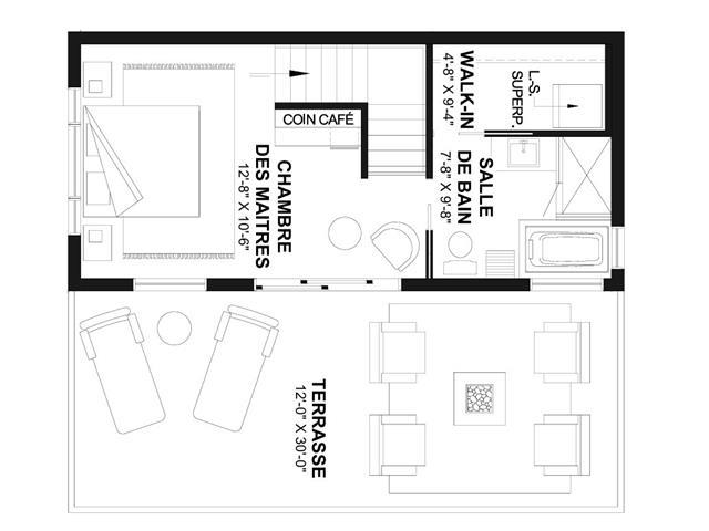
Vous rêvez d'une construction neuve contemporaine avec la vue sur les Chic-Chocs et la mer à la fois ? C'est exactement ce que vous offres cette propriété. Aires ouvertes, chambre des maîtres à l'étage avec walk-inn et salle de bain adjacente. Cuisine fonctionnelle avec coin déjeuner. Accès à une grande terrasse à l'étage donnant une vue panoramique. Vient avec une garantie de maison neuve et le vendeur vous offre la possibilité de choisir certains matériaux, si et seulement si, la construction de la propriété n'est pas finalisé advenant une offre d'achat. Coup de coeur assuré ! Plan Dessins Drummond: Joshua 3 #1703-V2 TPS/TVQ doivent être ajoutées au prix demandé (53259058)

Résumé de la propriété

Type de propriété
Unifamiliale
Type de bâtiment
Unifamilial
Étages
2
Superficie
1170 pi2
Superficie du terrain
959.9 m2
Âge de l'édifice
En construction
Type de stationnement
Autre
Sur REALTOR.ca depuis
206 jours

Édifice

Salles de bain
Total
2
Partielle
0
Caractéristiques du bâtiment
Caractéristiques
Terrain plat, Fenêtres PVC, Fenêtres à manivelle
Type de fondation
Dalle en béton
Style
Isolée
Chauffage et refroidissement
Système de refroidissement
Échangeur d'air
Type de chauffage
(Électrique)
Services publics
Égouts
Égout municipal
Eau
Approvisionnement en eau par la municipalité
Caractéristiques extérieures
Matériaux du toit
Toiture métallique
Stationnement
Type de stationnement
Autre
Nombre total d'espaces de stationnement
2

Mesures

Superficie
1170 pi2
Dimension du bâtiment - extérieur
780 pi2

Pièces

MétriqueImpérial
Niveau principal
Salon
Salle à manger
Cuisine
Chambre à coucher
Bureau
Salle de bain
Deuxième niveau
Chambre principale
Autre
Salle de bain

Terrain

Caractéristiques du terrain
Façade
16 m
Vue
Vue sur l'eau, Vue sur la montagne, Vue ( panoramique )
Autres informations sur la propriété
Type de Zonage
Résidentiel
Caractéristiques de la ferme
Type de ferme
Autre
Souhaitez-vous visiter cette propriété?
Demander une visite

Inscriptions semblables

Mélanie Proulx