Nous utilisons des témoins et d’autres technologies pour assurer le fonctionnement et la sécurité de nos services en ligne, et pour vous offrir une expérience personnalisée. En continuant à utiliser nos services en ligne, vous acceptez notre Politique de confidentialité et les conditions d’utilisation. Pour obtenir des informations sur la façon de régler vos paramètres de confidentialité, veuillez consulter notre Politique sur les témoins.
Masquer
Accueil QC Grande région de Québec La Jacques-Cartier Sainte-Catherine-de-la-Jacques-Cartier
220 Rue Edward-Assh ##1
Directions Imprimer
220 Rue Edward-Assh ##1 + TPS + TVQ 11 $/Annuel/pieds carrés
+ TPS + TVQ 11 $/Annuel/pieds carrés
Masquer
Favoris

220 Rue Edward-Assh
##1
Sainte-Catherine-de-la-Jacques-Cartier, Québec G3N1A1

Numéro MLS® : 15713304

Description de l’inscription

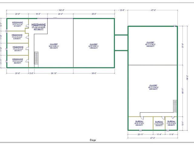
Sainte-Catherine-de-la-Jacques-Cartier - Grand local Industriel/commercial de 3 300p² avec mezzanine, dans un complexe de 4 unités, incluant 8 espaces de stationnement, avec ou sans bureaux, possibilité d'ajouter une partie de terrain, hauteur libre de 16', zonage très permissif. À 10 min de l'autoroute 40. *Possibilité de jumeler plusieurs locaux. Disponible dès maintenant! TPS/TVQ doivent être ajoutées au prix demandé (44381322)

Résumé de la propriété

Type de propriété
Industriel
Type de bâtiment
Autre
Sur REALTOR.ca depuis
145 jours

Édifice

Caractéristiques du bâtiment
Style
Isolée
Unités totales
1

Terrain

Autres informations sur la propriété
Type de Zonage
Mixte
Caractéristiques de la ferme
Type de ferme
Autre
Souhaitez-vous visiter cette propriété?
Demander une visite

Mathieu Fournier