Nous utilisons des témoins et d’autres technologies pour assurer le fonctionnement et la sécurité de nos services en ligne, et pour vous offrir une expérience personnalisée. En continuant à utiliser nos services en ligne, vous acceptez notre Politique de confidentialité et les conditions d’utilisation. Pour obtenir des informations sur la façon de régler vos paramètres de confidentialité, veuillez consulter notre Politique sur les témoins.
Masquer
Accueil AB Division No. 19 Grande Prairie County No. 1
9543 114 Avenue
Directions Imprimer
9543 114 Avenue 599 900 $
599 900 $
Masquer
Favoris

9543 114 Avenue
Clairmont, Alberta T8X0W7

Numéro MLS® : A2242759
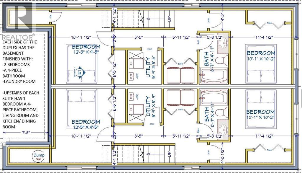
2 + 4
Chambres
4
Salles de bain
1287
Pieds carrés

Résumé de la propriété

Type de propriété
Multifamilial
Étages
1
Superficie
1287 pi2
Titre
Tenure franche
Superficie du terrain
4143 pi2|4 051 - 7 250 pi2
Date de construction
2025
Impôt foncier annuel
4 020 $
Type de stationnement
Béton, Garage attenant (2), Aire de stationnement
Sur REALTOR.ca depuis
143 jours

Édifice

Chambres
Au-dessus du niveau du sol
2
Au-dessous du niveau du sol
4
Salles de bain
Total
4
Partielle
0
Caractéristiques intérieures
Appareils électroménagers inclus
Réfrigérateur, Lave-vaisselle, Cuisinière, Machine à laver et sécheuse
Couvre-plancher
plancher recouvert de tapis, Planche vinyle
Type de sous-sol
Sous-sol complet (Aménagé)
Caractéristiques du bâtiment
Caractéristiques
Range-placards, Maison sans animaux, Maison sans fumeurs
Type de fondation
Béton coulé
Style
En rangée
Style d'architecture
Bungalow
Matériau de Construction
Béton coulé, Charpente en bois
Structures
Aucune
Unités totales
2
Chauffage et refroidissement
Système de refroidissement
Aucun
Type de chauffage
Air pulsé, (Gaz naturel)
Caractéristiques extérieures
Revêtement extérieur
Béton
Caractéristiques du quartier
Commodités à proximité
Parc, Terrain de jeu, Écoles, Centres commerciaux
Stationnement
Type de stationnement
Béton, Garage attenant (2), Aire de stationnement
Nombre total d'espaces de stationnement
4

Mesures

Superficie
1287 pi2
Superficie totale aménagée
1287 pi2

Pièces

MétriqueImpérial
Niveau principal
Chambre principale
Chambre principale
Salle de bain - 4 éléments
Salle de bain - 4 éléments
Sous-sol
Chambre à coucher
Chambre à coucher
Chambre à coucher
Chambre à coucher
Salle de bain - 4 éléments
Salle de bain - 4 éléments

Terrain

Caractéristiques du terrain
Clôture
Partiellement clôturé
Façade
10.91 m
Superficie du terrain
34.75 m
Données fournies par : Pillar 9™
Souhaitez-vous visiter cette propriété?
Demander une visite

Inscriptions semblables

Daniel Cram