Nous utilisons des témoins et d’autres technologies pour assurer le fonctionnement et la sécurité de nos services en ligne, et pour vous offrir une expérience personnalisée. En continuant à utiliser nos services en ligne, vous acceptez notre Politique de confidentialité et les conditions d’utilisation. Pour obtenir des informations sur la façon de régler vos paramètres de confidentialité, veuillez consulter notre Politique sur les témoins.
Masquer
Accueil AB Grand Calgary Division No. 6 Calgary Carrington
1230 148 Avenue NW
Directions Imprimer
1230 148 Avenue NW 499 990 $
499 990 $
Masquer
Favoris

1230 148 Avenue NW
Calgary, Alberta T3P1W2

Numéro MLS® : A2234724
3
Chambres
3
Salles de bain
1500
Pieds carrés

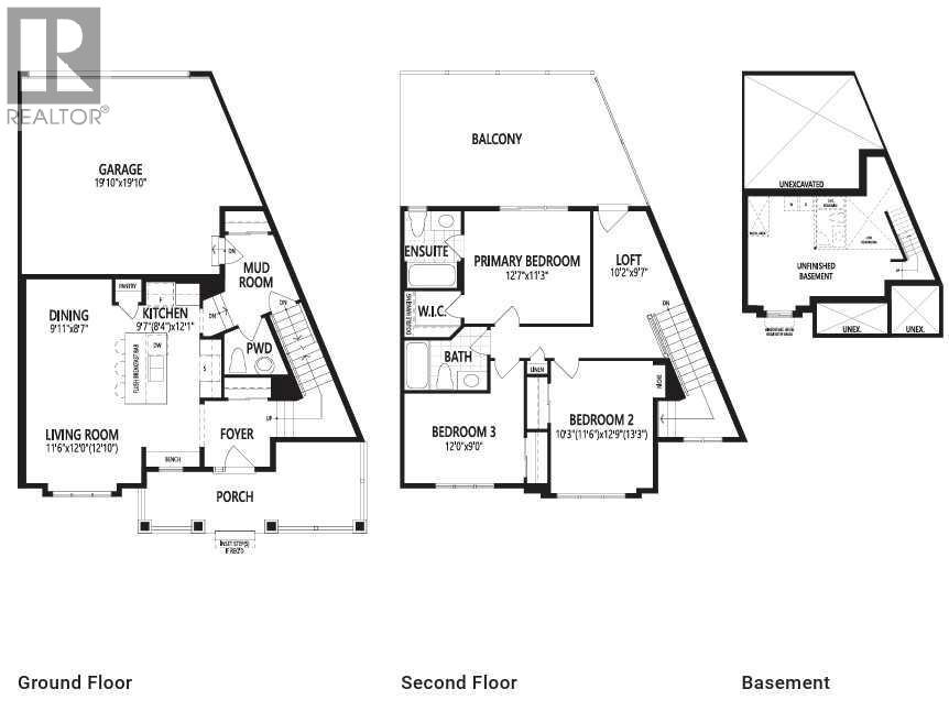
Résumé de la propriété

Type de propriété
Unifamiliale
Type de bâtiment
Maison en rangée
Étages
2
Superficie
1500 pi2
Titre
Tenure franche
Superficie du terrain
276.2 m2|0-4 050 pi2
Date de construction
2025
Type de stationnement
Garage attenant (2)
Sur REALTOR.ca depuis
163 jours

Édifice

Chambres
Au-dessus du niveau du sol
3
Salles de bain
Total
3
Partielle
1
Caractéristiques intérieures
Appareils électroménagers inclus
Réfrigérateur, Cuisinière électrique, Lave-vaisselle, Four à micro-ondes avec hotte intégrée, Humidificateur
Couvre-plancher
plancher recouvert de tapis, Planche vinyle
Type de sous-sol
Sous-sol complet (Non aménagé)
Caractéristiques du bâtiment
Caractéristiques
Voie d'accès à l'arrière
Type de fondation
Béton coulé
Style
En rangée
Matériau de Construction
Charpente en bois
Structures
Porche
Chauffage et refroidissement
Système de refroidissement
Aucun
Type de chauffage
Air pulsé, (Gaz naturel)
Caractéristiques extérieures
Revêtement extérieur
Bardage en vinyle
Caractéristiques du quartier
Commodités à proximité
Parc, Terrain de jeu, Centres commerciaux
Stationnement
Type de stationnement
Garage attenant (2)
Nombre total d'espaces de stationnement
2

Mesures

Superficie
1500 pi2
Superficie totale aménagée
1500 pi2

Pièces

MétriqueImpérial
Niveau principal
Salon
Salle à manger
Cuisine
Salle de bain - 2 éléments
Niveau supérieur
Chambre à coucher
Chambre à coucher
Salle de bain - 4 éléments
Salle de bain - 4 éléments
Chambre principale
Grenier

Terrain

Caractéristiques du terrain
Clôture
Non clôturé
Façade
11.1 m
Superficie du terrain
24.89 m
Données fournies par : Pillar 9™
Souhaitez-vous visiter cette propriété?
Demander une visite

Inscriptions semblables

Shane Koka