Nous utilisons des témoins et d’autres technologies pour assurer le fonctionnement et la sécurité de nos services en ligne, et pour vous offrir une expérience personnalisée. En continuant à utiliser nos services en ligne, vous acceptez notre Politique de confidentialité et les conditions d’utilisation. Pour obtenir des informations sur la façon de régler vos paramètres de confidentialité, veuillez consulter notre Politique sur les témoins.
Masquer
Accueil AB Grand Medicine Hat Division No. 1 Medicine Hat South East Hills
5, 202 5 Avenue SE
Directions Imprimer
5, 202 5 Avenue SE 12 $/Annuel/pieds carrés
12 $/Annuel/pieds carrés
Masquer
Favoris

5, 202 5 Avenue SE
Medicine Hat, Alberta T1A2P8

Numéro MLS® : A2234262

Résumé de la propriété

Type de propriété
Autre
Type de bâtiment
Usage commercial mixte
Titre
Tenure à bail
Superficie du terrain
Inconnu
Date de construction
1978
Impôt foncier annuel
27 016 $
Sur REALTOR.ca depuis
177 jours

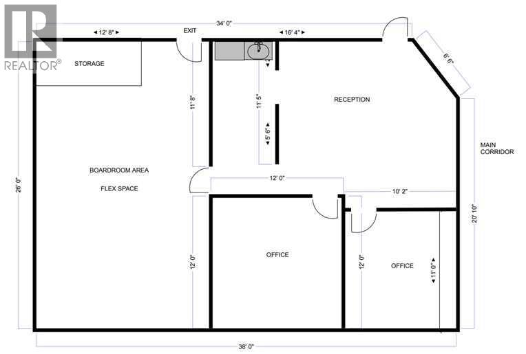
Mesures

Superficie
1033 pi2
Superficie totale aménagée
1033 pi2
Dimension du bâtiment - extérieur
1033 pi2

Terrain

Autres informations sur la propriété
Type de bail
Hypernet
Données fournies par : Pillar 9™
Souhaitez-vous visiter cette propriété?
Demander une visite

TANYA HOLOWATY