Nous utilisons des témoins et d’autres technologies pour assurer le fonctionnement et la sécurité de nos services en ligne, et pour vous offrir une expérience personnalisée. En continuant à utiliser nos services en ligne, vous acceptez notre Politique de confidentialité et les conditions d’utilisation. Pour obtenir des informations sur la façon de régler vos paramètres de confidentialité, veuillez consulter notre Politique sur les témoins.
Masquer
Accueil QC Grand Montréal Montréal Pierrefonds-Roxboro Roxboro
11387Z-11389Z Boul. Gouin O.
Directions Imprimer
Plus de photos + 2
11387Z-11389Z Boul. Gouin O. + TPS + TVQ 18 $/Annuel/pieds carrés
+ TPS + TVQ 18 $/Annuel/pieds carrés
Masquer
Favoris

11387Z-11389Z Boul. Gouin O.
Montréal (Pierrefonds-Roxboro), Québec H8Y1X7

Numéro MLS® : 23910917

Description de l’inscription

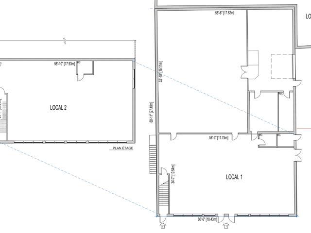
Découvrez ce local commercial polyvalent de 7 000 pi² situé sur un axe très passant à Pierrefonds. Parfait pour un atelier, une salle d'exposition, ou des bureaux avec entrepôt. Grand stationnement disponible, accès facile aux grands axes routiers. Idéal pour entreprises de services, distribution ou commerce de détail. Plafonds élevés et lumière naturelle abondante créent un environnement de travail confortable et productif. L'espace comprend également une entrée privée, des installations sanitaires et un grand stationnement à l'avant pour les clients et les employés. TPS/TVQ doivent être ajoutées au prix demandé (52302070)

Résumé de la propriété

Type de propriété
Détail
Type de bâtiment
Détail
Étages
1
Quartier
Roxboro
Date de construction
1978
Sur REALTOR.ca depuis
205 jours

Édifice

Caractéristiques du bâtiment
Style
Isolée
Unités totales
1
Services publics
Égouts
Égout municipal
Eau
Approvisionnement en eau par la municipalité

Terrain

Caractéristiques de la ferme
Type de ferme
Autre
Souhaitez-vous visiter cette propriété?
Demander une visite

Amine Menard