Nous utilisons des témoins et d’autres technologies pour assurer le fonctionnement et la sécurité de nos services en ligne, et pour vous offrir une expérience personnalisée. En continuant à utiliser nos services en ligne, vous acceptez notre Politique de confidentialité et les conditions d’utilisation. Pour obtenir des informations sur la façon de régler vos paramètres de confidentialité, veuillez consulter notre Politique sur les témoins.
Masquer
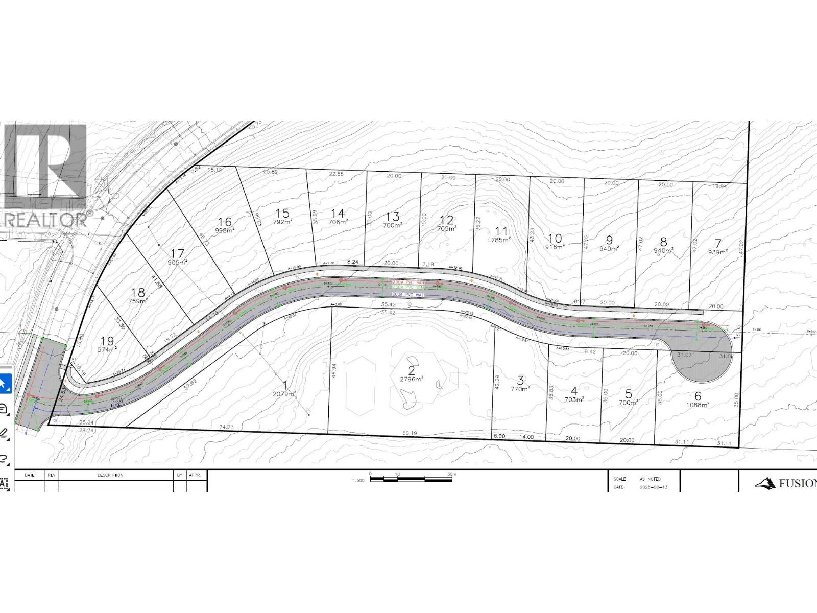
Accueil BC North Okanagan Lumby
2680 CEDAR RIDGE Street Unit# Proposed Phase 2 Lot# 1 & 2
Directions Imprimer
2680 CEDAR RIDGE Street Unit# Proposed Phase 2 Lot# 1 & 2 1 500 000 $
Modification du prix le 2025/11/27
1 500 000 $
+1 207 000 $
293 000 $
Masquer
Favoris

2680 CEDAR RIDGE Street Unit# Proposed Phase 2 Lot# 1 & 2
Lumby, Colombie-Britannique V0E2G5

Numéro MLS® : 10321471

Résumé de la propriété

Type de propriété
Terrain vacant
Type de bâtiment
Autre
Titre
Tenure franche
Superficie du terrain
1.2 a|1 - 5 acres
Impôt foncier annuel
0 $
Sur REALTOR.ca depuis
438 jours

Édifice

Caractéristiques du bâtiment
Caractéristiques
Cul-de-sac
Services publics
Services publics disponibles
Service du câble (Jusqu'à la limite du terrain), Électricité (Jusqu'à la limite du terrain), Gaz naturel (Jusqu'à la limite du terrain), Téléphone (Jusqu'à la limite du terrain), Service d'égout (Disponible), Eau (Jusqu'à la limite du terrain)
Égouts
Égout municipal
Eau
Approvisionnement en eau par la municipalité
Caractéristiques du quartier
Caractéristiques de la communauté
Conçu pour familles, Secteur rural, Animaux admissibles, Locations permises
Commodités à proximité
Parc, Loisirs, Écoles

Terrain

Caractéristiques du terrain
Façade
442 pi
Type de route
Route revêtue, Impasse
Vue
Vue sur la montagne, Vue sur une vallée
Autres informations sur la propriété
Accès
Accès facile
Caractéristiques du bord de l'eau
Bord de l'eau
Front d'eau à proximité
Données fournies par : Association of Interior REALTORS®
Souhaitez-vous visiter cette propriété?
Demander une visite

Inscriptions semblables

Hank Prebushewski