Nous utilisons des témoins et d’autres technologies pour assurer le fonctionnement et la sécurité de nos services en ligne, et pour vous offrir une expérience personnalisée. En continuant à utiliser nos services en ligne, vous acceptez notre Politique de confidentialité et les conditions d’utilisation. Pour obtenir des informations sur la façon de régler vos paramètres de confidentialité, veuillez consulter notre Politique sur les témoins.
Masquer
Accueil AB Canmore Division No. 15
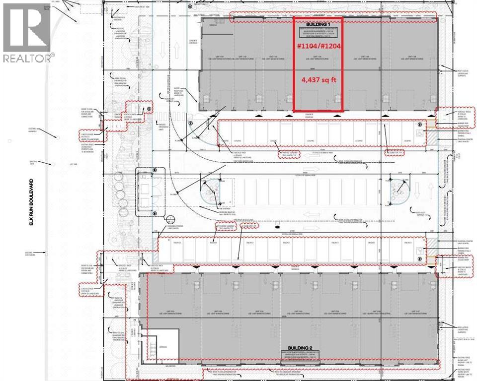
1104 & 1204, 100 Alpine Meadows
Directions Imprimer
1104 & 1204, 100 Alpine Meadows 25 $/Annuel/pieds carrés
25 $/Annuel/pieds carrés
Masquer
Favoris

1104 & 1204, 100 Alpine Meadows
Canmore, Alberta T1W1L1

Numéro MLS® : A2154272

Résumé de la propriété

Type de propriété
Industriel
Titre
Tenure franche
Superficie du terrain
Inconnu
Date de construction
2024
Nombre total d'espaces de stationnement
53
Sur REALTOR.ca depuis
506 jours

Édifice

Caractéristiques intérieures
Hauteur du plafond
192 po
Caractéristiques du bâtiment
Caractéristiques
Visibilité, Plat
Type de fondation
Béton coulé
Nombre total de batiments
2
Caractéristiques extérieures
Revêtement extérieur
Voir remarques
Entreprise
Portes de chargement
1
Stationnement
Nombre total d'espaces de stationnement
53

Mesures

Superficie
4140 pi2
Superficie totale aménagée
4140 pi2
Dimension du bâtiment - extérieur
4140 pi2

Terrain

Autres informations sur la propriété
Type de bail
Autre, voir remarques
Données fournies par : Pillar 9™
Souhaitez-vous visiter cette propriété?
Demander une visite

Ivan W. Stark