Nous utilisons des témoins et d’autres technologies pour assurer le fonctionnement et la sécurité de nos services en ligne, et pour vous offrir une expérience personnalisée. En continuant à utiliser nos services en ligne, vous acceptez notre Politique de confidentialité et les conditions d’utilisation. Pour obtenir des informations sur la façon de régler vos paramètres de confidentialité, veuillez consulter notre Politique sur les témoins.
Masquer
Accueil QC Grand Montréal Deux-Montagnes
26e Avenue
Directions Imprimer
26e Avenue 3 345 000 $ + TPS + TVQ
3 345 000 $ + TPS + TVQ
Masquer
Favoris

26e Avenue
Deux-Montagnes, Québec J7R5T7

Numéro MLS® : 28858033

Description de l’inscription

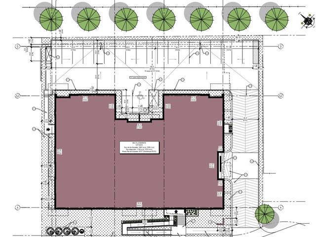
*** FINANCEMENT DU VENDEUR POSSIBLE POUR L'ACQUISITION*** TERRAIN PRÊT-À-CONSTRUIRE - Près de la future station du REM, ce terrain est vendu avec un projet déjà approuvé par la municipalité. Le projet consiste en un immeuble de 60 UNITÉS sur 6 étages avec stationnement souterrain. L'acquéreur devra démolir les 2 immeubles occupant le terrain. Opportunité à saisir pour construire rapidement. TPS/TVQ doivent être ajoutées au prix demandé (55750146)

Résumé de la propriété

Type de propriété
Terrain vacant
Quartier
Nord
Superficie du terrain
25978 pi2
Sur REALTOR.ca depuis
654 jours

Terrain

Autres informations sur la propriété
Type de Zonage
Résidentiel
Caractéristiques de la ferme
Type de ferme
Autre
Souhaitez-vous visiter cette propriété?
Demander une visite

Inscriptions semblables

Sophia Meliani