We use cookies and other technologies for functionality, security, and to provide you with a personalized experience on our online services. By continuing to use our online services, you agree to our Privacy Policy and Terms of Use. For information on how to adjust your privacy settings, visit our Cookie Policy.
Dismiss
Home ON Greater Toronto Area Toronto North York Clanton Park Dublin Heights
44 - 871 SHEPPARD AVENUE W
Directions Print
44 - 871 SHEPPARD AVENUE W $499,000
4 hours ago
$499,000
Hide
Favourite

44 - 871 SHEPPARD AVENUE W
Toronto (Clanton Park), Ontario M3H0E8

MLS® Number: C12830388
2
Bedrooms
2
Bathrooms
1000 - 1199
Square Feet

Listing Description

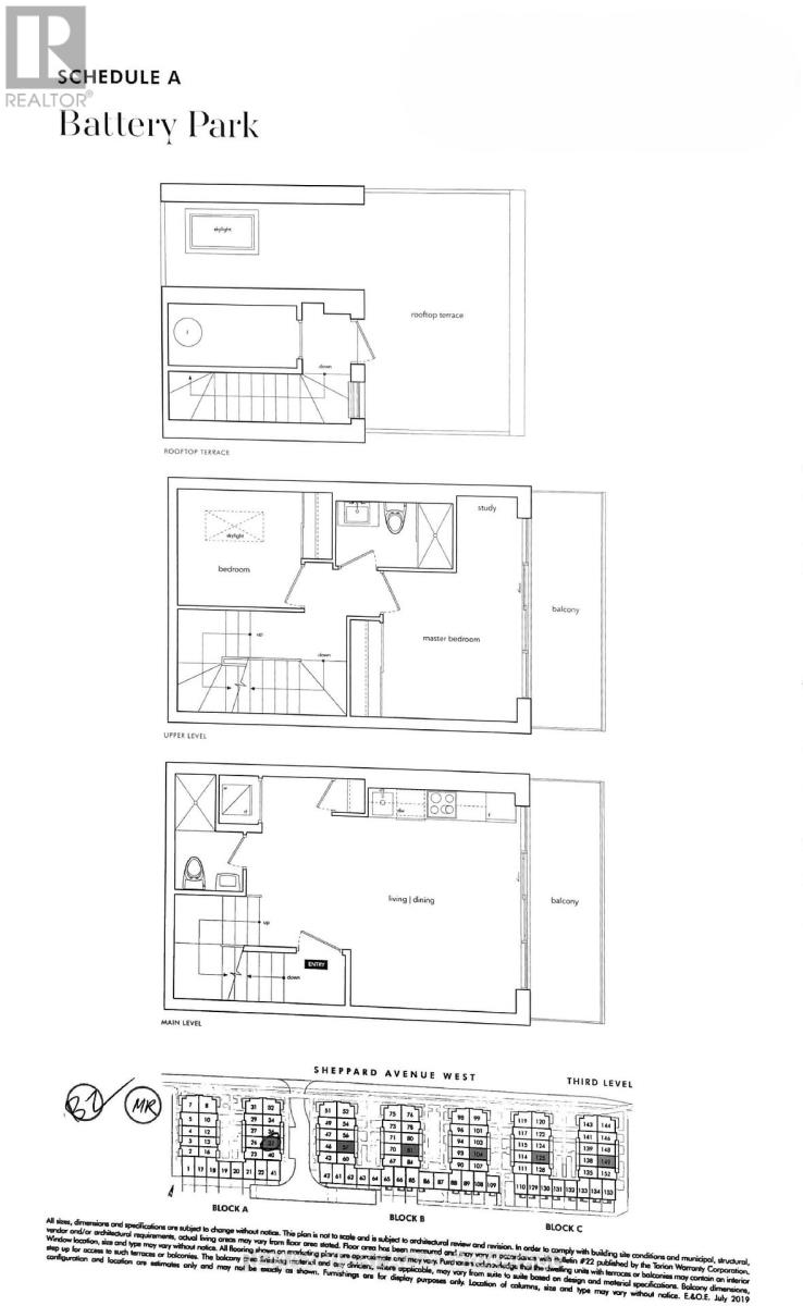
Welcome to Greenwich Village, a modern cast-in-concrete community offering a rare opportunity to own a low-maintenance two-bedroom residence that stands apart from a typical condo by featuring a private rooftop terrace and two separate balconies totaling 251 sq.ft., delivering an exceptional indoor-outdoor lifestyle rarely available in this price range, complemented by approximately 1,060 sq.ft. of thoughtfully designed interior space with two bedrooms, two bathrooms including one powder room, a bright upper-level layout, and a skylight in the second bedroom that brings in abundant natural light and added architectural character, further enhanced by approximately $70,000 in premium builder upgrades including elegant oak stained stairs, an upgraded shower room, a high-end Bosch stainless steel appliance package, upgraded kitchen cabinetry, sleek quartz countertops with matching backsplash, and upgraded vinyl flooring throughout, all finished with 9-foot smooth ceilings and individually metered utilities for efficiency and cost control, while underground parking and a private locker are included for everyday convenience and strong long-term value, all ideally located just five-minute walk to Sheppard West Subway Station with bus access at your doorstep and easy access to Highway 401, making this a distinctive, move-in-ready opportunity in a highly desirable transit-oriented neighborhood. (42241512)

Location Description

Sheppard/Wilson Heights

Property Summary

Property Type
Single Family
Building Type
Row / Townhouse
Square Footage
1000 - 1199 sqft
Community Name
Clanton Park
Title
Condominium/Strata
Age Of Building
0 to 5 years
Annual Property Taxes
$4,475.84
Parking Type
No Garage
Time on REALTOR.ca
4 hours

Building

Bedrooms
Above Grade
2
Bathrooms
Total
2
Partial
1
Interior Features
Appliances Included
Water Heater, Cooktop, Dishwasher, Dryer, Microwave, Stove, Washer, Window Coverings, Refrigerator
Flooring
Vinyl
Basement Type
None
Building Features
Features
Balcony
Fire Protection
Smoke Detectors
Building Amenities
Storage - Locker
Rental Equipment
Water Heater
Heating & Cooling
Cooling
Central air conditioning
Heating Type
Forced air (Natural gas)
Exterior Features
Exterior Finish
Brick
Neighbourhood Features
Community Features
Pets Allowed With Restrictions
Amenities Nearby
Public Transit, Schools
Maintenance or Condo Information
Maintenance Fees
$353.74 Monthly
Maintenance Fees Include
Common Area Maintenance, Insurance
Maintenance Management Company
First Service Residential
Parking
Parking Type
No Garage
Total Parking Spaces
1

Measurements

Square Footage
1000 - 1199 sqft

Rooms

MetricImperial
Main level
Living room
Dining room
Kitchen
Upper Level
Primary Bedroom
Bedroom 2
Are you interested in touring this listing?
Request a showing

Similar Listings

JOHN CHANG