We use cookies and other technologies for functionality, security, and to provide you with a personalized experience on our online services. By continuing to use our online services, you agree to our Privacy Policy and Terms of Use. For information on how to adjust your privacy settings, visit our Cookie Policy.
Dismiss
Home NS Greater Truro Colchester County Colchester Subdivision C Hilden
Irwin Lake Road
Directions Print
Irwin Lake Road $349,900
6 days ago
$349,900
Hide
Favourite

Irwin Lake Road
Hilden, Nova Scotia B0N1C0

MLS® Number: 202603143
2
Bedrooms
2
Bathrooms
1050
Square Feet

Listing Description

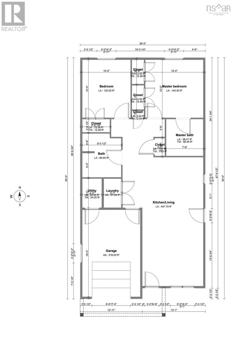
Welcome to this thoughtfully designed 1,060 sq ft home offering the perfect balance of comfort, efficiency, and modern style. With two inviting bedrooms and two well-appointed bathrooms, this property is ideal for those seeking easy, low-maintenance living without sacrificing quality or warmth. The bright eat-in kitchen flows effortlessly into the open-concept living area, creating a welcoming space for everyday living and entertaining. Large windows allow natural light to fill the home, enhancing the clean, minimalist design and comfortable atmosphere throughout. Built with durability in mind, the exterior features a striking combination of vinyl and metal siding complemented by a steel roof, offering long-lasting protection and curb appeal. Inside, year-round comfort is ensured with an energy-efficient heat pump and radiant in-floor heating, delivering cozy warmth during cooler months and refreshing comfort in the summer. A single-car garage adds everyday convenience and additional storage, while the smart layout maximizes every square foot with functional, easy living in mind. Whether you are downsizing, purchasing your first home, or simply looking for a modern space designed for todays lifestyle, this property offers exceptional value and timeless appeal. Designed with comfort and practicality in mind, this home combines quality construction with an efficient floor plan in a growing community just minutes from Truro and local amenities. A fantastic opportunity to own a brand-new home in Hilden. (231985791)

Location Description

https://share.google/721lfw5Ms9MTIbRo8

Property Summary

Property Type
Single Family
Building Type
House
Storeys
1
Square Footage
1050 sqft
Community Name
Hilden
Title
Freehold
Land Size
Unknown
Built in
2026
Parking Type
Garage, Attached Garage, Paved Yard
Time on REALTOR.ca
6 days

Building

Bedrooms
Above Grade
2
Bathrooms
Total
2
Partial
0
Interior Features
Flooring
Laminate
Basement Type
None
Building Features
Foundation Type
Poured Concrete
Style
Detached
Heating & Cooling
Cooling
Heat Pump
Utilities
Utility Sewer
Municipal sewage system
Water
Municipal water
Exterior Features
Exterior Finish
Steel, Vinyl
Parking
Parking Type
Garage, Attached Garage, Paved Yard
Accessibility Features
Entry and Access
32in min Entry Doorways, Entry less than 3 steps
Kitchen and Appliances
5ft min Kitchen Turning Radius
Interior Navigation
32in min Doorways

Measurements

Square Footage
1050 sqft
Total Finished Area
1050 sqft

Rooms

MetricImperial
Main level
Kitchen
Living room
Bedroom
Bath (# pieces 1-6)
Primary Bedroom
Ensuite (# pieces 2-6)
Are you interested in touring this listing?
Request a showing

Similar Listings

Kathy Harpell