We use cookies and other technologies for functionality, security, and to provide you with a personalized experience on our online services. By continuing to use our online services, you agree to our Privacy Policy and Terms of Use. For information on how to adjust your privacy settings, visit our Cookie Policy.
Dismiss
Home AB Greater Edmonton Division No. 11 Edmonton Eastwood
8316 122 AV NW
Directions Print
8316 122 AV NW $275,000
$275,000
Hide
Favourite

8316 122 AV NW
Edmonton, Alberta T5B4M7

MLS® Number: E4473861
4
Bedrooms
2
Bathrooms
1044
Square Feet

Listing Description

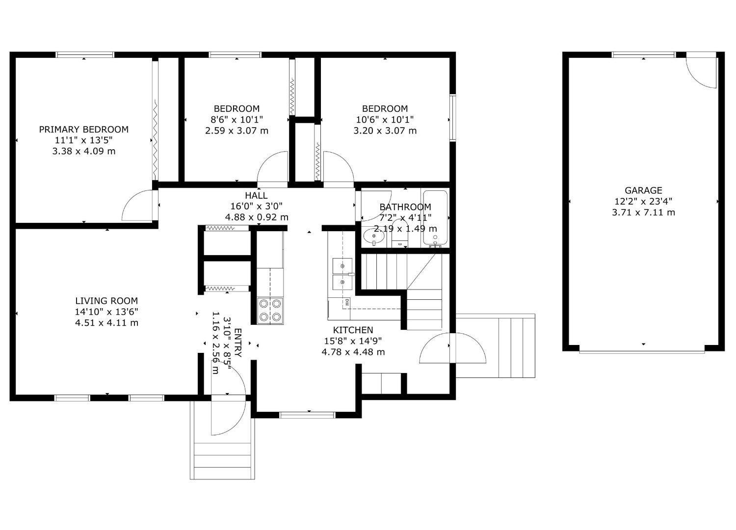
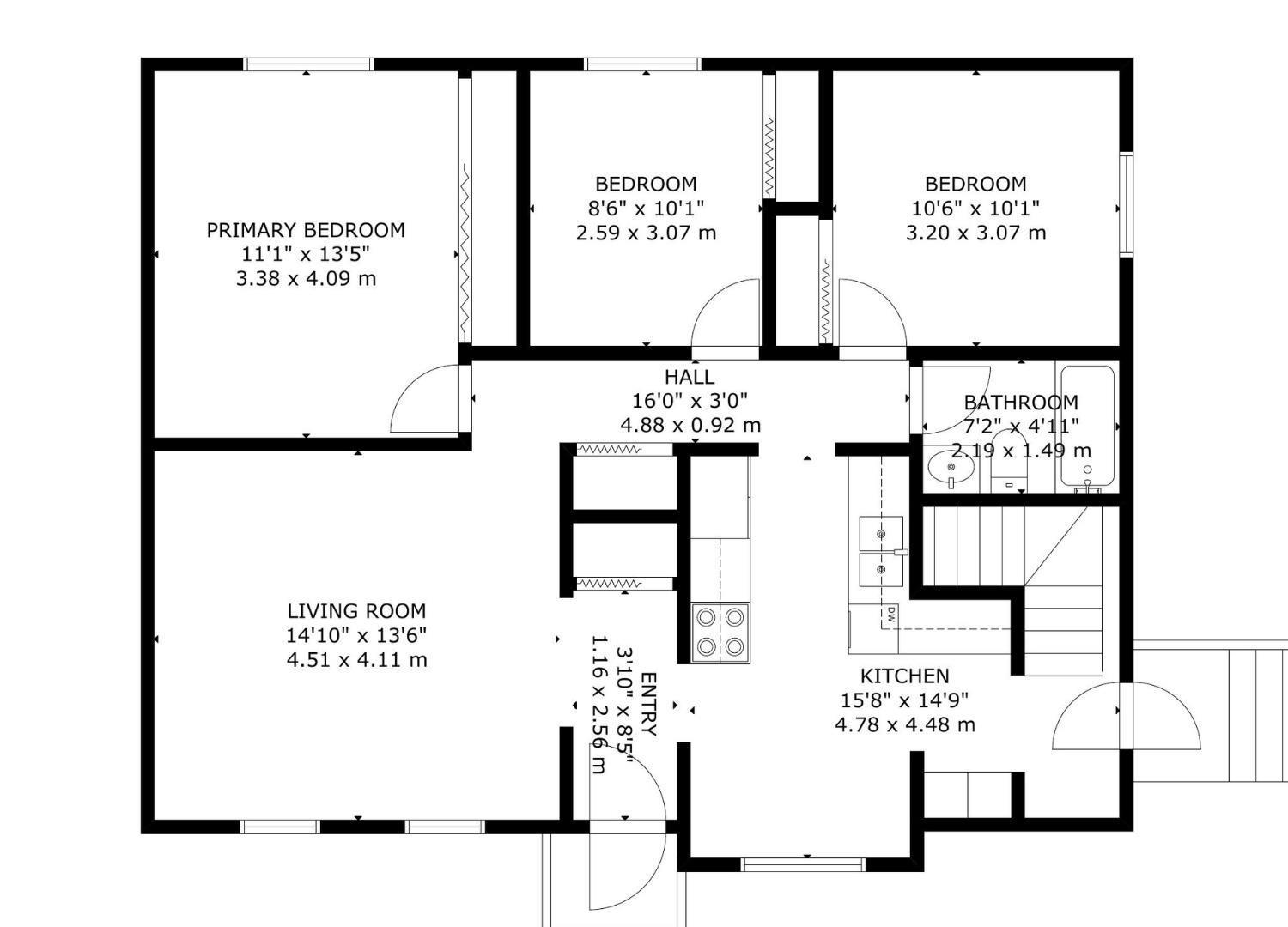
Upgraded half duplex bungalow with detached garage (12Wx24L) in Eastwood – no condo fees! This charming home features 1,041 square feet above grade plus a full, partially finished basement. On the main level: a large living room with south-facing windows, updated kitchen with built-in dishwasher, bright dining area, 3 generous-sized bedrooms and a 4-piece main bathroom. The 80% finished basement (still requiring flooring and ceiling) features a finished 3-piece bathroom, laundry room with sink & cupboards, 4th bedroom and family room. Fully fenced front & back yard with fire pit and gated access to the garage. Located near schools, shopping and all amenities. Great opportunity! (33842695)

Property Summary

Property Type
Single Family
Building Type
Duplex
Storeys
1
Square Footage
1044 sqft
Neighbourhood Name
Eastwood
Title
Freehold
Land Size
338.52 m2
Built in
1974
Parking Type
Detached Garage
Time on REALTOR.ca
9 days

Legal Description

Plan :- 9724144 Block :- 29 Lot :- 1B

Building

Bathrooms
Total
2
Interior Features
Appliances Included
Dishwasher, Dryer, Freezer, Garage door opener remote(s), Garage door opener, Hood Fan, Stove, Washer, Window Coverings, Refrigerator
Basement Type
Full (Partially finished)
Building Features
Features
Lane, No Smoking Home
Style
Semi-detached
Architecture Style
Bungalow
Structures
Dog Run - Fenced In, Fire Pit
Heating & Cooling
Heating Type
Forced air
Neighbourhood Features
Community Features
Public Swimming Pool
Amenities Nearby
Public Transit, Schools, Shopping
Parking
Parking Type
Detached Garage

Measurements

Square Footage
1044 sqft

Rooms

MetricImperial
Main level
Living room
Dining room
Kitchen
Primary Bedroom
Bedroom 2
Bedroom 3
Basement
Family room
Bedroom 4
Laundry room

Land

Lot Features
Fencing
Fence
Are you interested in touring this listing?
Request a showing

Similar Listings

Carson K. Beier