We use cookies and other technologies for functionality, security, and to provide you with a personalized experience on our online services. By continuing to use our online services, you agree to our Privacy Policy and Terms of Use. For information on how to adjust your privacy settings, visit our Cookie Policy.
Dismiss
Home ON St. Catharines - Niagara St. Catharines Louth
1287 THIRD STREET
Directions Print
1287 THIRD STREET $949,000
$949,000
Hide
Favourite

1287 THIRD STREET
St. Catharines (Rural Port), Ontario L2R6P9

MLS® Number: X12794460
3
Bedrooms
2
Bathrooms
2000 - 2500
Square Feet

Listing Description

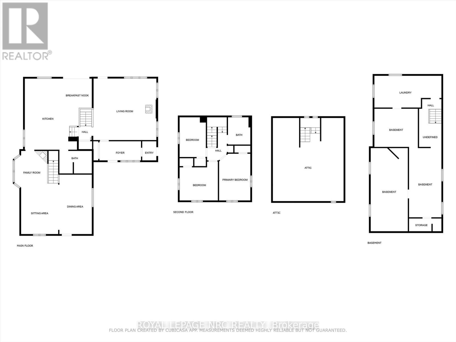
Country Living on the edge of the city. This attractive rural home is situated on a paved road close to amenities yet far enough from the hustle & bustle of city life. This 2.5 storey home has a huge front veranda along with a courtyard entry leading to a large mud room and access to the rear family room addition which was built in 1991. This massive, open concept kitchen and family room is the heart of the home. The kitchen features an island with a prep sink, Quartz counters, vaulted ceiling, 4 skylights, built-in display cabinet & 2 gas stoves/ovens perfect for a busy kitchen. This area is ideal for the person who loves big family gatherings or just loves to entertain. The kitchen overlooks the massive family room designed with a vaulted ceiling and another 4 skylights, a gas fireplace & pine walls. Main floor also offers a 3 piece bathroom with shower, formal dining and living rooms plus a cozy sitting area next to the bay window & another gas fireplace. Upstairs are 3 bedrooms, a bathroom with a jet tub and a walk up staircase to the 3rd level and an undeveloped attic. A future finished room in the attic would measure approximately 16' x 14' and could make a beautiful room for a bedroom retreat or office space. Some notable features of the home are: 8 skylights, 2016 roof shingles (Timberline), backyard garden shed, drywalled garage with high ceiling & interior that measures approx. 23' X 21'. The property is nicely landscaped and measures 100' x 164'. Set back off the road, the concrete driveway offers lots of parking for 6 vehicles. Make this your home and experience life on the edge of the city with the convenience of being a short distance to shopping, hospital, Hwy access, Green Ribbon Trail, Port Dalhousie shops, dining & the beach. (42162691)

Location Description

Cross Streets: MAIN STREET. ** Directions: QEW towards Toronto, Take exit 49 for North Service Rd., towards Third Street, Turn right onto Third Street Louth.

Property Summary

Property Type
Single Family
Building Type
House
Storeys
2.5
Square Footage
2000 - 2500 sqft
Community Name
440 - Rural Port
Title
Freehold
Land Size
100 x 164 FT
Age Of Building
100+ years
Annual Property Taxes
$6,977
Parking Type
Detached Garage, Garage
Time on REALTOR.ca
9 days

Building

Bedrooms
Above Grade
3
Bathrooms
Total
2
Interior Features
Appliances Included
Garage door opener remote(s), Water Heater, Blinds, Dishwasher, Dryer, Garage door opener, Two stoves, Washer, Two Refrigerators
Flooring
Hardwood
Basement Type
Partial (Partially finished)
Building Features
Features
Level lot, Level, Sump Pump
Foundation Type
Concrete
Style
Detached
Fire Protection
Monitored Alarm, Smoke Detectors
Building Amenities
Fireplace(s)
Structures
Deck, Porch, Shed
Heating & Cooling
Cooling
Central air conditioning
Fireplace
2
Heating Type
Forced air (Natural gas)
Utilities
Utility Sewer
Septic System
Exterior Features
Exterior Finish
Aluminum siding
Neighbourhood Features
Community Features
School Bus
Amenities Nearby
Place of Worship
Parking
Parking Type
Detached Garage, Garage
Total Parking Spaces
8

Measurements

Square Footage
2000 - 2500 sqft

Rooms

MetricImperial
Main level
Kitchen
Family room
Dining room
Living room
Mud room
Sitting room
Bathroom
Second level
Bathroom
Bedroom
Bedroom 2
Bedroom 3
Basement
Laundry room

Land

Lot Features
Fencing
Fully Fenced, Fenced yard
Frontage
100 ft
Land Depth
164 ft
Landscape Features
Landscaped
Are you interested in touring this listing?
Request a showing

Similar Listings

CAROL LOTZ