We use cookies and other technologies for functionality, security, and to provide you with a personalized experience on our online services. By continuing to use our online services, you agree to our Privacy Policy and Terms of Use. For information on how to adjust your privacy settings, visit our Cookie Policy.
Dismiss
Home AB Greater Edmonton Division No. 11 Edmonton Marquis
622 176 AV NE
Directions Print
622 176 AV NE $442,250
$442,250
Hide
Favourite

622 176 AV NE
Edmonton, Alberta T5Y4K3

MLS® Number: E4473715
3
Bedrooms
3
Bathrooms
1367
Square Feet

Listing Description

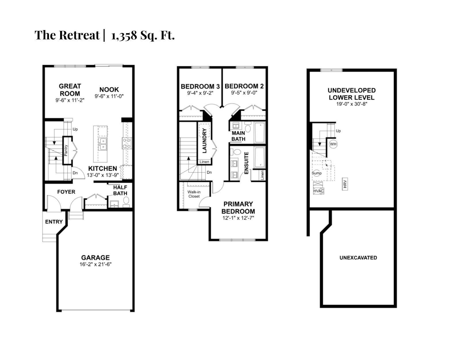
Built by Sterling Homes in the vibrant community of Marquis, this thoughtfully designed duplex offers a seamless blend of style, comfort, and long-term value. Surrounded by trails, ponds, and future schools, the location is ideal for those seeking a balanced lifestyle. Inside, the main floor impresses with 9’ ceilings and triple-pane windows that flood the open-concept layout with light. The chef-inspired kitchen serves as the home's heart, featuring sleek quartz countertops, a central island, upgraded cabinetry, a chimney hood fan, and a built-in microwave. Large windows and a sliding patio door connect the great room to the backyard, perfect for indoor-outdoor living. Upstairs, the primary suite provides a serene retreat with a walk-in closet and a 4-piece ensuite featuring double sinks. Two more bedrooms, a full bath, and a laundry room complete the level. With a double attached garage, side entrance, and basement rough-ins, this home is ready for your future. (33837364)

Property Summary

Property Type
Single Family
Building Type
Duplex
Storeys
2
Square Footage
1367 sqft
Neighbourhood Name
Marquis
Title
Freehold
Land Size
242.75 m2
Built in
2026
Parking Type
Attached Garage
Time on REALTOR.ca
11 days

Legal Description

Plan :- 2422634 Block :- 3 Lot :- 13

Building

Bathrooms
Total
3
Partial
1
Interior Features
Appliances Included
Garage door opener remote(s), Garage door opener, Hood Fan, Microwave
Basement Type
Full (Unfinished)
Building Features
Features
No Animal Home, No Smoking Home
Style
Semi-detached
Fire Protection
Smoke Detectors
Building Amenities
Ceiling - 9ft
Heating & Cooling
Heating Type
Forced air
Neighbourhood Features
Amenities Nearby
Public Transit, Schools, Shopping
Parking
Parking Type
Attached Garage
Total Parking Spaces
4

Measurements

Square Footage
1367 sqft

Rooms

Main level
Living room
Dining room
Kitchen
Upper Level
Primary Bedroom
Bedroom 2
Bedroom 3
Are you interested in touring this listing?
Request a showing

Similar Listings

Joe Tolvay