We use cookies and other technologies for functionality, security, and to provide you with a personalized experience on our online services. By continuing to use our online services, you agree to our Privacy Policy and Terms of Use. For information on how to adjust your privacy settings, visit our Cookie Policy.
Dismiss
Home ON Greater Toronto Area Toronto North York Bayview Village
307 - 19 BARBERRY PLACE
Directions Print
307 - 19 BARBERRY PLACE $525,000
2 hours ago
$525,000
Hide
Favourite

307 - 19 BARBERRY PLACE
Toronto (Bayview Village), Ontario M2K3E3

MLS® Number: C12705772
1 + 1
Bedrooms
2
Bathrooms
600 - 699
Square Feet

Listing Description

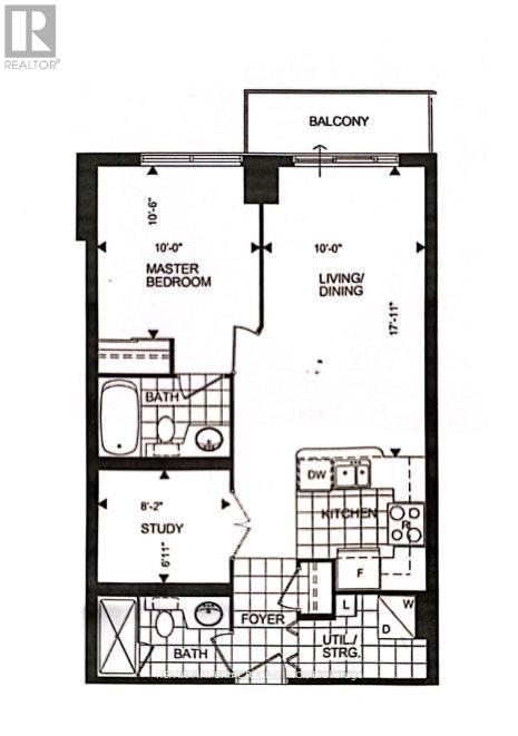
Prime Location At Bayview & Sheppard, ! Best Value! Nice & Quiet Building (Handicapped-Friendly) With Almost 700 S.F, Super Clean Condition, One Bedroom + Den, Two Bathrooms, Modern Kitchen W/ Granite Top/Breakfast Bar, Laminate Flooring, W/Out To Balcony, Den Can Be Used As A 2nd Bedroom, Master Bedroom W/ 4 Pc Ensuite, Double Closet, Walk To Bayview Village Mall With Loblaw, Public Library, Banks & Restaurants, 1Min Walk To Bayview Subway Station, 1 Min Drive Onto Highway 401 (41968134)

Location Description

Cross Streets: Bayview Avenue & Sheppard Avenue East. ** Directions: Above ground visitor parking at the back of the building.

Property Summary

Property Type
Single Family
Building Type
Apartment
Square Footage
600 - 699 sqft
Community Name
Bayview Village
Title
Condominium/Strata
Age Of Building
16 to 30 years
Annual Property Taxes
$2,389.52
Parking Type
Underground, Garage
Time on REALTOR.ca
2 hours

Building

Bedrooms
Above Grade
1
Below Grade
1
Bathrooms
Total
2
Interior Features
Appliances Included
Dishwasher, Dryer, Microwave, Stove, Washer, Refrigerator
Basement Type
None
Building Features
Features
Balcony, In suite Laundry
Heating & Cooling
Cooling
Central air conditioning
Heating Type
Forced air (Natural gas)
Exterior Features
Exterior Finish
Brick
Neighbourhood Features
Community Features
Pets Allowed With Restrictions
Maintenance or Condo Information
Maintenance Fees
$701.82 Monthly
Maintenance Fees Include
Heat, Common Area Maintenance, Insurance, Parking, Water
Maintenance Management Company
MRCM
Parking
Parking Type
Underground, Garage
Total Parking Spaces
1

Measurements

Square Footage
600 - 699 sqft
Are you interested in touring this listing?
Request a showing

Similar Listings

CHO KAN