We use cookies and other technologies for functionality, security, and to provide you with a personalized experience on our online services. By continuing to use our online services, you agree to our Privacy Policy and Terms of Use. For information on how to adjust your privacy settings, visit our Cookie Policy.
Dismiss
Home ON Ottawa - Gatineau Ottawa Carp
714 TAILSLIDE PRIVATE
Directions Print
714 TAILSLIDE PRIVATE $599,900
2 days ago
$599,900
Hide
Favourite

714 TAILSLIDE PRIVATE
Ottawa, Ontario K0A1L0

MLS® Number: X12694510
3
Bedrooms
3
Bathrooms
1500 - 2000
Square Feet

Listing Description

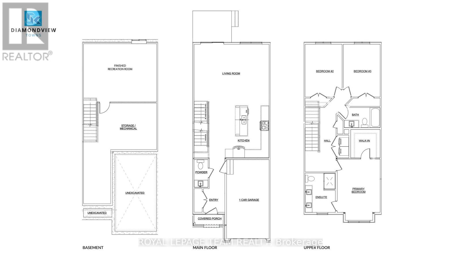
NEW MODEL HOME available for viewing! SEASONAL SPECIAL: $10,000 DESIGN CENTRE BONUS & SMOOTH CEILINGS Included for a limited time! Executive town radiating curb appeal & exquisite design, on an extra deep lot. Their high-end, standard features set them apart. Exterior: Genuine wood siding on front exterior w/ metal roof accent, wood inspired garage door, arched entryway, 10' x 8' deck off rear + eavesthroughing! Inside: Finished recroom incl. in price along w/ 9' ceilings & high-end textured vinyl floors on main, designer kitchen w/ huge centre island, extended height cabinetry, backsplash & quartz counters, pot lights & soft-close cabinetry throughout! The 2nd floor laundry adds convenience, while the large primary walk-in closet delights. Rare community amenities incl. walking trails, 1st class community center w/ sport courts (pickleball & basketball), playground, covered picnic area & washrooms! Lower property taxes & water bills make this locale even more appealing. Experience community, comfort & rural charm mere minutes from the quaint village of Carp & HWY for easy access to Ottawa's urban areas. Whether for yourself or as an investment, Sheldon Creek Homes in Diamondview Estates offers a truly exceptional opportunity! Don't miss out - Sheldon Creek Homes, the newest addition to Diamondview Estates! With 20 years of residential experience in Orangeville, ON, their presence in Carp marks an exciting new chapter of modern living in rural Ottawa. WOW - AMAZING VALUE! Act Now! (41943705)

Location Description

Cross Streets: Albert Boyd Private. ** Directions: HWY 417 to March Rd/Almonte Exit. Head northeast on March Rd towards Carp, then right on Diamondview Rd, left on Albert Boyd Pvt into Diamondview Estates, right on Chandelle Pvt, left on Tailslide Pvt. Home will be on your right.

Property Summary

Property Type
Single Family
Building Type
Row / Townhouse
Storeys
2
Square Footage
1500 - 2000 sqft
Community Name
9104 - Huntley Ward (South East)
Title
Freehold
Land Size
20 x 114 FT ; 0
Age Of Building
New building
Annual Property Taxes
$0
Parking Type
Attached Garage, Garage
Time on REALTOR.ca
2 days

Building

Bedrooms
Above Grade
3
Bathrooms
Total
3
Partial
1
Interior Features
Appliances Included
Hood Fan
Basement Type
Partially finished
Building Features
Features
Lane
Foundation Type
Concrete
Style
Attached
Rental Equipment
Water Heater - Tankless
Structures
Deck
Heating & Cooling
Cooling
Air exchanger
Heating Type
Forced air (Natural gas)
Utilities
Utility Type
Cable (Available), Electricity (Installed), Natural Gas Available (Available)
Water
Municipal water
Exterior Features
Exterior Finish
Brick
Neighbourhood Features
Community Features
Community Centre
Amenities Nearby
Park
Parking
Parking Type
Attached Garage, Garage
Total Parking Spaces
3

Measurements

Square Footage
1500 - 2000 sqft

Rooms

MetricImperial
Main level
Foyer
Living room
Kitchen
Bathroom
Second level
Laundry room
Primary Bedroom
Bathroom
Bedroom 2
Bedroom 3
Bathroom
Lower level
Recreational, Games room
Utility room

Land

Lot Features
Frontage
20 ft
Land Depth
114 ft
Other Property Information
Zoning Description
Residential
Data provided by: Ottawa Real Estate Board
Are you interested in touring this listing?
Request a showing

Similar Listings

Jen MacDonald