We use cookies and other technologies for functionality, security, and to provide you with a personalized experience on our online services. By continuing to use our online services, you agree to our Privacy Policy and Terms of Use. For information on how to adjust your privacy settings, visit our Cookie Policy.
Dismiss
Home ON Greater Toronto Area York Region Markham Unionville
37 MAIN STREET
Directions Print
More Photos + 1
37 MAIN STREET $4,180,000
$4,180,000
Hide
Favourite

37 MAIN STREET
Markham (Unionville), Ontario L3R2E5

MLS® Number: N12687482

Listing Description

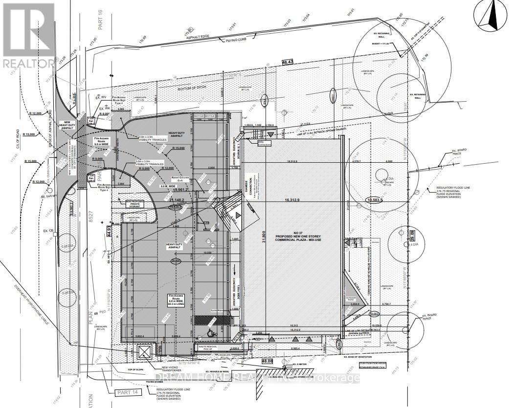
Rarely offer Vacant Commercial land (0.6 Acres) in Prime Unionville Community. A 2 Story Plaza Building with 18 parking spots has been approved. All approved permit drawings, consultation report and design are included. (41928385)

Location Description

Kennedy/Hwy 407

Property Summary

Property Type
Vacant Land
Community Name
Unionville
Land Size
0.588 ac
Annual Property Taxes
$24,101
Time on REALTOR.ca
46 days

Building

Utilities
Water
Municipal water

Measurements

Square Footage
1 ac

Land

Lot Features
Frontage
147 ft
Land Depth
161 ft ,9 in
Other Property Information
Zoning Description
Retail/Office/Restaurant/Health Centre..
Are you interested in touring this listing?
Request a showing

Similar Listings

ADA LIU