We use cookies and other technologies for functionality, security, and to provide you with a personalized experience on our online services. By continuing to use our online services, you agree to our Privacy Policy and Terms of Use. For information on how to adjust your privacy settings, visit our Cookie Policy.
Dismiss
Home ON Greater Toronto Area Toronto North York Willowdale East East Willowdale
364 GREENFIELD AVENUE
Directions Print
More Photos + 2
364 GREENFIELD AVENUE $1,800,000
$1,800,000
Hide
Favourite

364 GREENFIELD AVENUE
Toronto (Willowdale East), Ontario M2N3E8

MLS® Number: C12666072
4 + 1
Bedrooms
2
Bathrooms
2000 - 2500
Square Feet

Listing Description

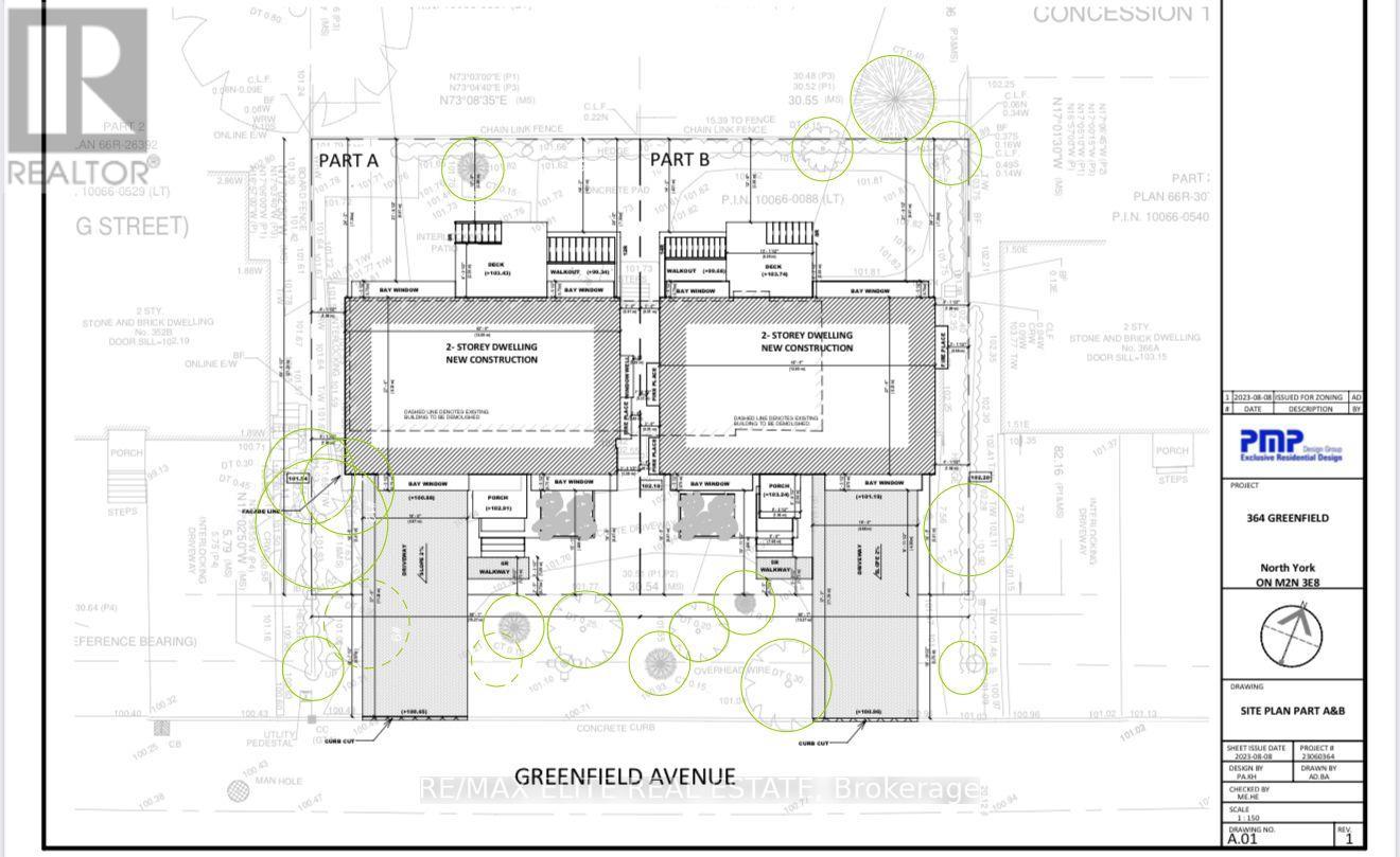
MUST SELL!!! Don't Miss This Incredible development opportunity in prestigious Willowdale East! Approved severance in place to build two luxury custom homes, located on a quiet cul-de-sac surrounded by multi-million dollar residences. Includes full architectural drawings for building permits.Truly a turn-key project for builders, investors, or end-users. Existing home is in livable condition and can be rented while preparing to build. Walk to Bayview Village Mall, Bessarion & Bayview subway stations, top-rated schools (Earl Haig, Bayview MS), parks, and shops. Close to Hwy 401, North York General Hospital, YMCA, and more. A prime location with strong resale value and endless potential don't miss this rare chance to build in one of Toronto's most desirable neighborhoods! (41885887)

Location Description

Bayview And Sheppard

Property Summary

Property Type
Single Family
Building Type
House
Square Footage
2000 - 2500 sqft
Community Name
Willowdale East
Title
Freehold
Land Size
100 x 69.6 FT
Annual Property Taxes
$10,927
Parking Type
Attached Garage, Garage
Time on REALTOR.ca
10 days

Building

Bedrooms
Above Grade
4
Below Grade
1
Bathrooms
Total
2
Interior Features
Appliances Included
Central Vacuum, Dishwasher, Dryer, Freezer, Stove, Washer, Window Coverings, Refrigerator
Flooring
Hardwood, Ceramic
Basement Features
Walk out, Walk-up
Basement Type
Finished
Building Features
Features
Cul-de-sac
Foundation Type
Concrete
Style
Detached
Split Level Style
Sidesplit
Heating & Cooling
Cooling
Central air conditioning
Heating Type
Forced air (Natural gas)
Utilities
Utility Sewer
Sanitary sewer
Water
Municipal water
Exterior Features
Exterior Finish
Brick
Pool Type
Inground pool
Neighbourhood Features
Amenities Nearby
Public Transit, Park, Hospital
Parking
Parking Type
Attached Garage, Garage
Total Parking Spaces
8

Measurements

Square Footage
2000 - 2500 sqft

Rooms

MetricImperial
Main level
Living room
Dining room
Kitchen
Basement
Bedroom
Great room
Lower level
Bedroom 3
Bedroom 4
Sub-basement
Recreational, Games room
Upper Level
Primary Bedroom
Bedroom 2

Land

Lot Features
Frontage
100 ft
Land Depth
69 ft ,7 in
Are you interested in touring this listing?
Request a showing

Similar Listings

FENGXIA SHIRLEY JI