We use cookies and other technologies for functionality, security, and to provide you with a personalized experience on our online services. By continuing to use our online services, you agree to our Privacy Policy and Terms of Use. For information on how to adjust your privacy settings, visit our Cookie Policy.
Dismiss
Home ON Kitchener - Cambridge - Waterloo Waterloo Region Kitchener Vanier
228A CONNAUGHT STREET
Directions Print
228A CONNAUGHT STREET $399,000
$399,000
Hide
Favourite

228A CONNAUGHT STREET
Kitchener, Ontario N2C1B3

MLS® Number: X12655760
0
Bathrooms
-
Square Feet

Listing Description

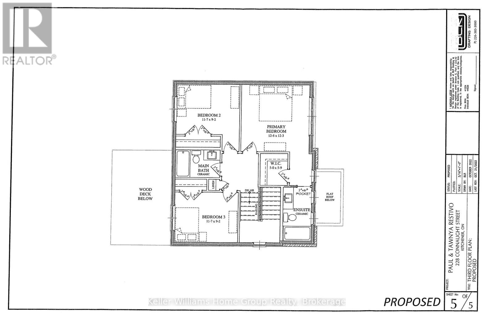
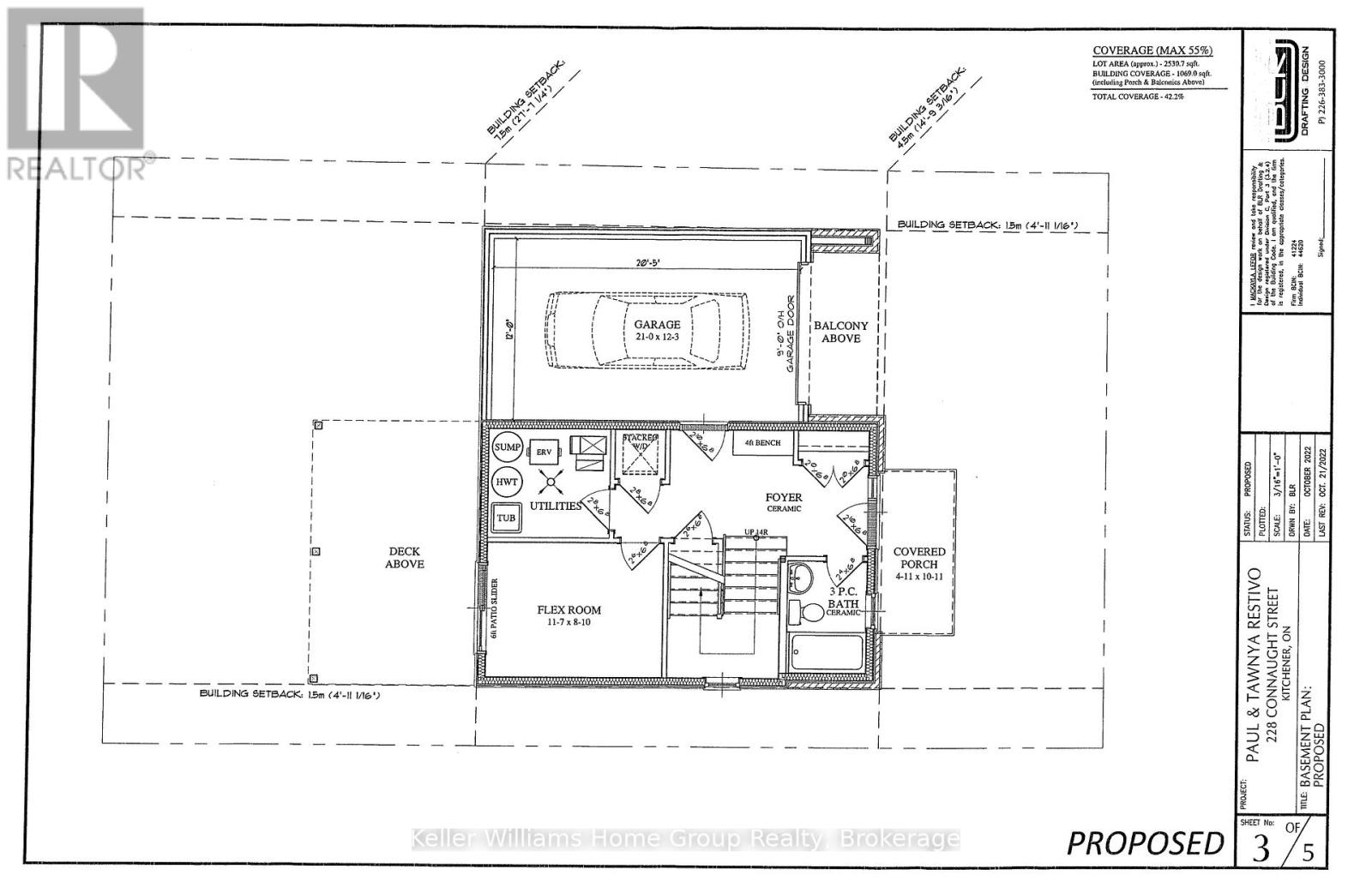
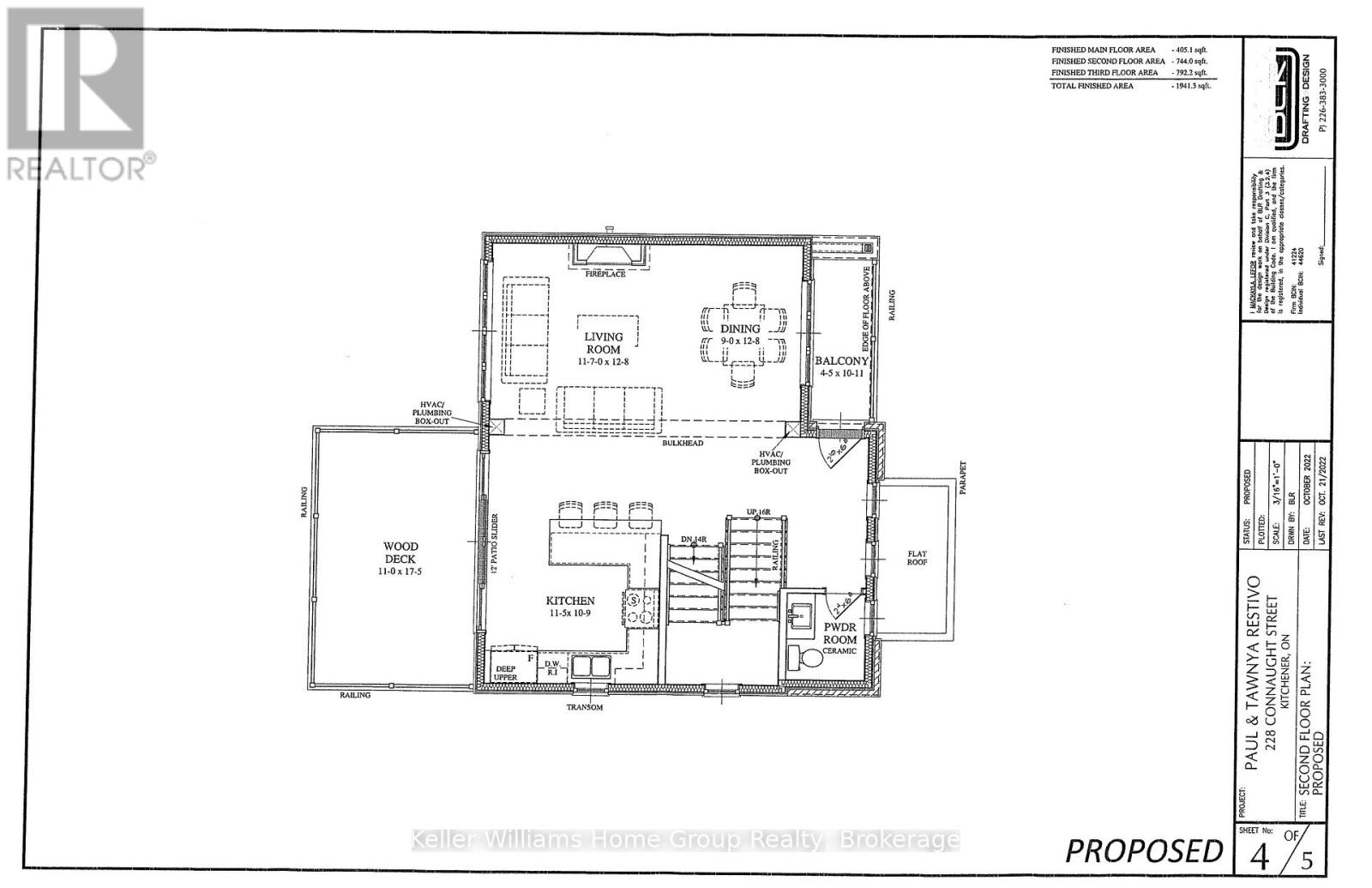
Prime Vacant lot in the Wilson Park area, close to Kingdales Community Centre, Wilson Ave Public School and Holy Trinity Church are all just a stone's throw away. This is a great opportunity to build your custom home in a nice mature neighbourhood. This vacant building lot offers the chance to build your new home in a mature, established neighbourhood. See plans for a 3 level, 3 bedroom, 3.5 bathroom contemporary style home that would be ideal on this lot or choose your own design and style to suit your needs. (41865338)

Location Description

Connaught & Fourth

Property Summary

Property Type
Vacant Land
Land Size
38 x 66 FT|under 1/2 acre
Annual Property Taxes
$0
Time on REALTOR.ca
56 days

Building

Bathrooms
Total
0
Heating & Cooling
Cooling
None
Heating Type
Other
Utilities
Utility Type
Cable (Available), Electricity (Available), Sewer (Available)
Neighbourhood Features
Amenities Nearby
Golf Nearby, Schools, Ski area

Land

Lot Features
Frontage
38 ft
Land Depth
66 ft
Other Property Information
Zoning Description
R3
Are you interested in touring this listing?
Request a showing

Similar Listings

CARL WILKINSON