We use cookies and other technologies for functionality, security, and to provide you with a personalized experience on our online services. By continuing to use our online services, you agree to our Privacy Policy and Terms of Use. For information on how to adjust your privacy settings, visit our Cookie Policy.
Dismiss
Home NS Pictou County Pictou
68 Cottage Street
Directions Print
68 Cottage Street $579,900
$579,900
Hide
Favourite

68 Cottage Street
Pictou, Nova Scotia B0K1H0

MLS® Number: 202529427
4
Bedrooms
2
Bathrooms
3885
Square Feet

Listing Description

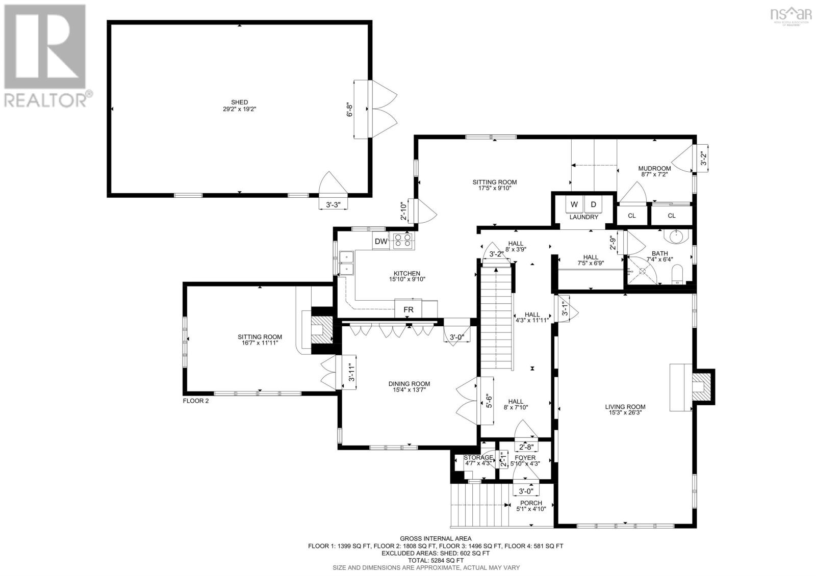
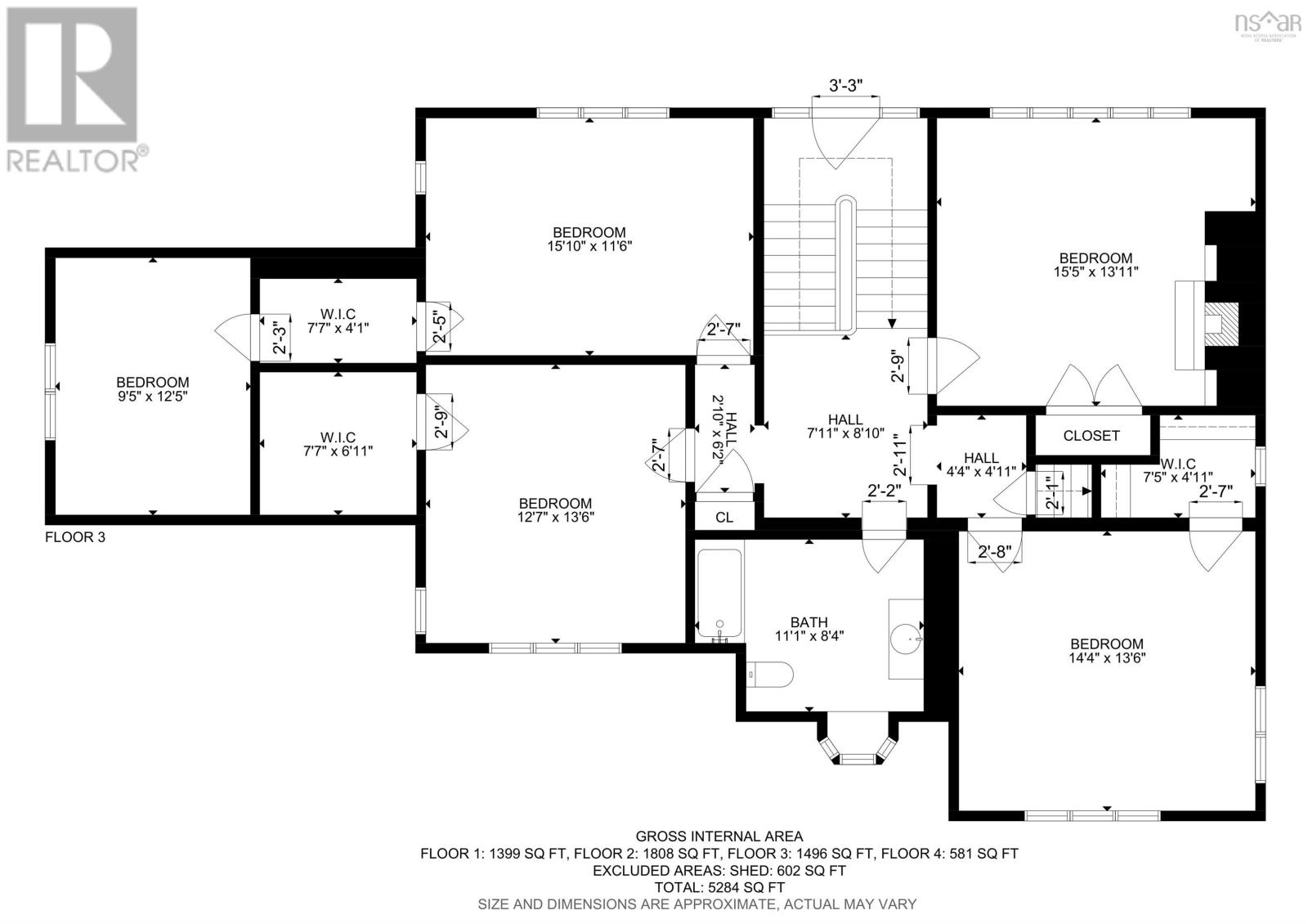
Discover timeless charm and historic elegance in this stunning 2.5-story home at 68 Cottage Street. Originally built in 1890 by the original owners of the renowned Pictou Shipyard and thoughtfully rebuilt in 1940, this residence offers a unique blend of heritage and modern comfort. Set on over one acre on a corner lot, the home features striking cedar siding with classic brick accents and lush ivy adorning the front facade. Towering linden trees surround the estate, creating a serene and picturesque setting in a highly desirable neighborhood. Step inside to experience spacious, light-filled interiors with huge hallways and original hardwood floors beneath the laminate wood coverings on the main floor. The home boasts four generous bedrooms, two full bathrooms, and two versatile attic rec rooms, plus a secret room accessed through one of the bedrooms! Three cozy fireplaces and original iron radiators provide warmth and character throughout. Original windows, complete with dual panels that swing open from the inside, preserve the home's historic charm while flooding rooms with natural light. The expansive great room features custom built-in library shelving, and the formal dining room impresses with a full wall of built-in cabinetryperfect for entertaining. French doors on the staircase landing lead outside, where a balcony is begging to be built. Additional highlights include a large detached garage, insulated and wired with a wood stove, and a converted side entrance mudroom with a pellet stove that opens to the kitchen, blending functionality and comfort seamlessly. Recent renovations include fresh plaster and paint throughout, preserving the home's character while ensuring a move-in-ready experience. (231714914)

Location Description

From Pictou rotary, take West River Rd, left onto Alfred St, right onto Cottage. Property is on left

Property Summary

Property Type
Single Family
Building Type
House
Storeys
2.5
Square Footage
3885 sqft
Community Name
Pictou
Title
Freehold
Land Size
1.0573 ac
Parking Type
Garage, Detached Garage, Gravel, Parking Space(s)
Time on REALTOR.ca
55 days

Building

Bedrooms
Above Grade
4
Bathrooms
Total
2
Partial
0
Interior Features
Appliances Included
Oven, Dishwasher, Dryer, Washer
Flooring
Ceramic Tile, Hardwood, Laminate, Vinyl
Basement Type
Full (Partially finished)
Building Features
Features
Treed, Balcony, Level
Foundation Type
Poured Concrete, Stone
Style
Detached
Heating & Cooling
Cooling
Wall unit, Heat Pump
Utilities
Utility Sewer
Municipal sewage system
Water
Municipal water
Exterior Features
Exterior Finish
Wood shingles
Neighbourhood Features
Community Features
Recreational Facilities, School Bus
Amenities Nearby
Golf Course, Park, Playground, Public Transit, Shopping, Place of Worship, Beach
Parking
Parking Type
Garage, Detached Garage, Gravel, Parking Space(s)
Accessibility Features
Entry and Access
Entry less than 3 steps, Entry threshold less than ½ inch
Kitchen and Appliances
5ft min Kitchen Turning Radius
Bathroom Amenities
5ft min Bathroom Turning Radius
Interior Navigation
32in min Hallways

Measurements

Square Footage
3885 sqft
Source: Other
Total Finished Area
3885 sqft

Rooms

MetricImperial
Main level
Foyer
Kitchen
Laundry / Bath
Bath (# pieces 1-6)
Dining room
Great room
Den
Porch
Mud room
Second level
Bedroom
Bedroom
Bedroom
Bedroom
Games room
Bath (# pieces 1-6)
Third level
Recreational, Games room
Recreational, Games room

Land

Lot Features
Landscape Features
Landscaped
View
Harbour

Tax Assessment

Tax year Assessed value Tax assessed value
2025 $237,900 $181,700
2024 $213,200 $179,100
2023 $212,000 $173,600
2022 $186,400 $161,200
2021 $175,400 $153,000
Contains information licensed under the Open Data & Information Government Licence – PVSC & Participating Municipalities.
Are you interested in touring this listing?
Request a showing

Similar Listings

Lisa Fulton