We use cookies and other technologies for functionality, security, and to provide you with a personalized experience on our online services. By continuing to use our online services, you agree to our Privacy Policy and Terms of Use. For information on how to adjust your privacy settings, visit our Cookie Policy.
Dismiss
Home NS Greater Halifax Halifax County Halifax Fall River
761H 42 Flycatcher Lane
Directions Print
761H 42 Flycatcher Lane $889,000
$889,000
Hide
Favourite

761H 42 Flycatcher Lane
Fall River, Nova Scotia B2T0X3

MLS® Number: 202529342
3 + 1
Bedrooms
3
Bathrooms
2522
Square Feet

Listing Description

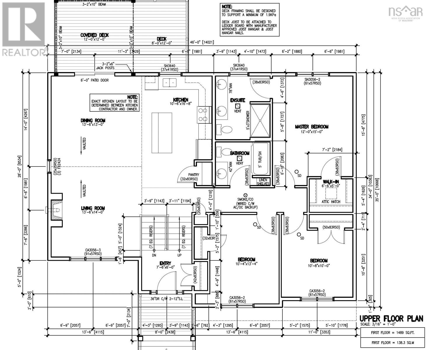
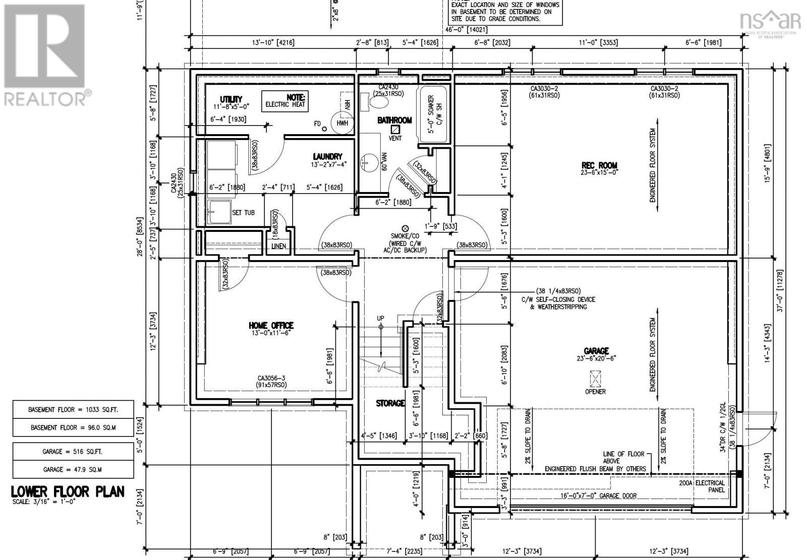
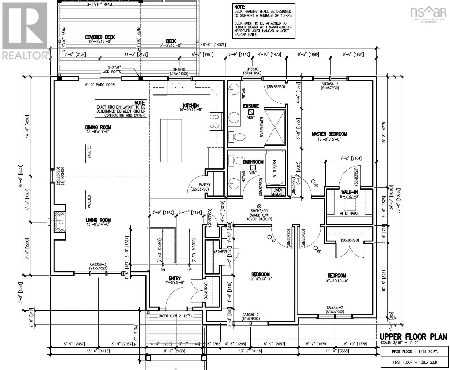
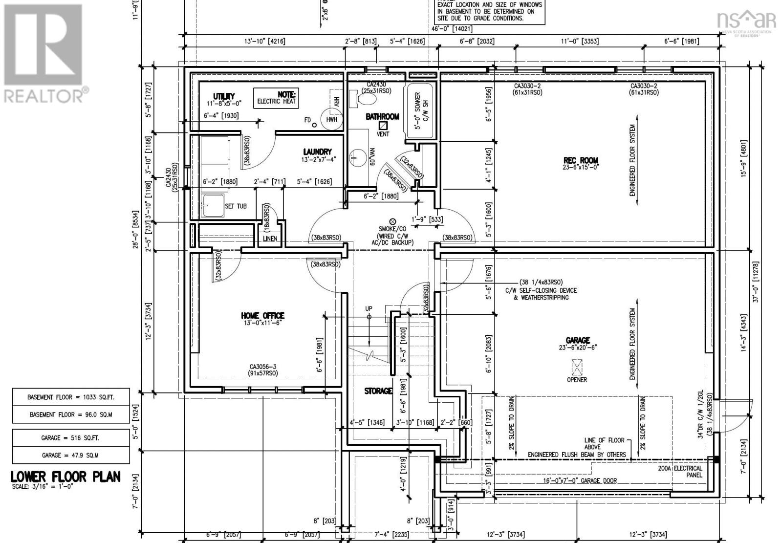
Another Quality Built Gerald Mitchell Home. Welcome to the Kingswood, designed with the growing family in mind. Be welcomed home to this well thought out plan with spacious entry, beautiful kitchen w/ large island, spacious dining room, and open concept flow of the main living area all under the grand vaulted ceiling. Cozy up next to the fireplace in the winter. Enjoy the 12' x 20' back deck, off the dining room with beautiful, covered roof portion on the warmer days. The Master bedroom with lovely ensuite bathroom and custom walk-in closet and two more good sized rooms, also with custom closets, and the main four pc bath, round out the main floor. Downstairs you will find a large rec room, another full bathroom w stand up shower, spacious laundry room, and a flexible space, 13 x 11, that could be a den, office or even a fourth bedroom. Home also features a 23 x 20 attached garage, heating and cooling with efficient ductless heat pumps. Kinloch Subdivision is a family filled haven. The Spacious lots invite nature into daily life. Fall River is situated just off the highway. Airport, Dartmouth crossing and Bedford Crossing all approx. 10-15 mins away. 25 Mins to downtown Dartmouth or Halifax. (231709737)

Location Description

Hwy #2 Fall River to Fall River Rd, to Lockview Rd, to Kinclaven Dr, to High Rd, to St Andrews drive, to Greenock Dr, to Confederation Dr, to Celebration Dr, to Washington Lane, to Flycatcher Lane

Property Summary

Property Type
Single Family
Building Type
House
Storeys
1
Square Footage
2522 sqft
Community Name
Fall River
Title
Freehold
Land Size
1.716 ac
Parking Type
Garage, Attached Garage, Gravel
Time on REALTOR.ca
57 days

Building

Bedrooms
Above Grade
3
Below Grade
1
Bathrooms
Total
3
Partial
0
Interior Features
Appliances Included
None
Flooring
Laminate, Tile
Basement Type
Full (Finished)
Building Features
Features
Treed
Foundation Type
Poured Concrete
Style
Detached
Heating & Cooling
Cooling
Wall unit, Heat Pump
Utilities
Utility Sewer
Septic System
Water
Drilled Well
Exterior Features
Exterior Finish
Stone, Vinyl
Neighbourhood Features
Community Features
School Bus
Amenities Nearby
Playground, Shopping
Parking
Parking Type
Garage, Attached Garage, Gravel
Accessibility Features
Entry and Access
32in min Entry Doorways
Interior Navigation
32in min Doorways

Measurements

Square Footage
2522 sqft
Source: Listing Brokerage
Total Finished Area
2522 sqft

Rooms

MetricImperial
Main level
Foyer
Living room
Dining room
Kitchen
Bath (# pieces 1-6)
Primary Bedroom
Ensuite (# pieces 2-6)
Bedroom
Bedroom
Lower level
Bedroom
Laundry / Bath
Utility room
Bath (# pieces 1-6)
Recreational, Games room
Are you interested in touring this listing?
Request a showing

902-497-8464
902-442-0963
REALTOR® Website

Similar Listings

Jerry Mitchell