We use cookies and other technologies for functionality, security, and to provide you with a personalized experience on our online services. By continuing to use our online services, you agree to our Privacy Policy and Terms of Use. For information on how to adjust your privacy settings, visit our Cookie Policy.
Dismiss
Home BC Metro Vancouver Vancouver Kitsilano
312 2118 W 15TH AVENUE
Directions Print
312 2118 W 15TH AVENUE $1,599,000
1 day ago
Next Open House
Dec
14
$1,599,000
Hide
Favourite

312 2118 W 15TH AVENUE
Vancouver, British Columbia V6K2Y5

MLS® Number: R3073201
2
Bedrooms
2
Bathrooms
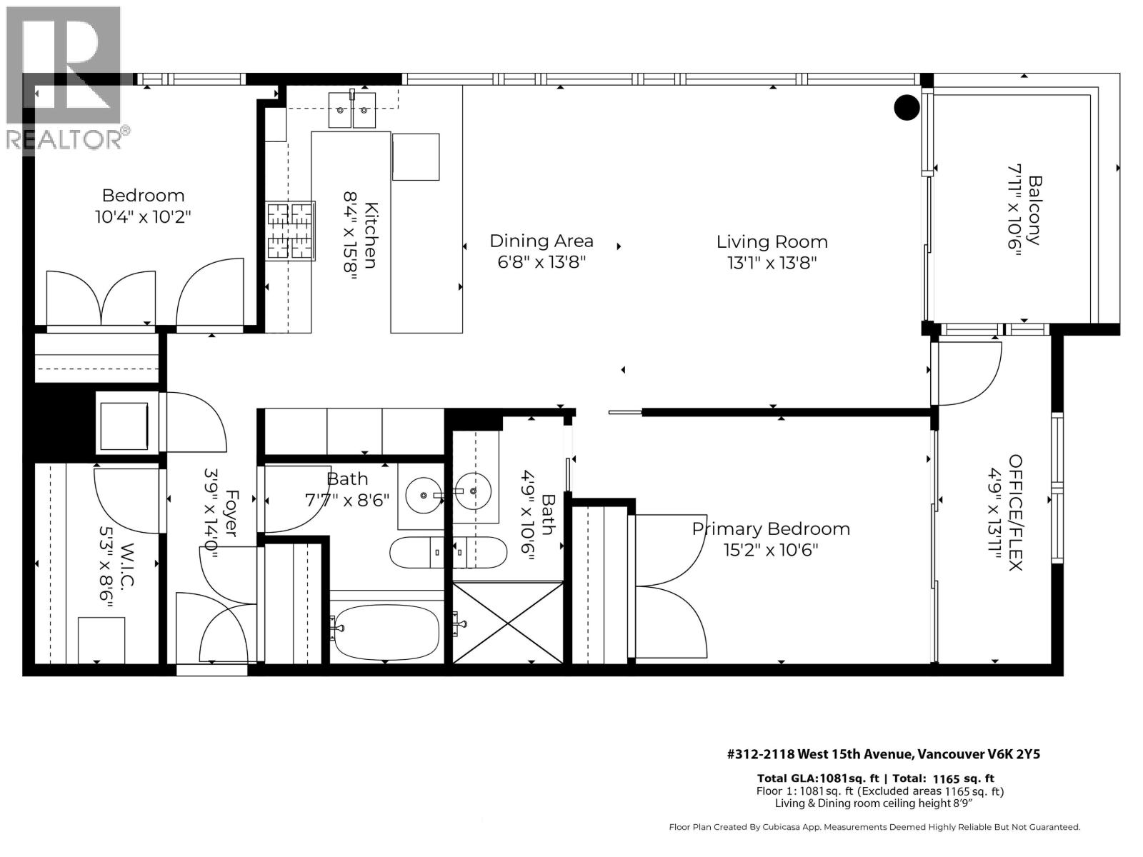
1081
Square Feet

Listing Description

Welcome to THE RIDGE - a pet friendly building where luxury meets function in this lovely, air-conditioned SE CORNER 2 bdrm & den unit, 2-bath concrete home. Thoughtfully designed with zero wasted space, this residence showcases Cressey's renowned craftsmanship and attention to detail. Step into your chef's kitchen featuring Wolf & Sub-Zero appliances, marble/granite countertops and backsplash, and sleek European cabinetry. The 2 spa-inspired bathrooms include heated marble floors, rain showers and elegant vanities. Having lovely floor-to-ceiling windows, and wide-plank eng hardwood throughout, the home feels bright, open, and sophisticated. Additional features include roller blinds, two side-by-side parking stalls, large storage locker & insuite storage too! OPEN: SUNDAY 14th 2-4pm (32250617)

Open Houses

Dec 14
2-4 PM
Dec 16
10:30-12 PM
Add to Calendar

Property Summary

Property Type
Single Family
Building Type
Apartment
Square Footage
1081 sqft
Title
Strata
Land Size
0
Built in
2015
Annual Property Taxes
$4,611.93
Parking Type
Visitor Parking
Time on REALTOR.ca
1 day

Building

Bathrooms
Total
2
Interior Features
Appliances Included
All
Fixtures Included
Drapes/Window coverings
Building Features
Features
Central location, Elevator
Building Amenities
Exercise Centre, Laundry - In Suite
Heating & Cooling
Cooling
Air Conditioned
Heating Type
Heat Pump
Neighbourhood Features
Community Features
Pets Allowed With Restrictions
Amenities Nearby
Recreation, Shopping
Maintenance or Condo Information
Maintenance Fees
$876.26 Monthly
Parking
Parking Type
Visitor Parking
Total Parking Spaces
2

Measurements

Square Footage
1081 sqft
Data provided by: Greater Vancouver REALTORS®
Are you interested in touring this listing?
Request a showing

Similar Listings

Ana Domingos