We use cookies and other technologies for functionality, security, and to provide you with a personalized experience on our online services. By continuing to use our online services, you agree to our Privacy Policy and Terms of Use. For information on how to adjust your privacy settings, visit our Cookie Policy.
Dismiss
Home ON Greater Kingston Kingston Rideau Heights
20 MACCAULEY STREET
Directions Print
20 MACCAULEY STREET $429,900
2 days ago
Next Open House
Dec
14
$429,900
Hide
Favourite

20 MACCAULEY STREET
Kingston (Rideau), Ontario K7K2V5

MLS® Number: X12615052
2
Bedrooms
1
Bathrooms
700 - 1100
Square Feet

Listing Description

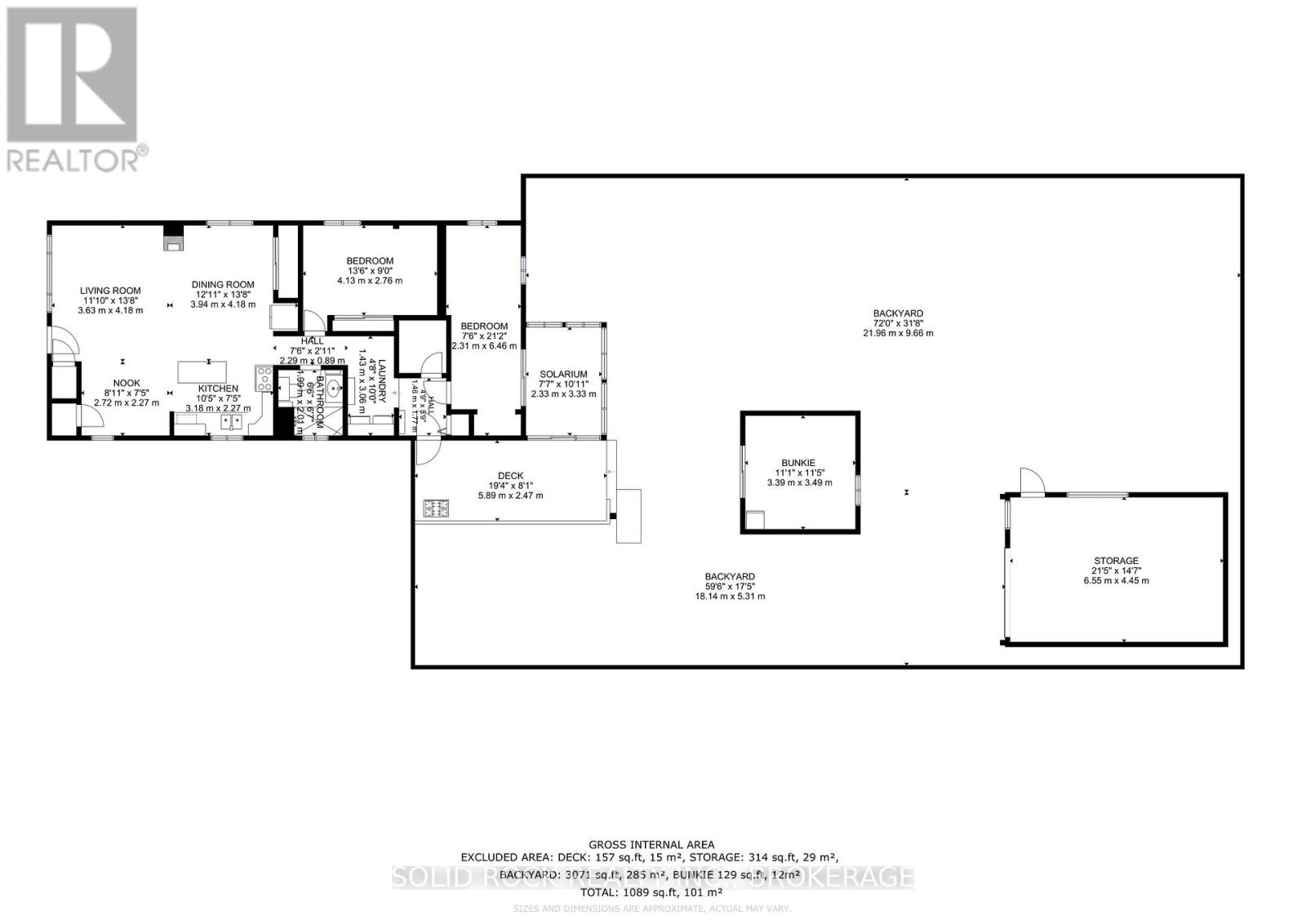
Discover incredible value in this charming, single-family detached home. Perfect for anyone seeking comfort, convenience, and a spacious outdoor retreat. Set on a large, fully fenced rear yard, this property offers privacy and room to truly enjoy the outdoors. Step inside to an inviting open-concept layout featuring a bright living room, dining area, and kitchen-all flowing seamlessly together for easy everyday living. With two comfortable bedrooms, a full bathroom, a dedicated laundry room, and a stunning rear sunroom, everything you need is conveniently located on one level. Just steps from the back door, a detached bunkie provides flexible extra space with R12 insulation and electricity-ideal for guests, a studio, or a quiet home office. An original barn/garage adds even more versatility, perfect for storage, a workshop, or sheltered parking. This home has been thoughtfully updated with a newer furnace (2023), natural gas stove for heating (2020), newer appliances (2020 & 2024), added insulation, upgraded electrical (2025), and a brand-new heat pump (2025). Move in with confidence and enjoy the perfect blend of country charm and city convenience.A must-see opportunity you won't want to miss! (41791726)

Location Description

Cross Streets: Montreal St. ** Directions: From 401: Take Montreal St to Maccauley. Turn right. Housei s on the left.

Open Houses

Dec 14
11:30-1 PM
Add to Calendar

Property Summary

Property Type
Single Family
Building Type
House
Storeys
1
Square Footage
700 - 1100 sqft
Community Name
23 - Rideau
Title
Freehold
Land Size
50 x 150 FT
Annual Property Taxes
$2,809
Parking Type
Detached Garage, Garage
Time on REALTOR.ca
2 days

Building

Bedrooms
Above Grade
2
Bathrooms
Total
1
Interior Features
Appliances Included
Dishwasher, Dryer, Water Heater, Stove, Washer, Window Coverings, Refrigerator
Basement Type
Crawl space (Unfinished)
Building Features
Features
Carpet Free
Style
Detached
Architecture Style
Bungalow
Building Amenities
Fireplace(s)
Heating & Cooling
Fireplace Type
Free Standing Metal
Heating Type
Forced air (Natural gas)
Utilities
Utility Sewer
Sanitary sewer
Water
Municipal water
Exterior Features
Exterior Finish
Vinyl siding
Parking
Parking Type
Detached Garage, Garage
Total Parking Spaces
2

Measurements

Square Footage
700 - 1100 sqft

Land

Lot Features
Frontage
50 ft
Land Depth
150 ft
Other Property Information
Zoning Description
UR6
Are you interested in touring this listing?
Request a showing

Similar Listings

JUDY MAY