We use cookies and other technologies for functionality, security, and to provide you with a personalized experience on our online services. By continuing to use our online services, you agree to our Privacy Policy and Terms of Use. For information on how to adjust your privacy settings, visit our Cookie Policy.
Dismiss
Home ON Greater Toronto Area Durham Region Ajax Midtown
27-31 HARWOOD AVENUE S
Directions Print
27-31 HARWOOD AVENUE S $3,000,000
$3,000,000
Hide
Favourite

27-31 HARWOOD AVENUE S
Ajax (Central), Ontario L1S2B8

MLS® Number: E12611988

Listing Description

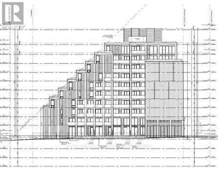
Being Sold by court appointed receiver Under Power Of Sale, "as-is, where-is" & Without Representation & Warranty. Vendor Financing Available. OPA/ZBA Approved. Final Stage Of Site Plan Approval. Mixed-Use Development Opportunity. 10 Storeys,131 Units & 123,229 GFA. Originally Designed As A Condo, This Site Would Excel As A Seniors Residence Or A Purpose-Built Apartment Complex, Benefiting From Reduced Development Charges. Located In An Established Residential Node, Just North Of Highway 401 & In Proximity To Go Station. Site Consists Of 2 Vacant 1-Storey Commercial Buildings & 1 Vacant Parcel Of Land That Can Be Readily Repositioned For Occupancy, Offering Near Term Cash Flow While Deferring Development/Construction. Municipal Address Includes 27, 29 & 31 Harwood Avenue S. (41785505)

Location Description

Cross Streets: Harwood Ave S / Highway 401. ** Directions: East side of Harwood Ave S, South of Mandrake Street.

Property Summary

Property Type
Vacant Land
Community Name
Central
Land Size
0.75 ac
Annual Property Taxes
$41,719.36
Time on REALTOR.ca
81 days

Building

Heating & Cooling
Cooling
None
Heating Type
No heat
Utilities
Water
Municipal water
Business
Business Type
Residential (Residential)
Neighbourhood Features
Amenities Nearby
Highway, Public Transit

Measurements

Square Footage
1 ac

Land

Lot Features
Frontage
150 ft
Land Depth
218 ft
Other Property Information
Zoning Description
Uptown Mixed Use (UC)
Are you interested in touring this listing?
Request a showing

Similar Listings

ADAM BRONSON