We use cookies and other technologies for functionality, security, and to provide you with a personalized experience on our online services. By continuing to use our online services, you agree to our Privacy Policy and Terms of Use. For information on how to adjust your privacy settings, visit our Cookie Policy.
Dismiss
Home AB Grande Prairie Division No. 19 Avondale
201, 10114 105 Avenue
Directions Print
201, 10114 105 Avenue $1,325/Monthly
$1,325/Monthly
Hide
Favourite

201, 10114 105 Avenue
Grande Prairie, Alberta T8V1H4

MLS® Number: A2272402
2
Bedrooms
1
Bathrooms
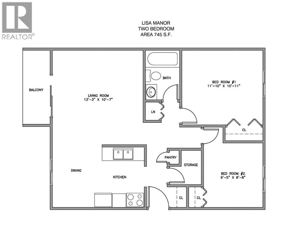
745
Square Feet

Listing Description

2 bed unit in Lisa Manor! Conveniently located 2 bed 1 bath apartment. Unit features entry closet, storage room/pantry, and newer vinyl plank floors. Private balcony, 2 good sized rooms and 4 piece bathroom all with privacy locks. The building features keyless fob entry, door buzzer, security cameras and security patrols.Onsite coin laundry.Rent includes water, heat. Tenant pays electricity. Above ground parking available for $10/mo.Cat friendly with $50/mo pet fee. Enjoy the perks of living in this central location. Close to Muskoseepi Park and walking distance to the public library. Close to four schools and public transportation. Renter will enjoy the convenience of a central location with restaurants and local shopping close by. Powered above ground parking stall available for $10/mo. (31404542)

Property Summary

Property Type
Single Family
Square Footage
745 sqft
Community Name
Avondale
Subdivision Name
Avondale
Land Size
Unknown
Age Of Building
Age is unknown
Time on REALTOR.ca
17 days

Building

Bedrooms
Above Grade
2
Bathrooms
Total
1
Partial
0
Interior Features
Appliances Included
Refrigerator, Stove, Oven, Hood Fan

Measurements

Square Footage
745 sqft
Total Finished Area
745 sqft

Rooms

MetricImperial
Main level
Bedroom
Bedroom
4pc Bathroom
Data provided by: Pillar 9™
Are you interested in touring this listing?
Request a showing

Similar Listings

Kris Waye