We use cookies and other technologies for functionality, security, and to provide you with a personalized experience on our online services. By continuing to use our online services, you agree to our Privacy Policy and Terms of Use. For information on how to adjust your privacy settings, visit our Cookie Policy.
Dismiss
Home ON Greater Oshawa Durham Region Whitby Port Whitby
1717 BROCK STREET S
Directions Print
1717 BROCK STREET S $5,499,000
Price Change on 12/01/2025
$5,499,000
-$1,000,000
$6,499,000
Hide
Favourite

1717 BROCK STREET S
Whitby (Port Whitby), Ontario L1N4M7

MLS® Number: E12550232

Listing Description

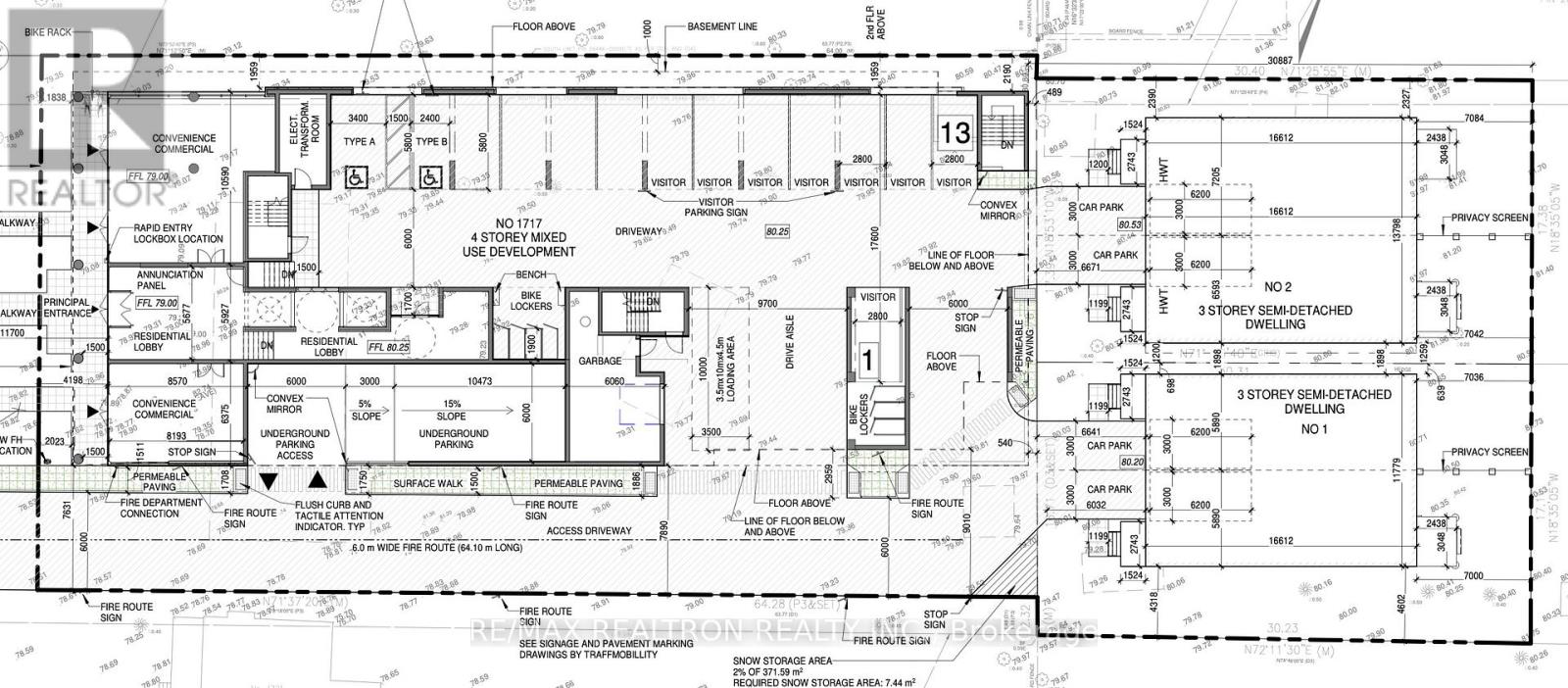
THIS SITE IS BEING OFFERED under POWER OF SALE. Exceptional residential development being a total of 55,166 square feet Buildable. The property is Zoning Approved for Residential Mixed-Use redevelopment on Brock St. S and is at 2nd stage submission for the Site Plan Application, less than 6 months to approval allowing purchaser to make changes as needed to the final proposal. This project has advanced architectural and planning design, reflecting the evolving standards and urban design goals of the Town of Whitby. The property's location, exposure, and approvals position it for an efficient transition to construction for an active builder/developer seeking an immediate project. This exceptional property boasts a Total Buildable Space of 55,166 sq. ft., offering immense development potential across two primary areas. The Mixed-Use Area accounts for 41,825 sq. ft., featuring a substantial 40,210 sq. ft. designated for residential development and 1,615 sq. ft. for commercial space. Additionally, there is a separate buildable area designated for Semi-Detached Units totaling 13,341 sq. ft., providing diverse options for investors and developers. . The proposed development features: 29 Condominium Units and 4 Semi-Detached Units. Parking: 52 spaces for the mixed-use building (including 3 accessible, 45 residential, and 7 commercial) and 8 spaces for the semi-detached units (2 per unit). The Port of Whitby area has emerged as a target for residential intensification due to its exceptional location in perspective to the waterfront and downtown Whitby, as well as public transit, major highways and amenities. There are a number of high-rise mixed-use developments that have been proposed, approved and sold within the immediate area. Property being sold "as is, where is." (41659468)

Location Description

Victoria Rd E & Brock St S

Property Summary

Property Type
Vacant Land
Community Name
Port Whitby
Land Size
107.28 x 309 FT
Annual Property Taxes
$7,074
Time on REALTOR.ca
24 days

Building

Utilities
Water
Municipal water
Business
Business Type
Residential (Residential)

Measurements

Square Footage
55166 sqft

Land

Lot Features
Frontage
107 ft ,3 in
Land Depth
309 ft
Other Property Information
Zoning Description
R4-C
Are you interested in touring this listing?
Request a showing

Similar Listings

BILL G. DEVAKOS