We use cookies and other technologies for functionality, security, and to provide you with a personalized experience on our online services. By continuing to use our online services, you agree to our Privacy Policy and Terms of Use. For information on how to adjust your privacy settings, visit our Cookie Policy.
Dismiss
Home ON Greater Hamilton Hamilton Stoney Creek Guernsey
176 MILLEN ROAD
Directions Print
176 MILLEN ROAD $575,000
$575,000
Hide
Favourite

176 MILLEN ROAD
Hamilton (Stoney Creek), Ontario L8E2G5

MLS® Number: X12541500
0
Bathrooms
-
Square Feet

Listing Description

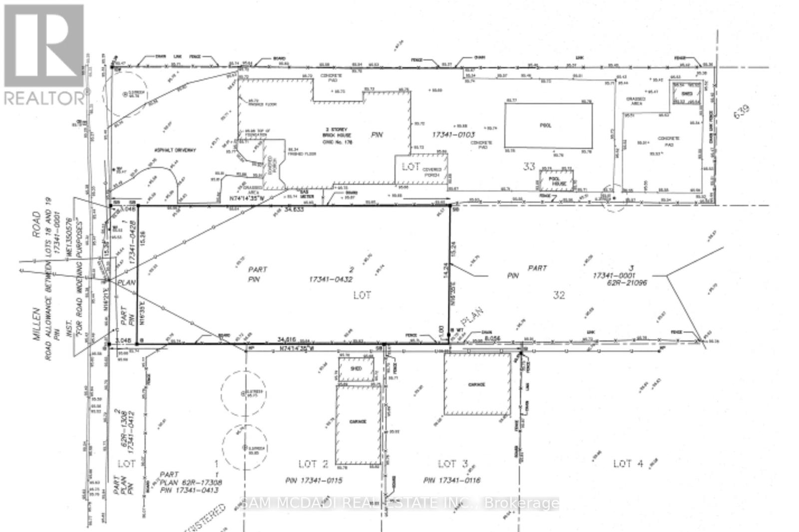
Great Building Lot & Opportunity in prime Location in Lower Stoney Creek Community! This Premium 50x113 Ft Lot has Been Severed, Serviced & Ready for Your Design & Vision!! Shovel Ready Just Need to Apply for Your Building Permits! Zoning Allows for Legal Multi Unit Duplex, Single Custom-Built Home, Multi Family or Separate ADU Possibility Providing Various Options! Custom Build your New Home with Ability for In-law or Guest Suite for Multi Family Living, Rental Income Generating Layout or Build a Multi Residential Unit Rental Investment with Additional Dwelling Unit for Extra Residential Unit. Features Private Rear Yard with No Rear Neighbouring Homes, a Central Location, Fenced Side Yards, a Great Building Envelope for Various Design Options & Located in Sought After Community with Other Neighbouring Custom-Built Homes in the Area, Views of Niagara Escarpment, Walk to Parks, Great Schools, Various Shops & Services, Public Transportation, Local Farms, Wineries & Easily Access New Stoney Creek GO Station, QEW/407/403 & Major Highways, Major Shopping Centres/Malls, Hospitals, Quaint Downtown Stoney Creek, 20 Minutes to Downtown Burlington & Burlington GO, Quick Access to Niagara Region, Surrounding Hamilton Area & More. Lot is Ready! Survey & Servicing Plan Completed and Available for Buyer, All Municipal Services in Place. Create your Design, Apply for Permits, Pay Applicable Permit Fees & Start Building your Vision Today!! Great Investment, Location & Opportunity! (41641543)

Location Description

HWY 8 / MILLEN RD

Property Summary

Property Type
Vacant Land
Community Name
Stoney Creek
Land Size
50.07 x 113.63 FT
Annual Property Taxes
$1
Time on REALTOR.ca
86 days

Building

Bathrooms
Total
0
Utilities
Utility Type
Cable (Installed), Electricity (Installed), Sewer (Installed)
Utility Sewer
Sanitary sewer
Water
Municipal water
Neighbourhood Features
Community Features
Community Centre
Amenities Nearby
Park, Public Transit, Schools

Land

Lot Features
Fencing
Fenced yard
Frontage
50 ft
Land Depth
113 ft ,7 in
Other Property Information
Zoning Description
R2
Are you interested in touring this listing?
Request a showing

Similar Listings

SAM ALLAN MCDADI