We use cookies and other technologies for functionality, security, and to provide you with a personalized experience on our online services. By continuing to use our online services, you agree to our Privacy Policy and Terms of Use. For information on how to adjust your privacy settings, visit our Cookie Policy.
Dismiss
Home ON Greater Toronto Area Peel Region Mississauga East Credit
LOT 3-R - 1710 CARRINGTON ROAD
Directions Print
LOT 3-R - 1710 CARRINGTON ROAD $599,980
$599,980
Hide
Favourite

LOT 3-R - 1710 CARRINGTON ROAD
Mississauga (East Credit), Ontario L5M2K2

MLS® Number: W12524742
0
Bathrooms
-
Square Feet

Listing Description

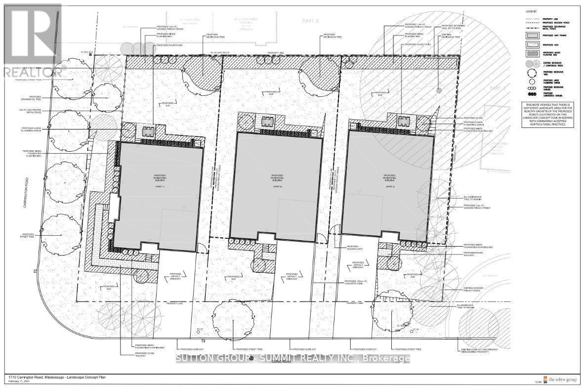
Attention All Builders and investors, this Executive 30-by-125-foot lot (Severed Lot) is in the Prestigious Area Of East Credit. Build Your Dream Home. Short Walk To Streetsville, Restaurants, And Shops.One of six approved 30 ft semi lots as it meets the new Mississauga city bylaws. (41608229)

Location Description

CARRINGTON/DURIE

Property Summary

Property Type
Vacant Land
Community Name
East Credit
Land Size
30 x 125 FT
Annual Property Taxes
$0
Time on REALTOR.ca
71 days

Building

Bathrooms
Total
0
Building Features
Features
Flat site
Utilities
Utility Type
Cable (Available), Electricity (Available), Sewer (Available)

Land

Lot Features
Frontage
30 ft
Land Depth
125 ft
Other Property Information
Zoning Description
R1
Are you interested in touring this listing?
Request a showing

Similar Listings

BILL MAKRIS