We use cookies and other technologies for functionality, security, and to provide you with a personalized experience on our online services. By continuing to use our online services, you agree to our Privacy Policy and Terms of Use. For information on how to adjust your privacy settings, visit our Cookie Policy.
Dismiss
Home ON Greater Toronto Area Toronto Etobicoke Glen Agar Princess-Rosethorn
18 BEAVERBROOK AVENUE
Directions Print
18 BEAVERBROOK AVENUE $3,199,000
$3,199,000
Hide
Favourite

18 BEAVERBROOK AVENUE
Toronto (Princess-Rosethorn), Ontario M9B2M9

MLS® Number: W12506168
5
Bedrooms
5
Bathrooms
2500 - 3000
Square Feet

Listing Description

Beautifully crafted custom home in the prestigious Princess-Rosethorn community. Offering 2,935 sq. ft. above grade with 4+1 bedrooms, 5 bathrooms, a 2-car garage, and parking for 6 in total. 1200 sqf stunning open concept finished basement. This modern residence features marble floors, engineered hardwood, a sun-filled open layout, chef's kitchen with Gas stove, built in appliances, and custom designs. Spa-inspired ensuite baths. Premium upgrades include a camera system, built-in speakers with 5 different zones, central vacuum, and sprinkler system, Alarm system. Ideally located near top-rated schools, parks, golf clubs, shopping, transit, and just minutes to Highways 401/427 and Pearson Airport. (41570234)

Location Description

Rathburn/ Kipling

Property Summary

Property Type
Single Family
Building Type
House
Storeys
2
Square Footage
2500 - 3000 sqft
Community Name
Princess-Rosethorn
Title
Freehold
Land Size
50 x 120 FT
Age Of Building
New building
Annual Property Taxes
$3,599
Parking Type
Attached Garage, Garage
Time on REALTOR.ca
37 days

Building

Bedrooms
Above Grade
5
Bathrooms
Total
5
Partial
1
Interior Features
Appliances Included
Central Vacuum, Garage door opener remote(s), Water Heater - Tankless, Oven - Built-In
Flooring
Marble, Hardwood, Tile, Vinyl
Basement Type
Finished
Building Features
Features
Carpet Free, Sump Pump
Foundation Type
Concrete
Style
Detached
Building Amenities
Fireplace(s)
Rental Equipment
None
Heating & Cooling
Cooling
Central air conditioning
Heating Type
Forced air (Natural gas)
Utilities
Utility Sewer
Sanitary sewer
Water
Municipal water
Exterior Features
Exterior Finish
Stucco
Parking
Parking Type
Attached Garage, Garage
Total Parking Spaces
6

Measurements

Square Footage
2500 - 3000 sqft

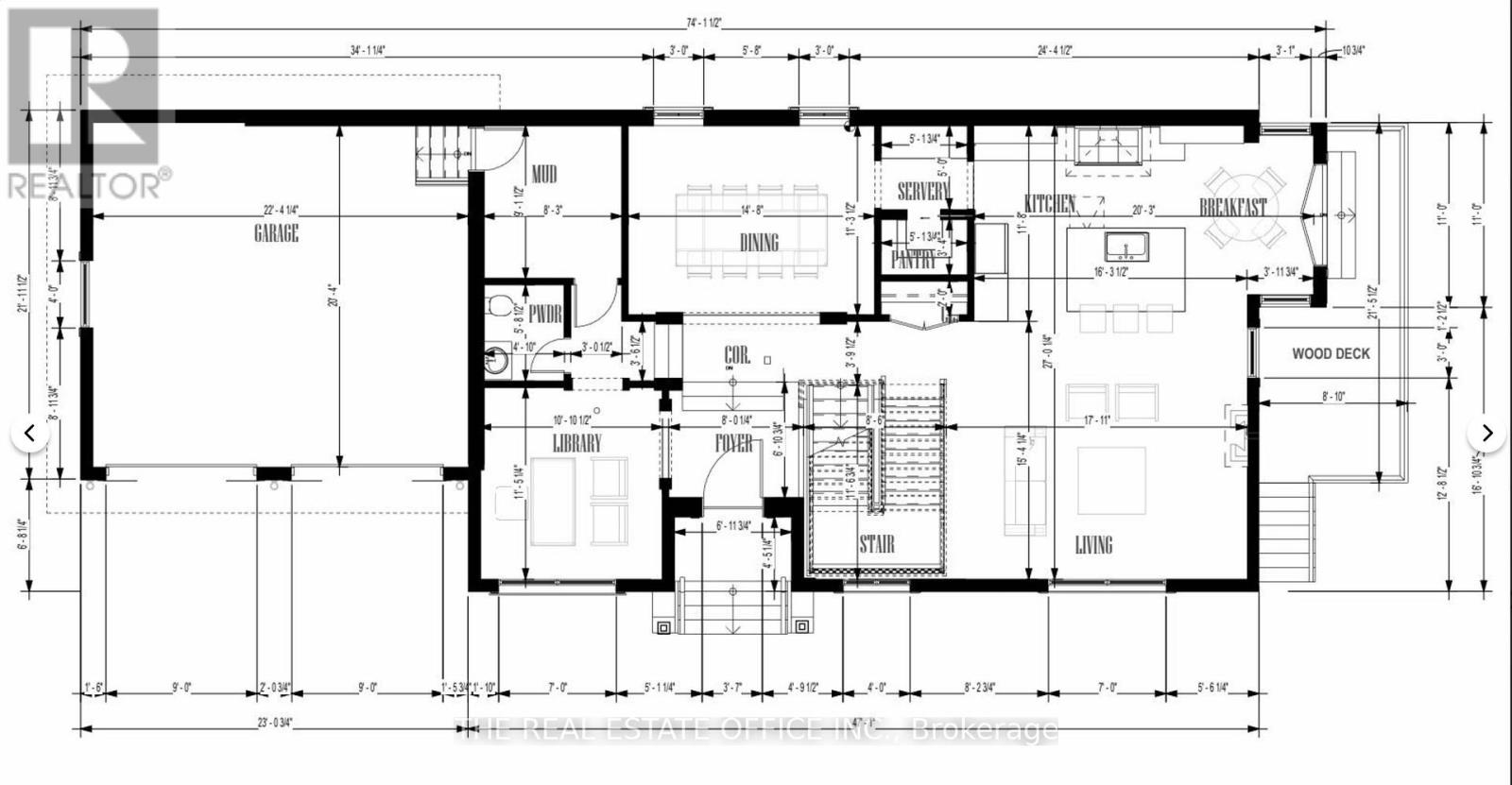
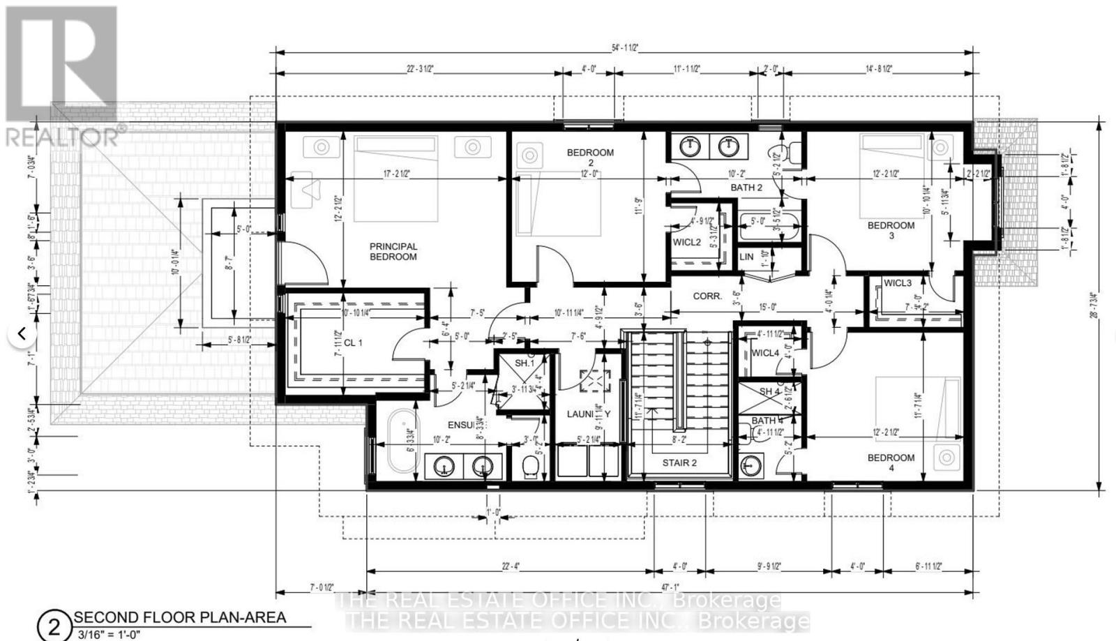
Rooms

MetricImperial
Main level
Foyer
Library
Mud room
Dining room
Pantry
Kitchen
Family room
Second level
Bedroom 3
Bathroom
Bedroom 3
Bathroom
Bedroom 4
Laundry room
Primary Bedroom
Bedroom 2
Basement
Bedroom 5
Bathroom

Land

Lot Features
Frontage
50 ft
Land Depth
120 ft
Other Property Information
Zoning Description
RD(f13.5;a510;d0.45)
Are you interested in touring this listing?
Request a showing

Similar Listings

MARY GHELICHKHANI