We use cookies and other technologies for functionality, security, and to provide you with a personalized experience on our online services. By continuing to use our online services, you agree to our Privacy Policy and Terms of Use. For information on how to adjust your privacy settings, visit our Cookie Policy.
Dismiss
Home ON Greater Toronto Area Peel Region Brampton Alloa Mount Pleasant
180 THORNBUSH BOULEVARD
Directions Print
180 THORNBUSH BOULEVARD $759,000
$759,000
Hide
Favourite

180 THORNBUSH BOULEVARD
Brampton (Northwest Brampton), Ontario L7A0G4

MLS® Number: W12487028
0
Bathrooms
-
Square Feet

Listing Description

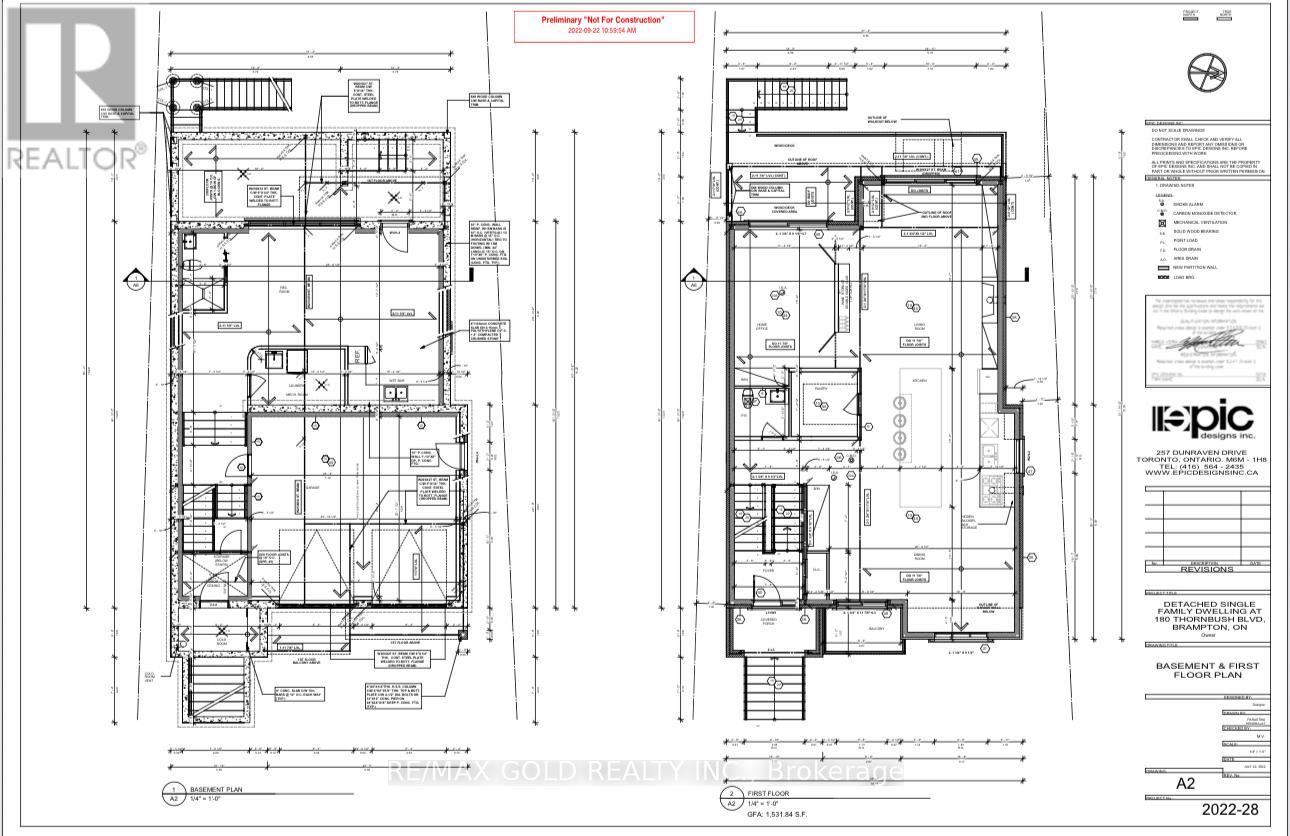
POWER OF SALE! Attention builders and developers! Don't miss this rare opportunity to build your dream luxury home on a fully serviced, premium lot in one of the areas most prestigious new neighbourhoods. Surrounded by custom multi-million-dollar homes, this property offers the perfect blend of elegance and tranquility. It comes with permit-ready architectural drawings for a stunning 4-bedroom, 4-bathroom open-concept home, and all city permits are already approved ready for immediate construction. Located close to major highways, top-rated schools, beautiful parks, and shopping, this lot offers both convenience and class. Whether you're building for personal use or as an investment, this is a golden opportunity to create a home that truly defines luxury living. (41529874)

Location Description

Mayfield Rd & Creditview Rd

Property Summary

Property Type
Vacant Land
Community Name
Northwest Brampton
Land Size
43.01 x 89.34 FT|under 1/2 acre
Annual Property Taxes
$4,550
Time on REALTOR.ca
122 days

Building

Bathrooms
Total
0
Utilities
Utility Type
Cable (Available), Electricity (Available), Sewer (Available)

Land

Lot Features
Frontage
43 ft
Land Depth
89 ft ,4 in
Are you interested in touring this listing?
Request a showing

Similar Listings

INDERJEET SINGH