We use cookies and other technologies for functionality, security, and to provide you with a personalized experience on our online services. By continuing to use our online services, you agree to our Privacy Policy and Terms of Use. For information on how to adjust your privacy settings, visit our Cookie Policy.
Dismiss
Home BC Metro Vancouver Greater Vancouver Maple Ridge Central Maple Ridge
23004 DEWDNEY TRUNK ROAD
Directions Print
23004 DEWDNEY TRUNK ROAD $2,250,000
$2,250,000
Hide
Favourite

23004 DEWDNEY TRUNK ROAD
Maple Ridge, British Columbia V2X3L1

MLS® Number: R3057434

Listing Description

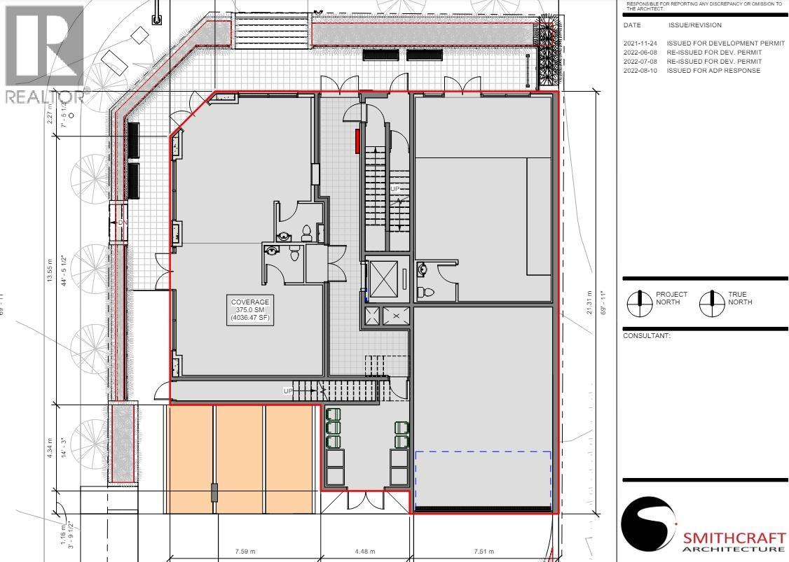
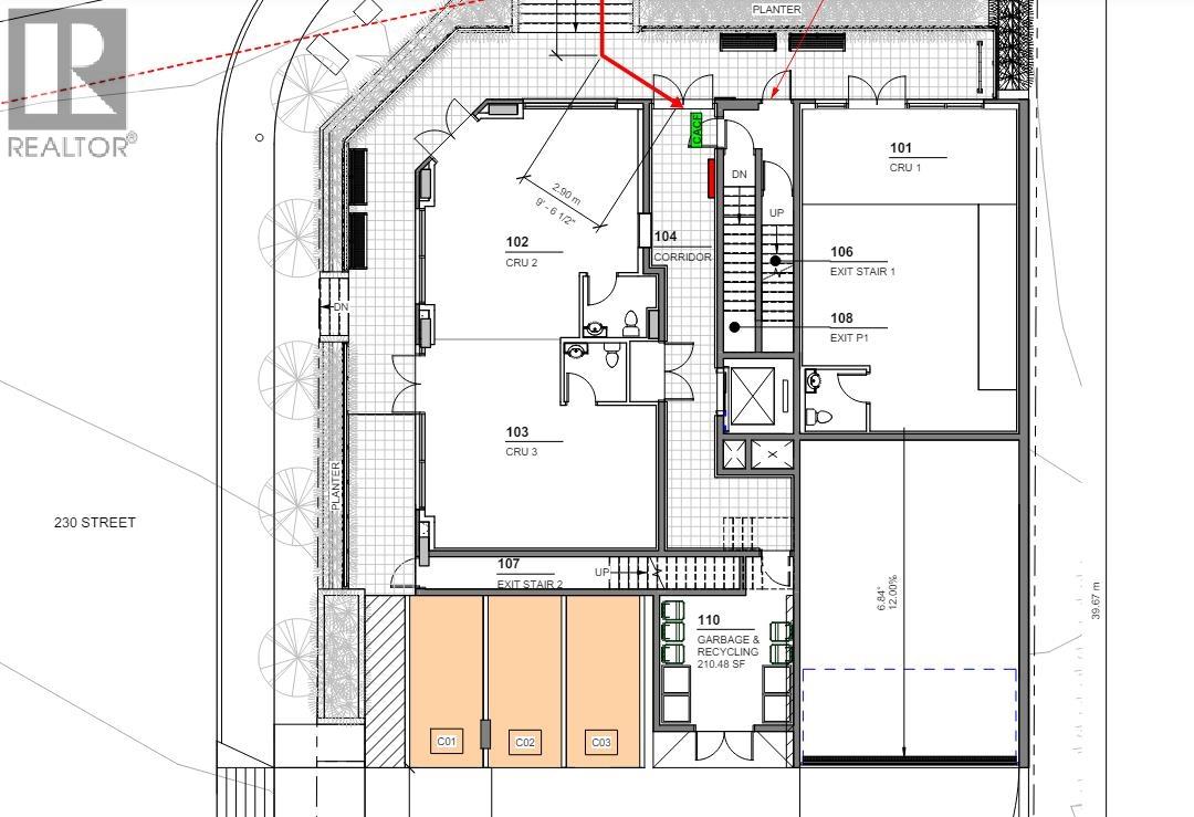
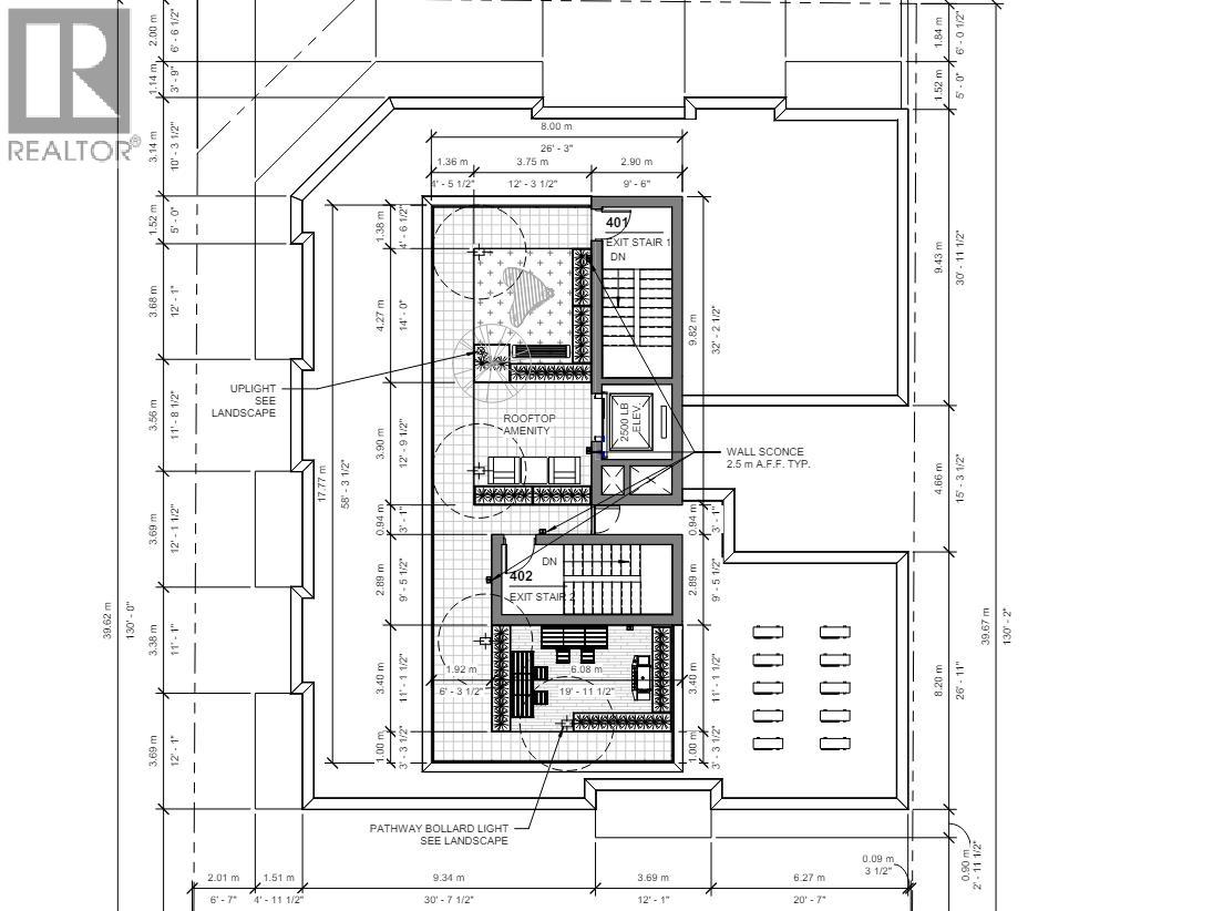
WHAT A LOCATION! 13 unit new building South East corner of Dewdney Trunk Road & 230th Street in Maple Ridge. 2 road frontages and the property slopes gently to the north. Looking at a commercial zone. Across the street from Tim Horton's and Maple Ridge Eye Care. The plans are with the City of Maple Ridge for building permit. The current plan is 3 commercial units on the main, 10 residential units on the 2nd and 3rd floors with 4 x 1 bedroom, 4 x 2 bedroom and 2 x 3 bedroom with 5 designated rental and 5 designated market housing. (32035411)

Property Summary

Property Type
Vacant Land
Title
Freehold
Land Size
9615 sqft
Annual Property Taxes
$11,637.33
Time on REALTOR.ca
141 days

Land

Lot Features
View
View
Data provided by: Greater Vancouver REALTORS®
Are you interested in touring this listing?
Request a showing

Similar Listings

Ron Antalek