We use cookies and other technologies for functionality, security, and to provide you with a personalized experience on our online services. By continuing to use our online services, you agree to our Privacy Policy and Terms of Use. For information on how to adjust your privacy settings, visit our Cookie Policy.
Dismiss
Home NS Greater Kentville Kings County Kings Subdivision C
Lot 51 Mallard Avenue
Directions Print
Lot 51 Mallard Avenue $548,800
$548,800
Hide
Favourite

Lot 51 Mallard Avenue
Canaan, Nova Scotia B4N0A8

MLS® Number: 202524101
3
Bedrooms
2
Bathrooms
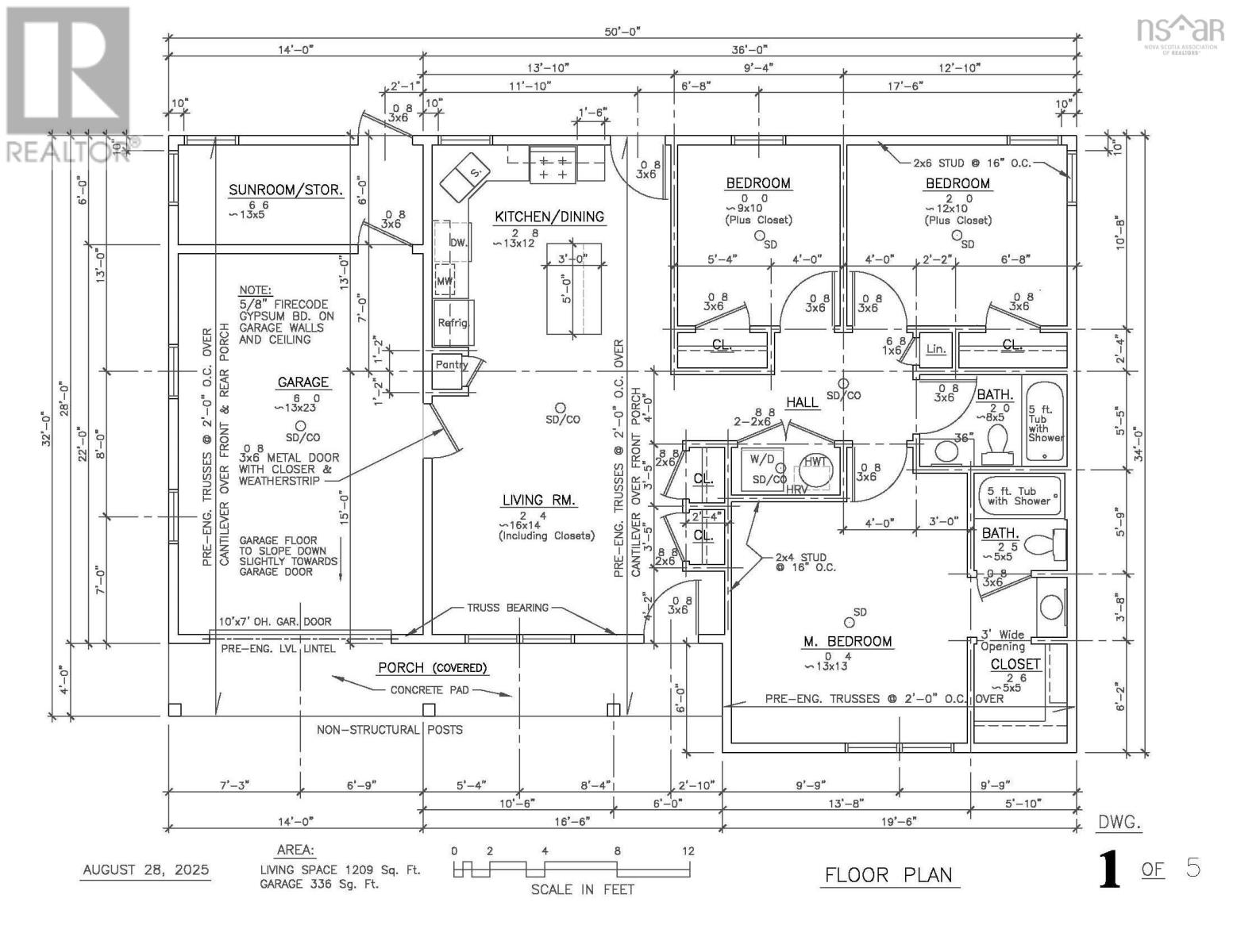
1209
Square Feet

Listing Description

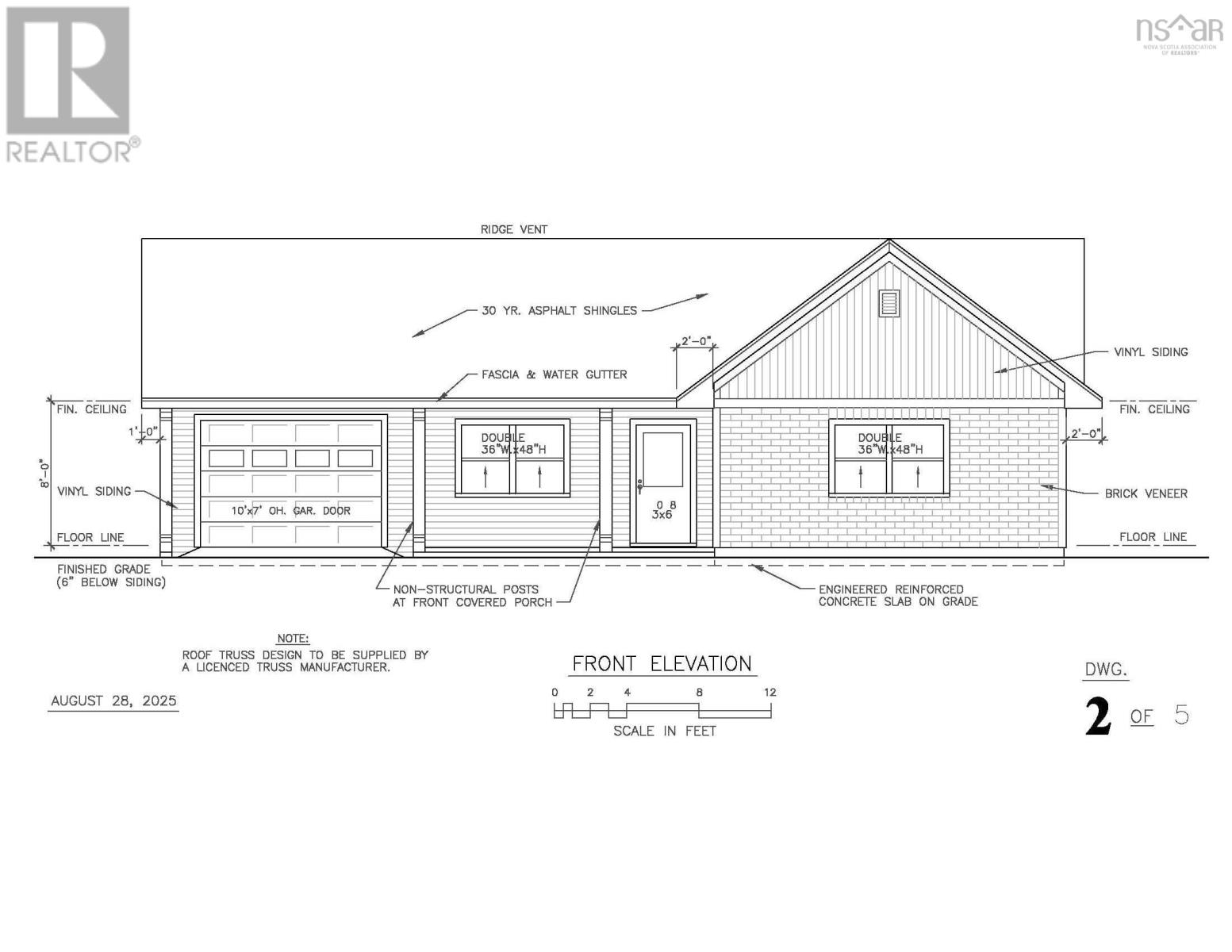
Welcome to this thoughtfully designed, energy-efficient new build in the desirable Canaan Heights neighbourhood. Featuring 3 bedrooms, 2 full baths, and a single attached garage, this home offers modern comfort in a convenient location. Inside, enjoy year-round efficiency with electric baseboard heating, a ductless Mitsubishi heat pump, and Energy Star rated appliances. Waterproof vinyl plank flooring runs throughout, and the property will be fully landscaped and paved upon completion - ready for you to move in and enjoy. Canaan Heights is an established subdivision in the heart of the Annapolis Valley, known for its stunning views of Cape Blomidon. Families and retirees alike will appreciate the community park, playground, walking trails, basketball court, and picnic areas - prefect for enjoying the outdoors. With quick highway access and just minutes to shopping, recreation, and essential services, this home provides the ideal balance of tranquility and convenience. (231425703)

Location Description

Hwy 101 take Exit 12, south on New Canaan Road, left into Canaan Heights subdivision

Property Summary

Property Type
Single Family
Building Type
House
Storeys
1
Square Footage
1209 sqft
Community Name
Canaan
Title
Freehold
Land Size
1.141 ac
Parking Type
Garage, Attached Garage, Concrete
Time on REALTOR.ca
87 days

Building

Bedrooms
Above Grade
3
Bathrooms
Total
2
Partial
0
Interior Features
Appliances Included
Dishwasher, Dryer, Washer, Microwave, Refrigerator
Flooring
Vinyl Plank
Basement Type
None
Building Features
Foundation Type
Concrete Slab
Style
Detached
Heating & Cooling
Cooling
Heat Pump
Utilities
Utility Sewer
Municipal sewage system
Water
Municipal water
Exterior Features
Exterior Finish
Vinyl
Neighbourhood Features
Community Features
School Bus
Amenities Nearby
Playground, Shopping
Parking
Parking Type
Garage, Attached Garage, Concrete
Accessibility Features
Entry and Access
32in min Entry Doorways, Entry less than 3 steps
Interior Navigation
32in min Doorways

Measurements

Square Footage
1209 sqft
Source: Owner
Total Finished Area
1209 sqft

Rooms

MetricImperial
Main level
Living room
Kitchen
Storage
Bedroom
Bedroom
Bath (# pieces 1-6)
Primary Bedroom
Bath (# pieces 1-6)

Land

Lot Features
Landscape Features
Landscaped
Are you interested in touring this listing?
Request a showing

Similar Listings

Margaret MacKay