We use cookies and other technologies for functionality, security, and to provide you with a personalized experience on our online services. By continuing to use our online services, you agree to our Privacy Policy and Terms of Use. For information on how to adjust your privacy settings, visit our Cookie Policy.
Dismiss
Home NS Annapolis County Annapolis Subdivision C
Lot Ben Phinney Road
Directions Print
Lot Ben Phinney Road $68,500
$68,500
Hide
Favourite

Lot Ben Phinney Road
Forest Glade, Nova Scotia B0S1N0

MLS® Number: 202520425

Listing Description

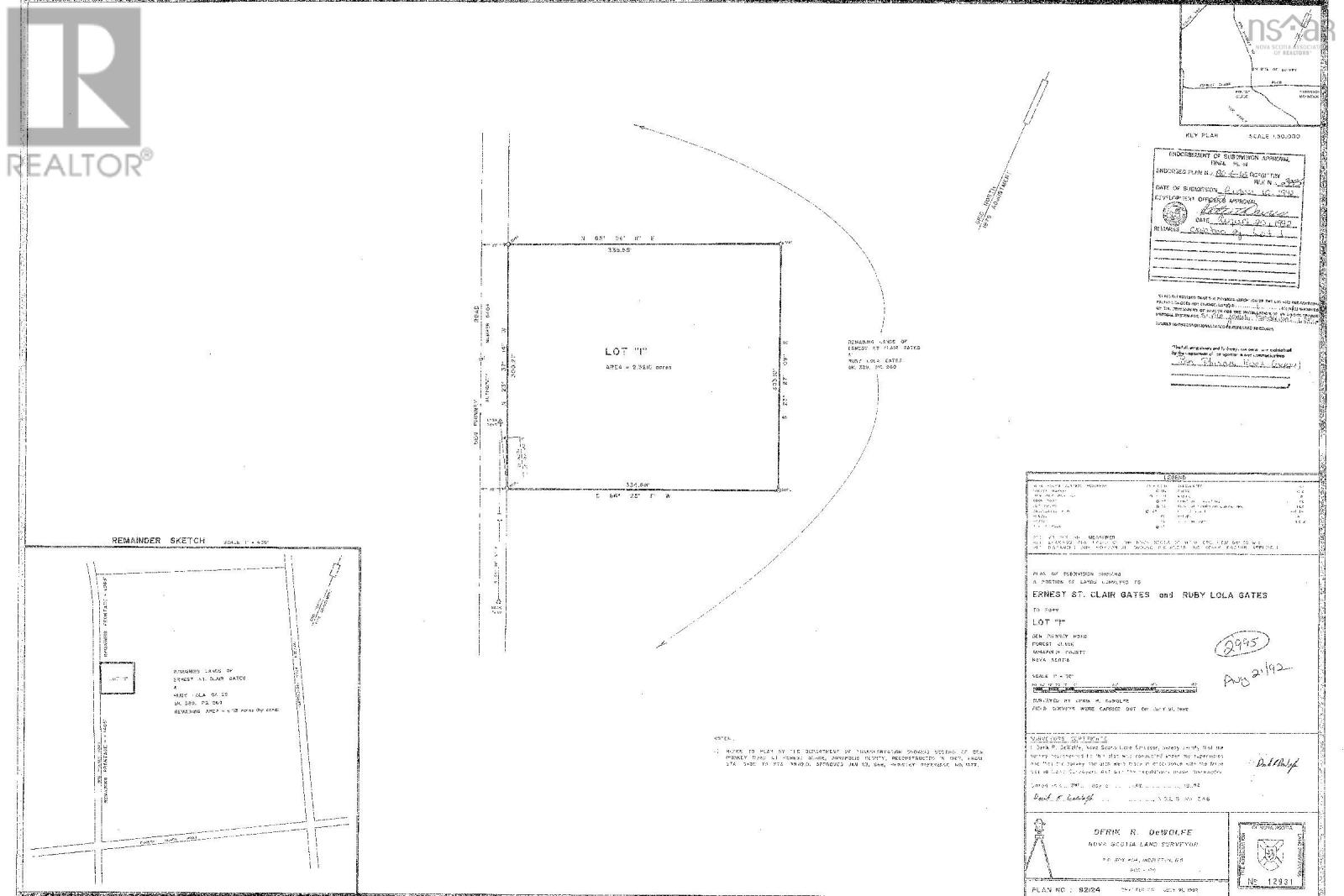
This 2.32 acre building lot offers a peaceful setting just minutes from the amenities of Kingston. Located on a quiet low traffic paved back road, it features a driveway and large extra thick gravel pad already in place. The property is surveyed with boundaries clearly marked and offers a partial ocean view along with a pastoral landscape of fields, hills and forest. Mature trees provide natural beauty and shade, while the land is level and dry for easy building. Power is not currently available at the roadside but is nearby. An excellent spot for a year round home, private campsite or off grid retreat. (231246479)

Location Description

From Highway 1, Wilmot: North on Stronach Mtn Rd, continue North on Ben Phinney Rd, just past Forest Glade Rd, to sign,.

Property Summary

Property Type
Vacant Land
Community Name
Forest Glade
Title
Freehold
Land Size
2.32 ac
Parking Type
Gravel
Time on REALTOR.ca
157 days

Price and Sale History

Date Status Price
Feb 26, 2019 Sale Closed $7,000

Building

Building Features
Features
Level lot, Treed, Partially cleared
Utilities
Utility Sewer
No sewage system
Water
None
Parking
Parking Type
Gravel

Land

Lot Features
View
Ocean view, View of water
Are you interested in touring this listing?
Request a showing

Similar Listings

Colin Crowell