We use cookies and other technologies for functionality, security, and to provide you with a personalized experience on our online services. By continuing to use our online services, you agree to our Privacy Policy and Terms of Use. For information on how to adjust your privacy settings, visit our Cookie Policy.
Dismiss
Home NS Colchester County Colchester Subdivision A
396 Station Road
Directions Print
396 Station Road $2,495,000
$2,495,000
Hide
Favourite

396 Station Road
Great Village, Nova Scotia B0M1L0

MLS® Number: 202519382

Listing Description

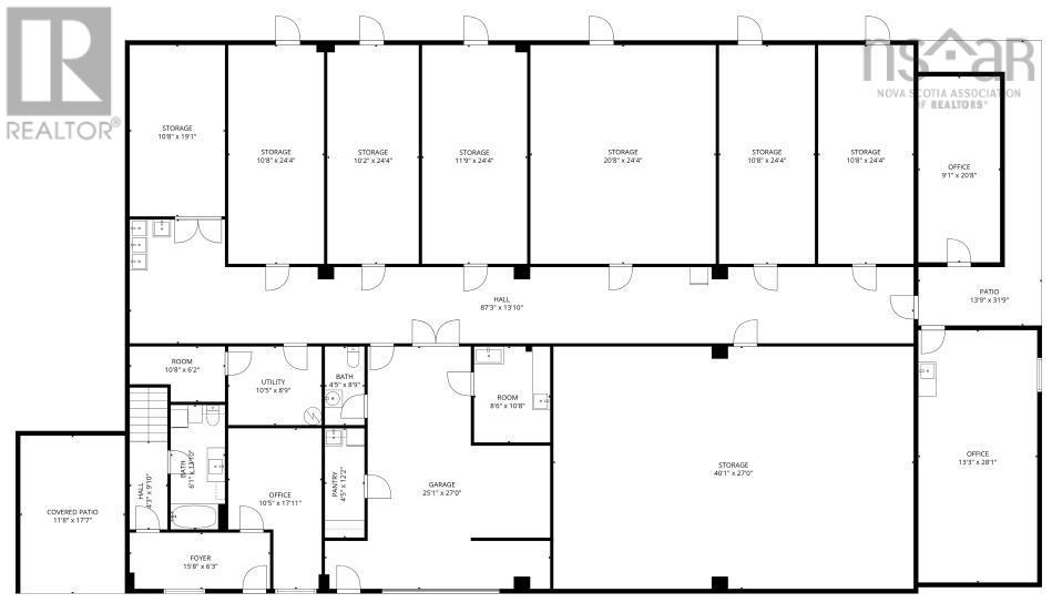
15,014 SF (810 SF 2nd floor) in 3 Pre-Eng. Steel buildings built between 2016-2021, situated on 1.99 Acres of Land, 1.2 KM from the Trans Canada HWY 104 via Exit 10 just past Debert/Truro. BLDG 1: 7,110 SF, BLDG 2: 1,681 SF BLDG 3: 6,223 SF. 12-22.5' Clear ceilings, Four large Grade Loading doors (14'x14', 12'x12' Two 14'x12'). Food grade washable freezer panel interior walls. 120/240 Volt 800 Amp Single Phase Power, 60 KW Solar Panels Generate +- $12,000/ year in electricity, 2 X Generac Propane Generator totaling 22 KW. 2nd floor 810 SF 1 bedroom, kitchen, Laundry, deck & hot tub, which works well for an owner occupier, or staff needing accommodations. (231199295)

Location Description

If coming from Truro direction , take Highway 104, take Exit 11 Turn Left onto Station Road, Stay Left on Station Road # 396. If coming from Cobequid toll Pass, Take Exit 10 Turn right onto Station Road, Stay Left on Station Road # 396.

Property Summary

Property Type
Industrial
Community Name
Great Village
Title
Freehold
Land Size
1.9877 ac
Built in
2016
Time on REALTOR.ca
138 days

Price and Sale History

Date Status Price
Aug 30, 2016 Sale Closed $85,000

Building

Interior Features
Flooring
Concrete
Utilities
Water
Drilled Well
Business
Business Type
Other (Other)

Measurements

Total Finished Area
15014 sqft
Are you interested in touring this listing?
Request a showing

902-293-4524
902-489-7187
Philip Bolhuis