We use cookies and other technologies for functionality, security, and to provide you with a personalized experience on our online services. By continuing to use our online services, you agree to our Privacy Policy and Terms of Use. For information on how to adjust your privacy settings, visit our Cookie Policy.
Dismiss
Home NS Annapolis County Annapolis Royal
24 Chapel Street
Directions Print
24 Chapel Street $549,900
Price Change on 12/02/2025
$549,900
-$25,100
$575,000
Hide
Favourite

24 Chapel Street
Annapolis Royal, Nova Scotia B0S1A0

MLS® Number: 202515032
3
Bedrooms
2
Bathrooms
1700
Square Feet

Listing Description

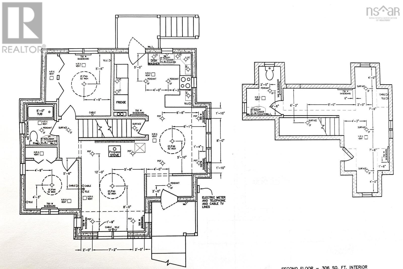
This beautifully crafted custom home, has been thoughtfully designed to complement the historic charm of Annapolis Royal. Constructed in 2011 with ICF construction, (Insulated Concrete Forms), this energy-efficient home boasts high-quality materials and a comfortable, traditional layout. The custom kitchen and spacious dining area are separated by a generous peninsula, perfect for both family gatherings and intimate dinners. A wide doorway connects the living and dining areas, providing an open flow while clearly defining each space. This level also includes two bedrooms and a full bathroom. Upstairs is a versatile loft-like space that can serve as a bedroom suite, home office, or hobby area. This level also features a two-piece bath and a large attic with development potential. The expansive, mostly finished basement offers new flooring and paint, making it an ideal space for a home gym, theatre, or rec room. Additionally, there's a practical area with a workbench and a spacious laundry room equipped with a utility sink and a walk-out to the backyard. For enhanced water quality, the house includes a whole-home water filtration system plus a reverse osmosis unit under the kitchen sink. Heating and cooling are efficiently managed by a ceiling-mounted ductless heat pump, supplemented by baseboard heaters and a new propane stove in the living room. The back door opens to a charming enclosed porch overlooking the fenced backyard, an ideal feature for dog owners and families with young children. The property is beautifully landscaped with mature flower gardens, trees, and flowering shrubs, creating a private oasis. Located on a quiet side street, just steps from the picturesque Annapolis River, this home offers easy access to public trails for walking or biking. All the amenities and attractions of this popular small town are also within strolling distance. This immaculate home is one of the rare newer builds available in the area and is ready for a quick closing. (231003850)

Location Description

Drive through Annapolis Royal to the end of Lower St George Street, which curves right and changes to Chapel St. Second house on left.

Property Summary

Property Type
Single Family
Building Type
House
Storeys
2
Square Footage
1700 sqft
Community Name
Annapolis Royal
Title
Freehold
Land Size
0.37 ac
Built in
2011
Parking Type
Gravel
Time on REALTOR.ca
178 days

Price and Sale History

Date Status Price
Jul 22, 2022 Sale Closed $520,000

Building

Bedrooms
Above Grade
3
Bathrooms
Total
2
Partial
1
Interior Features
Appliances Included
Stove, Dishwasher, Dryer, Washer, Freezer - Stand Up, Microwave, Refrigerator, Gas stove(s)
Flooring
Ceramic Tile, Hardwood
Basement Type
Full (Partially finished)
Building Features
Style
Detached
Architecture Style
2 Level
Rental Equipment
Propane Tank
Heating & Cooling
Cooling
Heat Pump
Utilities
Utility Sewer
Municipal sewage system
Water
Municipal water
Exterior Features
Exterior Finish
Wood siding
Neighbourhood Features
Community Features
Recreational Facilities, School Bus
Amenities Nearby
Golf Course, Playground, Public Transit, Shopping, Place of Worship
Parking
Parking Type
Gravel
Accessibility Features
Entry and Access
32in min Entry Doorways
Kitchen and Appliances
5ft min Kitchen Turning Radius

Measurements

Square Footage
1700 sqft
Source: Listing Brokerage
Total Finished Area
1700 sqft

Rooms

MetricImperial
Main level
Foyer
Dining nook
Kitchen
Living room
Bath (# pieces 1-6)
Bedroom
Bedroom
Other
Second level
Bedroom
Bath (# pieces 1-6)
Other
Basement
Recreational, Games room
Recreational, Games room
Workshop
Laundry / Bath
Storage
Storage

Land

Lot Features
Landscape Features
Landscaped

Tax Assessment

Tax year Assessed value Tax assessed value
2025 $437,500 $315,500
2024 $431,100 $310,900
2023 $301,300 $301,300
2022 $248,700 $246,700
2021 $236,100 $234,100
Contains information licensed under the Open Data & Information Government Licence – PVSC & Participating Municipalities.
Are you interested in touring this listing?
Request a showing

902-526-2462
902-532-2010
REALTOR® Website

Similar Listings

Paula Leslie