We use cookies and other technologies for functionality, security, and to provide you with a personalized experience on our online services. By continuing to use our online services, you agree to our Privacy Policy and Terms of Use. For information on how to adjust your privacy settings, visit our Cookie Policy.
Dismiss
Home NS Greater Truro Colchester County Colchester Subdivision C Greenfield
22 Joy Drive
Directions Print
22 Joy Drive $399,900
$399,900
Hide
Favourite

22 Joy Drive
Greenfield, Nova Scotia B6L3S9

MLS® Number: 202504223
2
Bedrooms
1
Bathrooms
1049
Square Feet

Listing Description

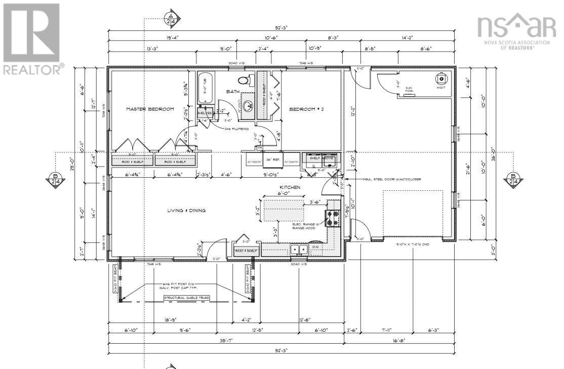
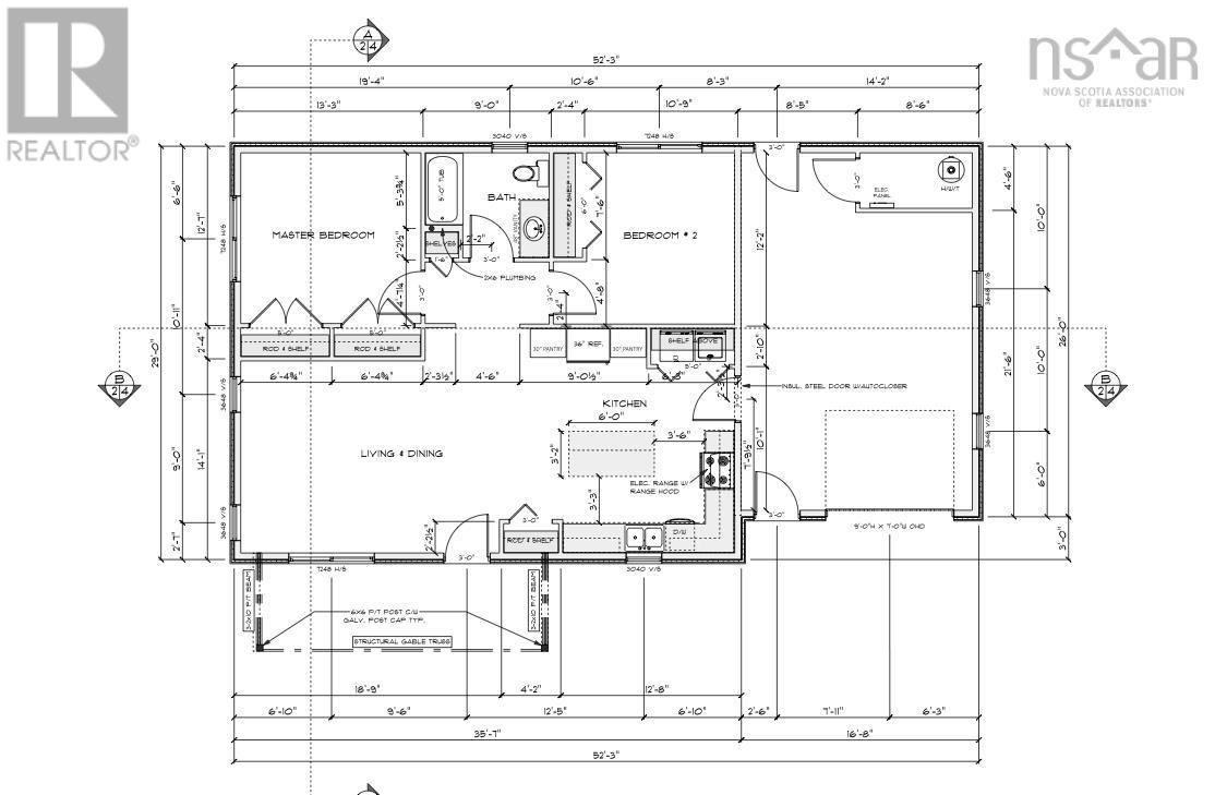
Looking for a new home that has 2 bedrooms on a heated in-floor slab with attached garage in Colchester? Look no further than this new home located on Joy Dr, Greenfield. This 1.3 acre property will be impressive. This new construction on slab will be mobility friendly with 36" door openings and lowered controls throughout. The kitchen features stainless steel appliances, plenty of cabinetry (soft close), two pantries and a gorgeous quartz countertop island peninsula with sink and breakfast bar. Perfect for a small family this home has 2 large bedrooms and a four piece bathroom that includes quartz countertops and ceramic floor. The main floor bedrooms, living room and kitchen has laminate flooring throughout. The heating systems are in-floor heat, and ductless heat pump that offers A/C in the summer and heating in the winter. Energy efficiency is key with this home so your energy bills should be minimal. There is additional room for storage in the single attached garage. Light is LED throughout the home with pot lights in the kitchen. In the utility room located in the garage you'll find a 200 amp electrical breaker panel with pressure tank, electric hot water heater and HRV unit for air exchange in the home. The home has vinyl siding, asphalt roof and vinyl windows. On the exterior of the home you will have a new single gravel driveway, seeded lot (weather dependent) and a covered porch area on the front of the home with pot lights. Don't miss out on this new build with 8 year LUX home warranty in Greenfield for summer of 2026 possession. The purchase price includes HST. All HST rebates back to the builder. (230491978)

Location Description

Take Queen Street East Truro, to Salmon River Road East, turns to Greenfield Rd, turn left onto Greg Rd, turn right onto Joy Dr.

Property Summary

Property Type
Single Family
Building Type
House
Storeys
1
Square Footage
1049 sqft
Community Name
Greenfield
Title
Freehold
Land Size
1.3096 ac
Parking Type
Garage, Attached Garage, Gravel
Time on REALTOR.ca
358 days

Building

Bedrooms
Above Grade
2
Bathrooms
Total
1
Partial
0
Interior Features
Appliances Included
Range - Electric, Dishwasher, Microwave Range Hood Combo, Refrigerator
Flooring
Ceramic Tile, Laminate, Tile
Basement Type
None
Building Features
Features
Treed, Wheelchair access
Foundation Type
Concrete Slab
Style
Detached
Heating & Cooling
Cooling
Heat Pump
Utilities
Utility Sewer
Septic System
Water
Drilled Well
Exterior Features
Exterior Finish
Vinyl
Neighbourhood Features
Community Features
School Bus
Amenities Nearby
Place of Worship
Parking
Parking Type
Garage, Attached Garage, Gravel
Accessibility Features
Entry and Access
32in min Entry Doorways, Entry less than 3 steps
Kitchen and Appliances
5ft min Kitchen Turning Radius
Interior Navigation
32in min Doorways

Measurements

Square Footage
1049 sqft
Source: Listing Brokerage
Total Finished Area
1049 sqft

Rooms

MetricImperial
Main level
Living room
Kitchen
Primary Bedroom
Bedroom
Bath (# pieces 1-6)

Land

Lot Features
Landscape Features
Partially landscaped
Are you interested in touring this listing?
Request a showing

Similar Listings

Matthew Ward