We use cookies and other technologies for functionality, security, and to provide you with a personalized experience on our online services. By continuing to use our online services, you agree to our Privacy Policy and Terms of Use. For information on how to adjust your privacy settings, visit our Cookie Policy.
Dismiss
Home ON Greater Hamilton Hamilton Old Hamilton Central
206 KING Street W Unit# 1007
Directions Print
206 KING Street W Unit# 1007 $1,950/Monthly
5 hours ago
$1,950/Monthly
Hide
Favourite

206 KING Street W Unit# 1007
Hamilton, Ontario L8P1A5

MLS® Number: 40808316
1
Bedrooms
1
Bathrooms
639
Square Feet

Listing Description

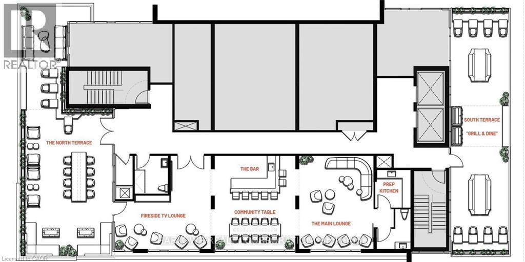
BRAND NEW experience urban living at Radio Arts! This 1 Bed, 1 bath unit with North East exposure, with one balcony, and one Parking included. Enjoy amenities like Co-Work & Wi-Fi Lounge, Penthouse Social Lounge with fireplace & rooftop terraces with BBQ area. Smart home features include smart locks & thermostats. Located near future LRT, transit, shops, restaurants & Highway 403. Perfect for those seeking a modern, connected lifestyle in downtown Hamilton's vibrant neighbourhood. (70216781)

Location Description

King Street West/Caroline Street

Property Summary

Property Type
Single Family
Building Type
Apartment
Storeys
1
Square Footage
639 sqft
Subdivision Name
104 - Central South
Title
Condominium
Land Size
Unknown
Parking Type
Underground, None
Time on REALTOR.ca
5 hours

Building

Bedrooms
Above Grade
1
Bathrooms
Total
1
Interior Features
Basement Type
None
Building Features
Features
Balcony
Style
Attached
Building Amenities
Exercise Centre, Party Room
Total Units
0
Heating & Cooling
Cooling
Central air conditioning
Heating Type
(Natural gas)
Utilities
Water
None
Exterior Features
Exterior Finish
Brick
Neighbourhood Features
Amenities Nearby
Hospital, Public Transit
Maintenance or Condo Information
Maintenance Fees Include
Insurance
Parking
Parking Type
Underground, None
Total Parking Spaces
1

Measurements

Square Footage
639 sqft
Above Grade Finished
639 sqft
Source: Builder

Rooms

MetricImperial
Main level
4pc Bathroom
Primary Bedroom
Kitchen
Dining room
Living room

Land

Other Property Information
Zoning Description
D2
Are you interested in touring this listing?
Request a showing

647-632-1820
647-632-1820

Similar Listings

ASIF CHASMAWALA