We use cookies and other technologies for functionality, security, and to provide you with a personalized experience on our online services. By continuing to use our online services, you agree to our Privacy Policy and Terms of Use. For information on how to adjust your privacy settings, visit our Cookie Policy.
Dismiss
Home AB Greater Calgary Division No. 6 Calgary Martindale
150 Martinbrook Road NE
Directions Print
150 Martinbrook Road NE $475,500
18 hours ago
$475,500
Hide
Favourite

150 Martinbrook Road NE
Calgary, Alberta T3J3E3

MLS® Number: A2285710
3
Bedrooms
2
Bathrooms
1084
Square Feet

Listing Description

Welcome to your “I am Home” feeling. A wonderful single detached home to reside or as an investment property. The floor plan has a wide living and kitchen space designed for easy accessibilities. The bathroom layout is for easy access in the 2nd and lower level. Your dining area and kitchen are meant for you to enjoy or entertain and see your children play in your very own private backyard. Your backyard with a deck has plenty of space for entertainment and get together with your friends and family. Your garage is a mechanic dream, there is enough space for your cars, toys, and work benches. Your roof was partially completed in 2021. All the windows were replaced in 2018. The garage was rebuilt in 2019. New hooded microwave, washer, back deck built, stove/oven, shed, and gazebo were installed in 2024. The side and back fence were replaced in 2024, along with the gates. The Martindale Community is minutes away from major amenities such as bus stops and train stations, shopping and grocery centres, restaurants, religious and cultural centres, schools, and many more. What are you waiting for? It’s time for you to move into your home. (31686881)

Property Summary

Property Type
Single Family
Building Type
House
Storeys
2
Square Footage
1084 sqft
Community Name
Martindale
Subdivision Name
Martindale
Title
Freehold
Land Size
303 m2|0-4,050 sqft
Built in
1989
Annual Property Taxes
$3,185
Parking Type
Detached Garage (2), Parking Pad
Time on REALTOR.ca
18 hours

Building

Bedrooms
Above Grade
3
Bathrooms
Total
2
Partial
0
Interior Features
Appliances Included
Refrigerator, Range - Electric, Microwave Range Hood Combo, Garage door opener, Washer & Dryer
Flooring
Carpeted, Laminate, Vinyl Plank
Basement Type
Full (Finished)
Building Features
Features
See remarks, Back lane, No Animal Home, No Smoking Home
Foundation Type
Poured Concrete
Style
Detached
Construction Material
Wood frame
Structures
Deck, See Remarks
Heating & Cooling
Cooling
None
Heating Type
Forced air, (Natural gas)
Neighbourhood Features
Amenities Nearby
Park, Playground, Schools
Parking
Parking Type
Detached Garage (2), Parking Pad
Total Parking Spaces
3

Measurements

Square Footage
1084 sqft
Total Finished Area
1084 sqft

Rooms

MetricImperial
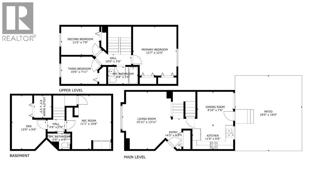
Main level
Kitchen
Living room
Dining room
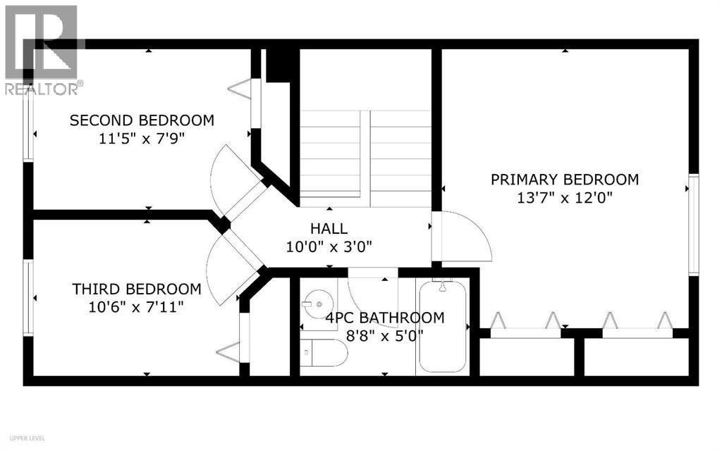
Second level
Primary Bedroom
Bedroom
Bedroom
4pc Bathroom
Lower level
Recreational, Games room
Den
Furnace
Laundry room
3pc Bathroom

Land

Lot Features
Fencing
Fence
Frontage
10.5 m
Land Depth
30.68 m
Other Property Information
Zoning Description
R-CG
Data provided by: Pillar 9™
Are you interested in touring this listing?
Request a showing

403-969-1121
403-228-5425

Similar Listings

Daniel Mendoza