We use cookies and other technologies for functionality, security, and to provide you with a personalized experience on our online services. By continuing to use our online services, you agree to our Privacy Policy and Terms of Use. For information on how to adjust your privacy settings, visit our Cookie Policy.
Dismiss
Home ON Greater Toronto Area Toronto Old Toronto Dovercourt Park
205 - 758 DOVERCOURT ROAD
Directions Print
205 - 758 DOVERCOURT ROAD $2,200/Monthly
1 day ago
$2,200/Monthly
Hide
Favourite

205 - 758 DOVERCOURT ROAD
Toronto (Dovercourt-Wallace Emerson-Junction), Ontario M6H2X2

MLS® Number: W12821340
1
Bedrooms
1
Bathrooms
500 - 599
Square Feet

Listing Description

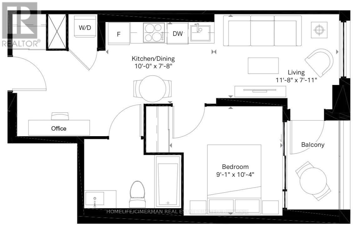
Be the first one to live in this Stylish and Modern Brand New building. Functional Open concept, floor to ceiling window fill with natural light, Large Office space perfect for working from home. Impressive amenities such as fitness center, an elegant rooftop terrace with BBQ areas, and dedicated co-working spaces. Perfectly located on Bloor Subway line, step to Ossington and Dufferin subway stations. Everything is walking distance to grocery, restaurant, coffee shops. (42222096)

Location Description

Bloor Street West & Dovercourt Rd

Property Summary

Property Type
Single Family
Building Type
Apartment
Square Footage
500 - 599 sqft
Community Name
Dovercourt-Wallace Emerson-Junction
Title
Condominium/Strata
Parking Type
Underground, Garage
Time on REALTOR.ca
1 day

Building

Bedrooms
Above Grade
1
Bathrooms
Total
1
Interior Features
Flooring
Laminate
Basement Type
None
Building Features
Features
Balcony, Carpet Free
Fire Protection
Security guard
Building Amenities
Exercise Centre, Party Room, Storage - Locker
Heating & Cooling
Cooling
Central air conditioning
Heating Type
Forced air (Natural gas)
Exterior Features
Exterior Finish
Concrete, Brick
Neighbourhood Features
Community Features
Pets not Allowed, Community Centre
Amenities Nearby
Hospital, Park, Place of Worship, Public Transit
Maintenance or Condo Information
Maintenance Management Company
First Service Residential
Parking
Parking Type
Underground, Garage
Total Parking Spaces
0

Measurements

Square Footage
500 - 599 sqft

Rooms

MetricImperial
Main level
Dining room
Living room
Kitchen
Primary Bedroom
Office

Land

Lot Features
View
City view
Are you interested in touring this listing?
Request a showing

Similar Listings

CECILIA CHEN