We use cookies and other technologies for functionality, security, and to provide you with a personalized experience on our online services. By continuing to use our online services, you agree to our Privacy Policy and Terms of Use. For information on how to adjust your privacy settings, visit our Cookie Policy.
Dismiss
Home ON St. Catharines - Niagara St. Catharines Old Western Hill
42 UNION STREET
Directions Print
42 UNION STREET $589,900
1 day ago
$589,900
Hide
Favourite

42 UNION STREET
St. Catharines (Western Hill), Ontario L2S2R2

MLS® Number: X12819174
3
Bedrooms
1
Bathrooms
1100 - 1500
Square Feet

Listing Description

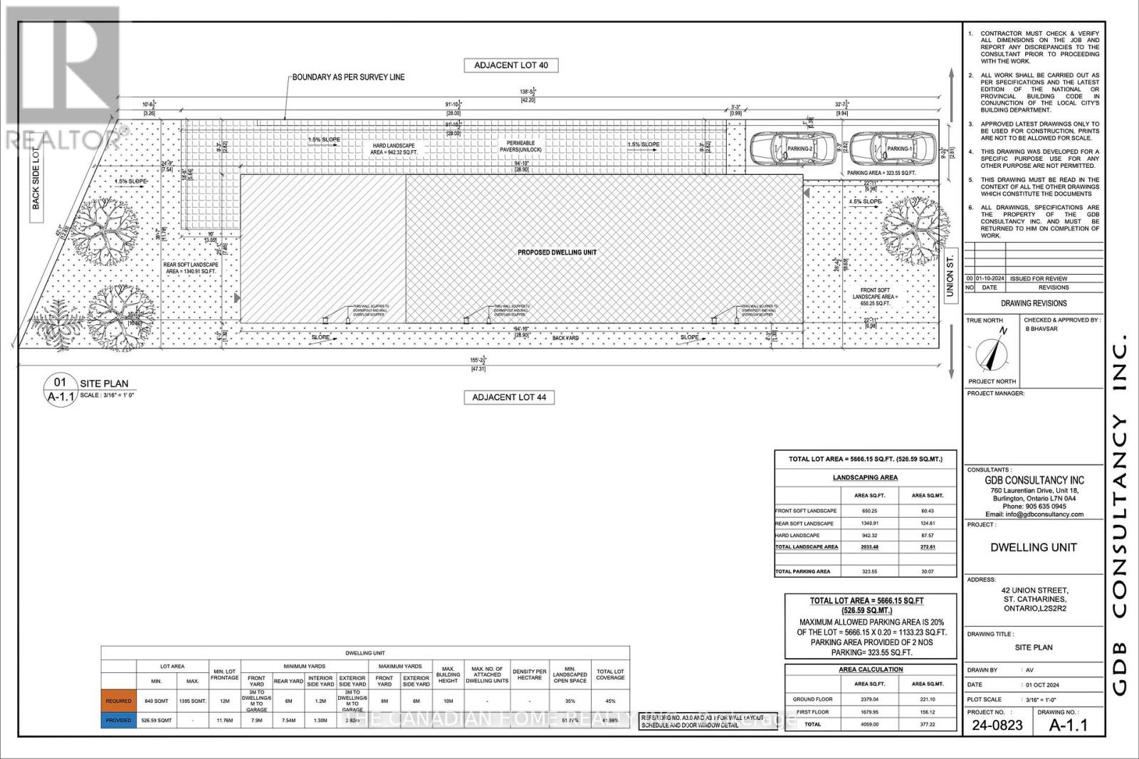
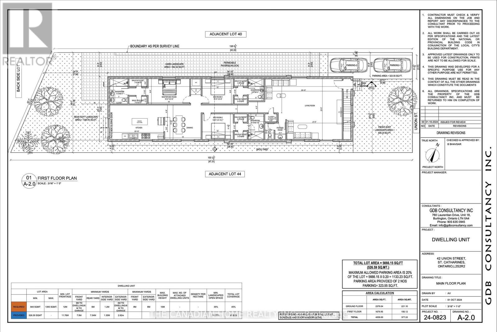
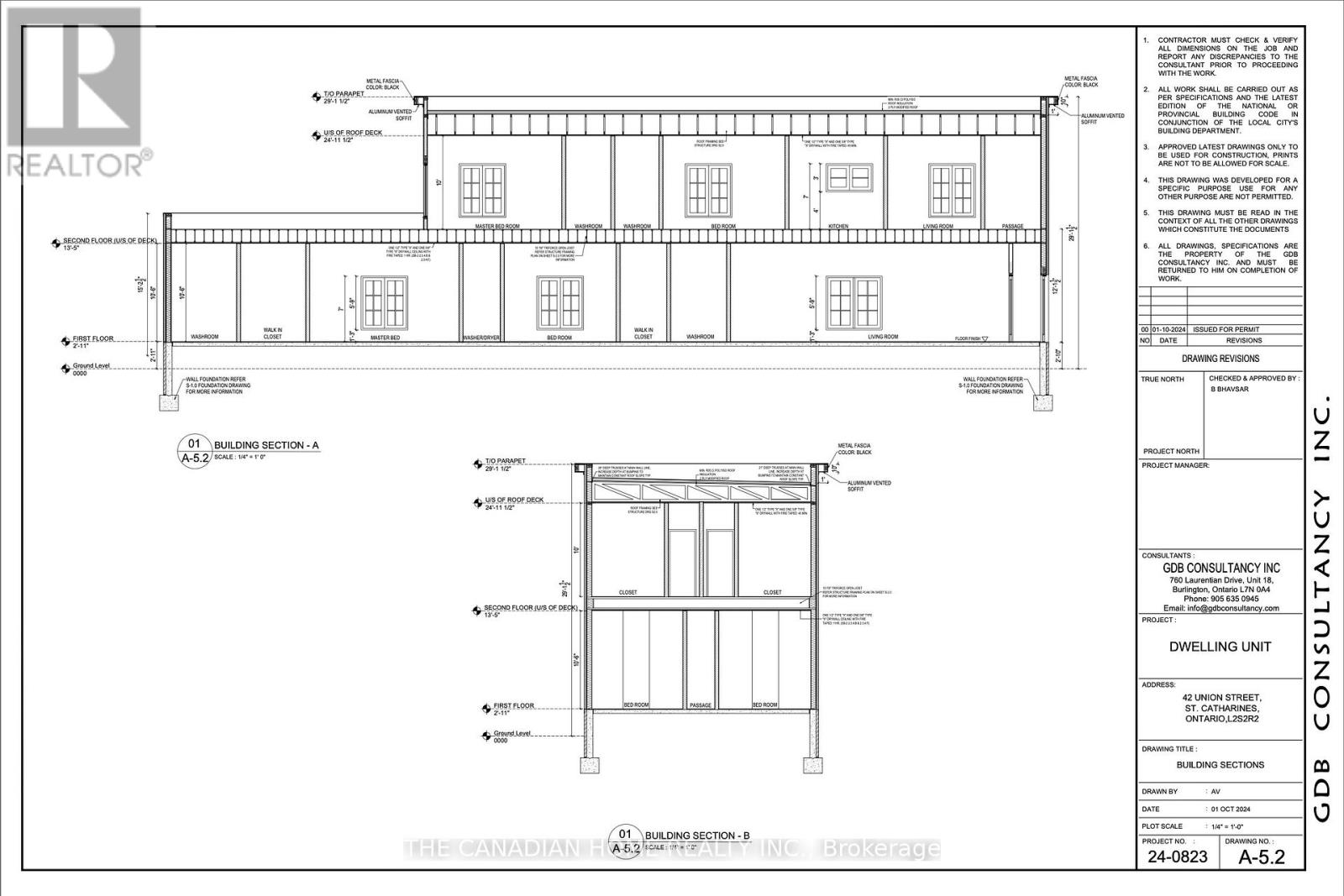
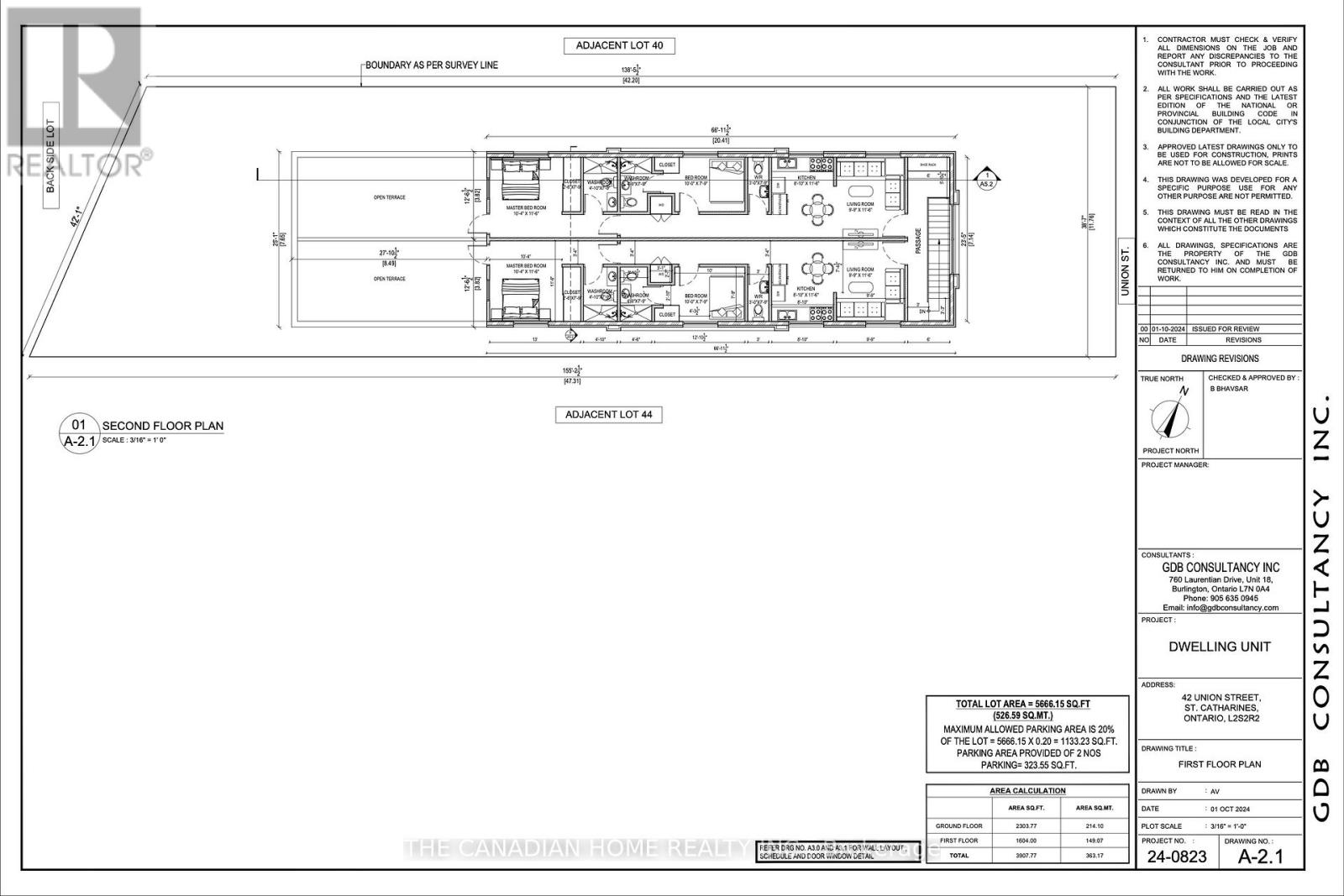
Approved shovel-ready triplex development opportunity in St. Catharines! Calling all investors, builders, and savvy buyers. This is a rare chance to begin construction immediately with an approved triplex permit already in hand, avoiding months of planning delays and significant soft costs. Plans are completed for approximately 3,900-4,000 sqft of total build, designed as three self-contained residential units featuring efficient layouts, multiple washrooms, and modern exterior elevations tailored for strong rental appeal. Ideal for investors seeking long-term hold cash flow, a BRRRR strategy, or builders looking for a ready-to-go project with approvals secured and equally attractive for a buyer looking to live in one unit and rent the other two for supplemental income. Situated in a desirable neighbourhood close to schools, Montessori and childcare centres, parks, public transit, shopping, and everyday amenities, with convenient access to downtown St. Catharines, Brock University, the Pen Centre, and major routes. A turnkey multi-unit opportunity in a growing rental market. (42217117)

Location Description

Rykert-Union

Property Summary

Property Type
Single Family
Building Type
House
Storeys
1.5
Square Footage
1100 - 1500 sqft
Community Name
458 - Western Hill
Title
Freehold
Land Size
38.5 x 155.2 FT
Age Of Building
51 to 99 years
Annual Property Taxes
$2,875.30
Parking Type
No Garage
Time on REALTOR.ca
1 day

Building

Bedrooms
Above Grade
3
Bathrooms
Total
1
Interior Features
Basement Type
Partial (Unfinished)
Building Features
Foundation Type
Block
Style
Detached
Heating & Cooling
Cooling
Central air conditioning
Heating Type
Forced air (Natural gas)
Utilities
Utility Sewer
Sanitary sewer
Water
Municipal water
Exterior Features
Exterior Finish
Stone, Stucco
Neighbourhood Features
Amenities Nearby
Park, Public Transit
Parking
Parking Type
No Garage
Total Parking Spaces
2

Measurements

Square Footage
1100 - 1500 sqft

Rooms

MetricImperial
Main level
Kitchen
Living room
Bedroom
Second level
Bedroom
Bedroom

Land

Lot Features
Frontage
38 ft ,6 in
Land Depth
155 ft ,2 in
Are you interested in touring this listing?
Request a showing

Similar Listings

Udhey Makhni