We use cookies and other technologies for functionality, security, and to provide you with a personalized experience on our online services. By continuing to use our online services, you agree to our Privacy Policy and Terms of Use. For information on how to adjust your privacy settings, visit our Cookie Policy.
Dismiss
Home ON Greater London Strathroy-Caradoc
LOT 48 BEER CRESCENT
Directions Print
More Photos + 2
LOT 48 BEER CRESCENT $689,000
1 day ago
$689,000
Hide
Favourite

LOT 48 BEER CRESCENT
Strathroy-Caradoc (NW), Ontario N7G3K5

MLS® Number: X12818112
3
Bedrooms
3
Bathrooms
1500 - 2000
Square Feet

Listing Description

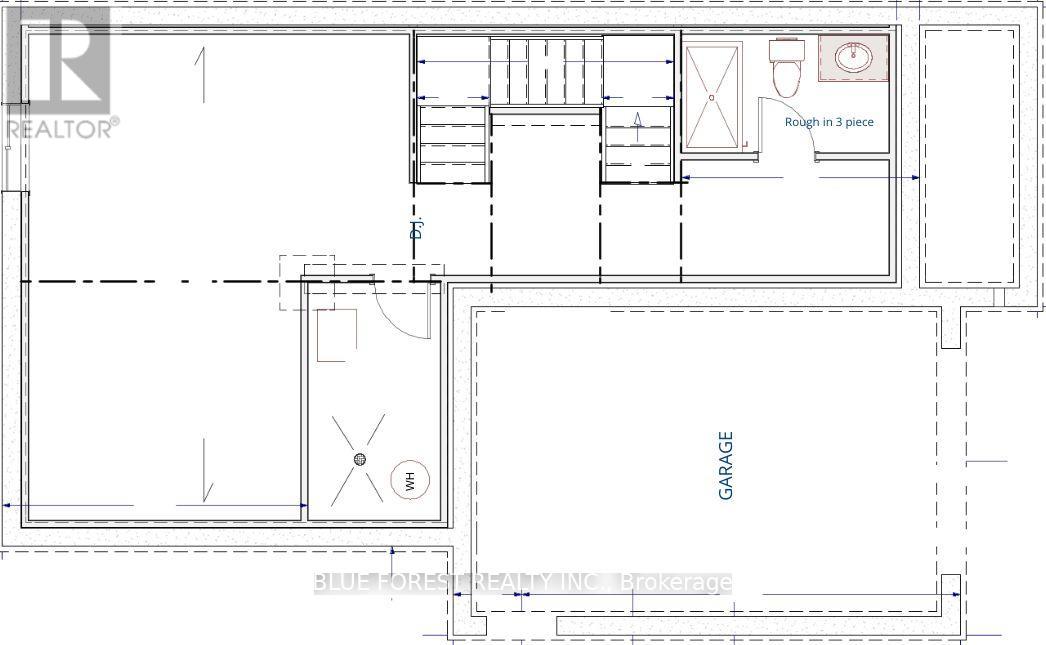
Welcome to The Francis, a thoughtfully crafted two-storey home by Bakker Design & Build, offering 1809 sq. ft. of beautifully designed living space. Known for quality craftsmanship and intentional design, this home blends functionality with timeless style. The main floor features a bright, open-concept kitchen and dining area centred around a spacious island - perfect for entertaining and everyday living. A walk-in pantry provides exceptional storage, while the inviting living room offers a comfortable space to gather and relax. Direct access to the garage, a convenient powder room, and smart main-floor flow make this layout both practical and family-friendly. Upstairs, you'll find three generously sized bedrooms, including a private primary retreat complete with a walk-in closet and ensuite bath. The additional bedrooms share a well-appointed main bathroom, and the second-floor laundry room adds everyday convenience right where it's needed most. TO BE BUILT! Other lots and designs are available. Price based on base lot, premiums extra. Check out more plans at BUCHANANCROSSINGS.COM ** This is a linked property.** (42214870)

Location Description

Cross Streets: McTavish Street. ** Directions: South of McTavish St.

Property Summary

Property Type
Single Family
Building Type
House
Storeys
2
Square Footage
1500 - 2000 sqft
Community Name
NW
Title
Freehold
Land Size
33.3 FT
Age Of Building
New building
Annual Property Taxes
$0
Parking Type
Attached Garage, Garage
Time on REALTOR.ca
1 day

Building

Bedrooms
Above Grade
3
Bathrooms
Total
3
Partial
1
Interior Features
Basement Type
Full (Unfinished)
Building Features
Features
Sump Pump
Foundation Type
Poured Concrete
Style
Detached
Rental Equipment
Water Heater
Heating & Cooling
Cooling
Central air conditioning
Heating Type
Forced air (Natural gas)
Utilities
Water
Municipal water
Exterior Features
Exterior Finish
Brick, Vinyl siding
Parking
Parking Type
Attached Garage, Garage
Total Parking Spaces
3

Measurements

Square Footage
1500 - 2000 sqft

Land

Lot Features
Frontage
33 ft ,3 in
Are you interested in touring this listing?
Request a showing

Similar Listings

KLAUD CZESLAWSKI