We use cookies and other technologies for functionality, security, and to provide you with a personalized experience on our online services. By continuing to use our online services, you agree to our Privacy Policy and Terms of Use. For information on how to adjust your privacy settings, visit our Cookie Policy.
Dismiss
Home AB Greater Calgary Calgary Elbow Park
3802 8A Street SW
Directions Print
3802 8A Street SW $3,399,900
2 days ago
$3,399,900
Hide
Favourite

3802 8A Street SW
Calgary, Alberta T2T3B5

MLS® Number: A2286064
3 + 1
Bedrooms
5
Bathrooms
3848
Square Feet

Listing Description

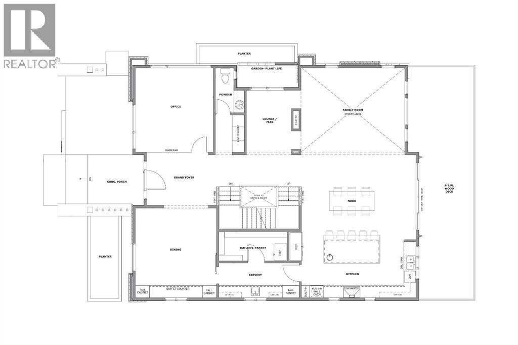
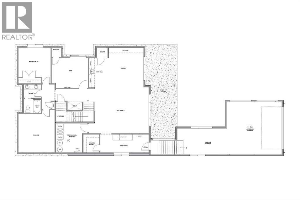
A FULLY CUSTOM, architecturally striking WALKOUT LUXURY HOME with a rare 3-CAR ATTACHED GARAGE, coming to life in the heart of ELBOW PARK. Opportunities like this are exceptionally limited in one of Calgary’s most prestigious inner-city communities.Just steps from the Elbow River pathways and surrounded by mature trees and timeless homes, this residence is offered as a TO-BE-BUILT CUSTOM HOME by NX Homes. Development and Building Permit approvals are already secured, allowing construction to begin upon a firm sale, with an estimated 12-15 month build timeline (subject to final selections and customary construction conditions). Move forward with confidence while tailoring the interior finishes to your personal vision.Located in ELBOW PARK, one of Calgary’s most established and prestigious neighbourhoods, you are moments from the Elbow River pathways, River Park, and Sandy Beach. Enjoy close proximity to the Glencoe Club, Britannia Plaza, 4th Street restaurants and cafés, and easy access to Mission, Marda Loop, and downtown. Highly regarded schools including Elbow Park School, William Reid School, and Western Canada High School are all nearby, adding long-term value to this exceptional location.The design is bold and unmistakably architectural. A grand open staircase framed by feature walls sets the tone on entry. A glass-walled office sits off the foyer, while the formal dining room features a built-in buffet and direct access to the servery and BUTLER’S PANTRY. At the center of the home, the kitchen delivers presence and performance with a gas cooktop, oversized island with prep sink, and a large rear window over the main sink. The adjacent dining nook opens to the upper deck for seamless indoor-outdoor living. The two-storey family room rises above, open and filled with light, anchored by a striking TWO-WAY FIREPLACE connecting to a lounge overlooking a curated garden feature. An upscale powder room is privately positioned nearby.Upstairs, the primary suite is elevated and private, complete with a spa-inspired ensuite featuring steam shower, freestanding tub, and a skylit walk-in closet with island that connects directly to the laundry room. Two additional bedrooms each offer private ensuites, while a bright bonus room with balcony access overlooks the living space below.The WALKOUT lower level expands the lifestyle offering with media and recreation areas, sliding patio doors to the garden, wine cellar, gym space, additional bedroom, and generous storage. A well-designed mudroom with built-ins and walk-in closet connects seamlessly to the three-car garage.The exterior architecture and structural design are fully finalized, providing a refined framework while allowing you to customize the interior to your exact vision. Don’t miss this rare opportunity to secure a fully approved CUSTOM LUXURY HOME in an iconic Calgary location, with architectural certainty and design flexibility already in place. (31682537)

Property Summary

Property Type
Single Family
Building Type
House
Storeys
2
Square Footage
3848 sqft
Community Name
Elbow Park
Subdivision Name
Elbow Park
Title
Freehold
Land Size
580 m2|4,051 - 7,250 sqft
Built in
2027
Parking Type
Tandem, Attached Garage (3)
Time on REALTOR.ca
2 days

Building

Bedrooms
Above Grade
3
Below Grade
1
Bathrooms
Total
5
Partial
1
Interior Features
Appliances Included
Refrigerator, Cooktop - Gas, Dishwasher, Microwave, Oven - Built-In, Hood Fan, Garage door opener, Washer & Dryer
Flooring
Carpeted, Hardwood, Tile
Basement Features
Walk out
Basement Type
Full (Finished)
Building Features
Features
Back lane, Closet Organizers, Gas BBQ Hookup
Foundation Type
Poured Concrete
Style
Detached
Construction Material
Wood frame
Structures
Deck
Heating & Cooling
Cooling
See Remarks
Fireplace
1
Heating Type
Forced air, (Natural gas)
Exterior Features
Exterior Finish
Composite Siding, Stucco, Wood siding
Neighbourhood Features
Amenities Nearby
Park, Playground, Schools, Shopping
Parking
Parking Type
Tandem, Attached Garage (3)
Total Parking Spaces
3

Measurements

Square Footage
3848 sqft
Total Finished Area
3848 sqft

Rooms

MetricImperial
Main level
Living room
Other
Kitchen
Other
Pantry
Other
Dining room
Office
2pc Bathroom
Second level
Primary Bedroom
Other
Bedroom
Bedroom
Bonus Room
4pc Bathroom
4pc Bathroom
5pc Bathroom
Basement
Bedroom
Exercise room
Media
Media
Recreational, Games room
Other
5pc Bathroom
Upper Level
Laundry room

Land

Lot Features
Fencing
Fence
Frontage
15.24 m
Land Depth
38.1 m
Landscape Features
Landscaped
Other Property Information
Zoning Description
R-CG
Data provided by: Pillar 9™
Are you interested in touring this listing?
Request a showing

Similar Listings

Lisa Johnson