We use cookies and other technologies for functionality, security, and to provide you with a personalized experience on our online services. By continuing to use our online services, you agree to our Privacy Policy and Terms of Use. For information on how to adjust your privacy settings, visit our Cookie Policy.
Dismiss
Home BC Metro Vancouver City of North Vancouver Mahon
1837 LARSON ROAD
Directions Print
1837 LARSON ROAD $2,798,000
2 days ago
$2,798,000
Hide
Favourite

1837 LARSON ROAD
North Vancouver, British Columbia V7M2Z7

MLS® Number: R3093303
5
Bedrooms
3
Bathrooms
2416
Square Feet

Listing Description

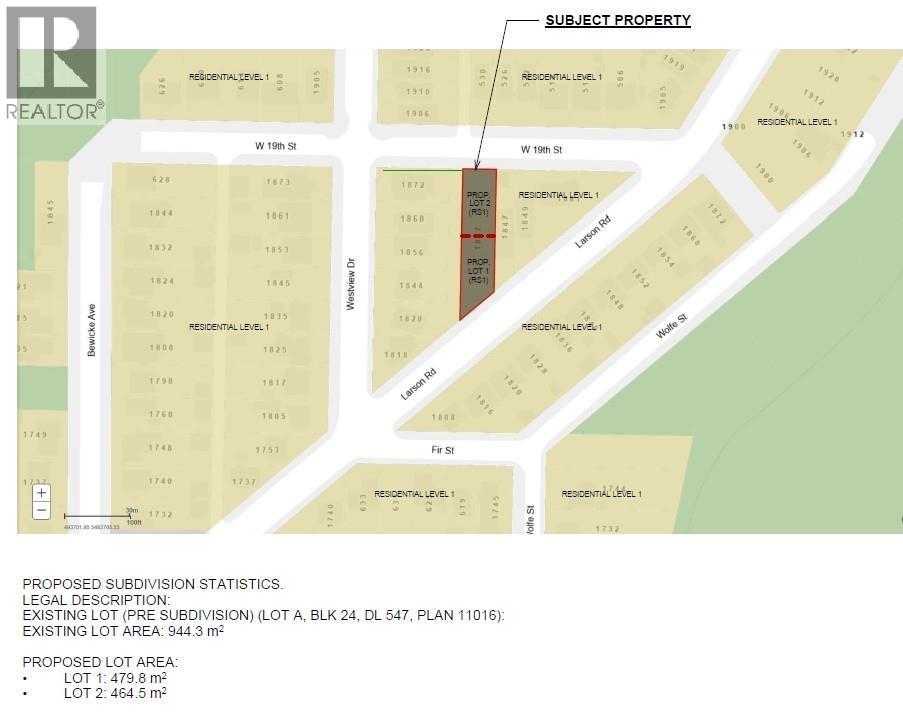
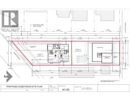
DEVELOPER ALERT! Extremely unique double frontage lot (66ft x 225/50/182) with driveway access from TWO (front and back) streets in the very desirable neighbourhood. Currently, there is a solid and fully renovated, two-level, 2400 sq ft, 5 bedroom/3 bathroom house with tons of upgrades, including kitchen, appliances, bathrooms, plumbing, electrical, furnace, HW tank, windows, doors, water line, insulation, etc. Redevelopment options may be front/back subdivision, possible retention of existing house with a new view lot off 19th Street, or future allowance to multiple units with a .85 Density (FSR). Lots of potential! (32489096)

Property Summary

Property Type
Single Family
Building Type
House
Square Footage
2416 sqft
Title
Freehold
Land Size
10175 sqft
Built in
1965
Annual Property Taxes
$6,076.20
Parking Type
Garage, Carport, RV
Time on REALTOR.ca
2 days

Price and Sale History

Date Status Price
May 14, 2009 Sale Closed $719,000

Building

Bathrooms
Total
3
Interior Features
Appliances Included
All
Fixtures Included
Drapes/Window coverings
Basement Features
Unknown
Basement Type
Full (Finished)
Building Features
Features
Central location
Style
Detached
Architecture Style
2 Level
Building Amenities
Laundry - In Suite
Heating & Cooling
Fireplace
2
Heating Type
Forced air, (Natural gas)
Neighbourhood Features
Amenities Nearby
Recreation, Shopping
Parking
Parking Type
Garage, Carport, RV
Total Parking Spaces
8

Measurements

Square Footage
2416 sqft

Land

Lot Features
Frontage
66 ft ,1 in
Landscape Features
Garden Area
View
View
Data provided by: Greater Vancouver REALTORS®
Are you interested in touring this listing?
Request a showing

Similar Listings

Christopher Karabotsos