We use cookies and other technologies for functionality, security, and to provide you with a personalized experience on our online services. By continuing to use our online services, you agree to our Privacy Policy and Terms of Use. For information on how to adjust your privacy settings, visit our Cookie Policy.
Dismiss
Home AB Greater Edmonton Division No. 11 Edmonton Windermere
2747 WHEATON DR NW
Directions Print
2747 WHEATON DR NW $1,655,000
2 days ago
$1,655,000
Hide
Favourite

2747 WHEATON DR NW
Edmonton, Alberta T6W2M5

MLS® Number: E4474702
5
Bedrooms
5
Bathrooms
4427
Square Feet

Listing Description

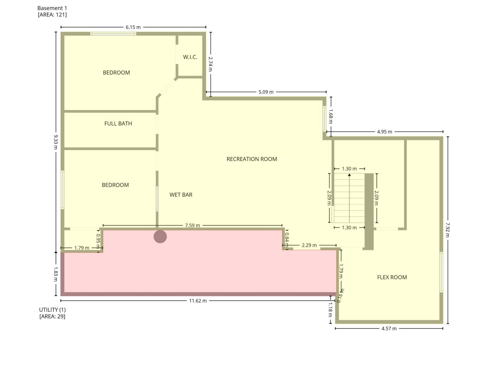
Welcome to the prestigious comm. of UPPER WINDERMERE! This LUX CONTEMPORARY mansion offers 5 Bdrms, 5 Baths, 2 Dens/Flex Rms, F/F Bsmt & TRIPLE HTD garage—designed for style, space & privacy. GRAND Foyer leads to elegant Family Rm w/soaring ceilings, triple-glazed TALL windows & built-in audio. Chef’s kitchen c/w dual islands, eating bar, sleek Euro cabinetry, SS appls & spacious Butler’s W/I walkthrough pantry. Upper level boasts open loft & HUGE Bonus Rm w/wet bar, COVERED balcony (yr-round use) + private ROOFTOP terrace. KING-SIZED Primary retreat features 5pc SMART ensuite, custom steam shower, W/I closet, FP & private COVERED balcony. 2nd Bdrm tucked away w/4pc SMART bath access. 3rd Bdrm privately situated w/own balcony, 5pc ensuite & den. F/F Bsmt offers MASSIVE Rec Rm, Wet Bar, 2 Bdrms, Flex Rm & LUX 4pc bath. PRIME loc close to schools, shops, transit & main routes. STOP waiting—START living! (33869381)

Property Summary

Property Type
Single Family
Building Type
House
Storeys
2
Square Footage
4427 sqft
Neighbourhood Name
Windermere
Title
Freehold
Built in
2018
Parking Type
Heated Garage, Attached Garage
Time on REALTOR.ca
2 days

Legal Description

Plan :- 1420824 Block :- 14 Lot :- 12

Building

Bathrooms
Total
5
Interior Features
Appliances Included
Dishwasher, Dryer, Garage door opener remote(s), Garage door opener, Microwave, Refrigerator, Stove, Washer
Basement Type
Full (Finished)
Building Features
Features
Cul-de-sac, Flat site, No back lane, Closet Organizers, No Animal Home, No Smoking Home, Level
Style
Detached
Building Amenities
Ceiling - 10ft
Heating & Cooling
Cooling
Central air conditioning
Heating Type
Forced air
Neighbourhood Features
Amenities Nearby
Playground, Public Transit, Schools, Shopping
Parking
Parking Type
Heated Garage, Attached Garage
Total Parking Spaces
10

Measurements

Square Footage
4427 sqft

Rooms

Main level
Living room
Dining room
Kitchen
Family room
Second Kitchen
Lower level
Bedroom 4
Bedroom 5
Recreation room
Upper Level
Den
Primary Bedroom
Bedroom 2
Bedroom 3
Bonus Room
Laundry room
Loft
Are you interested in touring this listing?
Request a showing

Similar Listings

Sid Yar