We use cookies and other technologies for functionality, security, and to provide you with a personalized experience on our online services. By continuing to use our online services, you agree to our Privacy Policy and Terms of Use. For information on how to adjust your privacy settings, visit our Cookie Policy.
Dismiss
Home ON Greater London Middlesex County London Fox Hollow
2022 BUROAK DRIVE E
Directions Print
2022 BUROAK DRIVE E $1,399,900
2 days ago
$1,399,900
Hide
Favourite

2022 BUROAK DRIVE E
London North (North S), Ontario N6G3X9

MLS® Number: X12815438
4
Bedrooms
4
Bathrooms
2500 - 3000
Square Feet

Listing Description

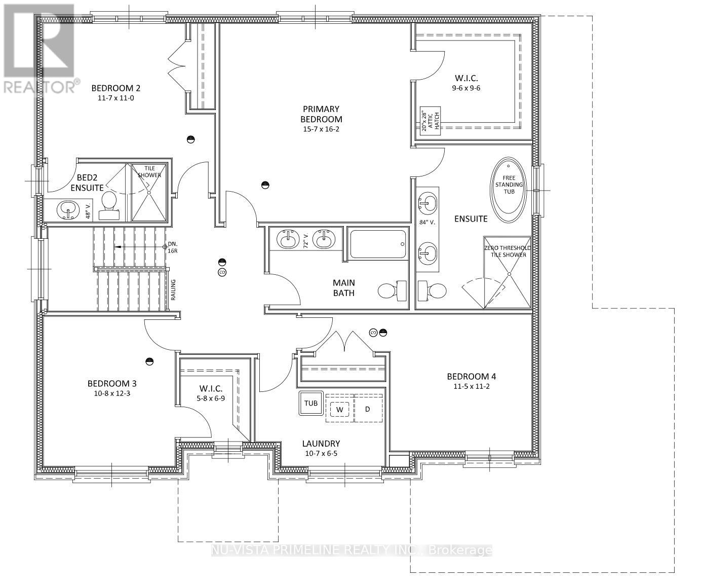
SUNNINGDALE CROSSING by Legacy Homes. This 2964 sq ft home on a 60 by 110 lot is a 2 story, 4 bed ,3.5 baths ,every bed room has access to a bathroom ,that will be starting to built in March April 2026 with quality thru out. This stunning home has 9 ft main floor ceilings, loads of windows, beautiful large kitchen with walk-in pantry 15 ft by 5 ft, quarts counters with a large centre island open to large family room with gas fire place, optional covered rear deck/porch off kitchen, hard wood and ceramic thru out main floor with hard wood stairs going to upper floor. Main floor mud room off garage has walk-in closet 6.9 ft by 5 ft. There is a bar area between the kitchen and formal dining room. Main floor office with double double doors. The upper bedroom are all large and loads of closet space for the growing family. The primary room has a stunning ensuite with glass shower, stand alone tub, double sinks ,quarts counter and a large walk-in closet 9.11 ft by 9.6 ft. There is a second story laundry. The basement has extra Hight ceilings for future development, large egress windows as well. Legacy homes has many other lots to chose from including wooded lots. Please feel free to reach out to discuss. (42208785)

Location Description

Eagletrace Drive

Property Summary

Property Type
Single Family
Building Type
House
Storeys
2
Square Footage
2500 - 3000 sqft
Community Name
North S
Title
Freehold
Land Size
60.2 x 110 FT
Age Of Building
New building
Annual Property Taxes
$0
Parking Type
Attached Garage, Garage
Time on REALTOR.ca
2 days

Building

Bedrooms
Above Grade
4
Bathrooms
Total
4
Partial
1
Interior Features
Basement Type
Full (Unfinished)
Building Features
Features
Level lot, Sump Pump
Foundation Type
Poured Concrete
Style
Detached
Building Amenities
Fireplace(s)
Rental Equipment
Water Heater
Heating & Cooling
Cooling
Central air conditioning
Heating Type
Forced air (Natural gas)
Utilities
Utility Type
Cable (Available), Electricity (Installed), Sewer (Installed)
Utility Sewer
Septic System
Water
Municipal water
Exterior Features
Exterior Finish
Aluminum siding, Brick Veneer
Neighbourhood Features
Amenities Nearby
Public Transit
Parking
Parking Type
Attached Garage, Garage
Total Parking Spaces
4

Measurements

Square Footage
2500 - 3000 sqft

Land

Lot Features
Frontage
60 ft ,2 in
Land Depth
110 ft
Other Property Information
Zoning Description
SFR
Are you interested in touring this listing?
Request a showing

Similar Listings

ANTHONY ROACH